Stay Family Park

Eladó családi ház
Nyíregyháza

+ 15 kép 1/18
47 500 000 Ft47.5 M Ft 625 000 Ft/m2
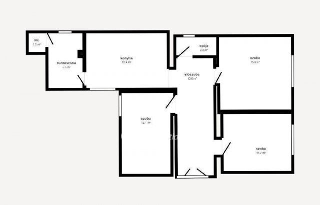
2 + 1 szoba
76 m2
építés éve:1975

Részletes adatok

Állapot: Felújítandó
Telekméret: 3572 m2
Fűtés: Elektromos
Energetikai besorolás: Nem adta meg a hirdető

Az OTP Bank lakáshitel ajánlataFizetett hirdetés

+36 70 583
Szanyi Alexandra
OTPIP Nyíregyháza Hunyadi u.

Érdekel az OTP Bank kedvezményes lakáshitel ajánlata? *

* A kérdésre „Igen” válasz bejelölése esetén, az „Üzenet küldése” gombra kattintva kijelentem, hogy az OTP Bank Nyrt. Adatkezelési tájékoztatójának tartalmát megismertem és tudomásul vettem.

Eladó családi ház leírása

Eladó gazdálkodásra alkalmas családi ház Nyíregyháza közelében, hatalmas telekkel és melléképületekkel!

Nyíregyháza belvárosától mindössze 10 perc autóútra, nyugodt, csendes környezetben kínálunk eladásra egy 76 nm-es, vegyes falazatú, stabil szerkezetű családi házat, mely 1975-ben épült. Az ingatlan 2,5 szobával, konyhával, fürdőszobával és külön WC-vel, kamrával és nyári konyhával rendelkezik.

A ház teljes felújítást igényel, így az új tulajdonos saját igényei szerint alakíthatja ki otthonát vagy gazdaságát.

Főbb jellemzők:

3572 nm-es, tágas telek - kiváló lehetőség kertészkedésre, gazdálkodásra, állattartásra,

melléképületek - melyek alkalmasak állattartásra vagy tárolásra,

könnyen megközelíthető - mégis nyugodt, vidéki környezet.

Ez az ingatlan ideális választás lehet mindazok számára, akik szeretnének kisgazdaságot indítani, állatokat tartani, vagy egyszerűen csak nagy kerttel rendelkező otthonra vágynak a város közelében.

OTP Banki hátterünknek köszönhetően finanszírozási igényekben (pl. Otthon Start Hitelprogram , Babaváró, Falusi CSOK, CSOK Plusz, Lakáshitel, Személyi kölcsön stb.), illetve biztosítások tekintetében is díjmentesen, soron kívüli ügyintézéssel segítem ügyfeleim! Referenciaszám: M310599

Hirdetés feltöltve: 2025. 10. 15. Utoljára módosítva: 2025. 11. 02.

3 szobás családi házak ára Nyíregyházán

Ebből az összehasonlításból megtudhatod, hogyan viszonyul a lakás ára a környékbeli családi házak átlagos árához. Ez nem azt jelenti, hogy ennyivel olcsóbb vagy drágább, mint amennyit a lakás ér, hanem hogy ennyivel tér el a környékbeli átlagtól.

Ennek a m² ára
Nyíregyháza m² ár
625 e Ft
634 e Ft 1%
Ennek az ára
Nyíregyháza átlagár
47.5 M Ft m Ft
77.7 m Ft 39%

Az ingatlan elhelyezkedése

Cím: Nyíregyháza

Eladó családi házak a környékről

Eladó családi ház
Eladó családi ház

Nyíregyháza

41.99 M Ft
2 szoba
60 m2
Eladó családi ház
Eladó családi ház

Nyíregyháza

22.9 M Ft
2 szoba
90 m2
Eladó családi ház
Eladó családi ház

Nyíregyháza

62 M Ft
4 szoba
140 m2
Eladó családi ház
Eladó családi ház

Nyíregyháza

120 M Ft
5 szoba
203 m2
Eladó családi ház
Eladó családi ház

Nyíregyháza

240 M Ft
3 szoba
204 m2
Eladó családi ház
Eladó családi ház

Nyíregyháza

62 M Ft
4 szoba
140 m2
Eladó családi ház
Eladó családi ház

Nyíregyháza

250 M Ft
4 szoba
440 m2
Eladó családi ház
Eladó családi ház

Nyíregyháza

79 M Ft
5 szoba
126 m2
Eladó családi ház
Eladó családi ház

Nyíregyháza

87 M Ft
5 szoba
210 m2
Eladó családi ház
Eladó családi ház

Nyíregyháza

41.99 M Ft
2 szoba
60 m2
Eladó családi ház
Eladó családi ház

Nyíregyháza

87 M Ft
5 szoba
210 m2
Eladó családi ház
Eladó családi ház

Nyíregyháza

92 M Ft
3 szoba
161 m2
Eladó családi ház
Eladó családi ház

Nyíregyháza

23 M Ft
2 szoba
51 m2
Eladó családi ház
Eladó családi ház

Nyíregyháza

60 M Ft
3 szoba
100 m2
Eladó családi ház
Eladó családi ház

Nyíregyháza

85 M Ft
3 szoba
170 m2
Eladó családi ház
Eladó családi ház

Nyíregyháza

46 M Ft
3 + 1 szoba
140 m2
Eladó családi ház
Eladó családi ház

Nyíregyháza

120 M Ft
5 szoba
203 m2
Eladó családi ház
Eladó családi ház

Nyíregyháza

98 M Ft
4 szoba
125 m2
Eladó családi ház
Eladó családi ház

Nyíregyháza

199.9 M Ft
6 szoba
500 m2
Eladó családi ház
Eladó családi ház

Nyíregyháza

44.9 M Ft
1 szoba
51 m2
Eladó családi ház
Eladó családi ház

Nyíregyháza

92 M Ft
3 szoba
161 m2
Eladó családi ház
Eladó családi ház

Nyíregyháza

250 M Ft
4 szoba
440 m2
Eladó családi ház
Eladó családi ház

Nyíregyháza, Oros, Oros

55 M Ft
4 szoba
100 m2
Eladó családi ház
Eladó családi ház

Nyíregyháza

240 M Ft
3 szoba
204 m2

Falusi CSOK ingatlanok

Eladó családi ház
Eladó családi ház

Abasár

33.9 M Ft
4 szoba
133 m2
Eladó téglalakás
Eladó téglalakás

Balatonszemes

244.5 M Ft
3 szoba
107 m2
Eladó családi ház
Eladó családi ház

Magyarszék

48.5 M Ft
3 + 1 szoba
86 m2
Eladó családi ház
Eladó családi ház

Látrány

39.9 M Ft
1 szoba
52 m2
Eladó téglalakás
Eladó téglalakás

Balatonszemes

202 M Ft
3 szoba
154 m2
Eladó családi ház
Eladó családi ház

Csatár

98.5 M Ft
5 szoba
150 m2
Eladó családi ház
Eladó családi ház

Kemence, Fő utca

25 M Ft
3 szoba
91 m2
Eladó családi ház
Eladó családi ház

Bábolna

90.3 M Ft
5 szoba
100 m2