Oasis Residence

Eladó családi ház
Nyíregyháza

+ 5 kép 1/8
95 000 000 Ft95 M Ft 597 484 Ft/m2
3 szoba
159 m2
építés éve:2025

Részletes adatok

Telekméret: 722 m2
Fűtés: Egyéb
Energetikai besorolás: Nem adta meg a hirdető

Az OTP Bank lakáshitel ajánlataFizetett hirdetés

+36 70 583
Szanyi Alexandra
OTPIP Nyíregyháza Hunyadi u.

Érdekel az OTP Bank kedvezményes lakáshitel ajánlata? *

* A kérdésre „Igen” válasz bejelölése esetén, az „Üzenet küldése” gombra kattintva kijelentem, hogy az OTP Bank Nyrt. Adatkezelési tájékoztatójának tartalmát megismertem és tudomásul vettem.

Eladó családi ház leírása

Eladó Nyíregyházán, egy újépítésű, egyszintes, modern családi ház 722 négyzetméteres telken. Az ingatlan a város csendes, kertvárosi részén helyezkedik el, aszfaltozott, közművesített utcában. A környéket új építésű házak és folyamatosan fejlődő lakókörnyezet jellemzi.

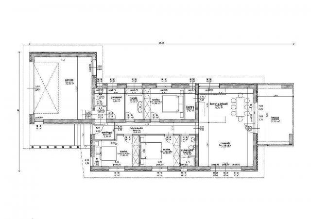
- Az épület hasznos alapterülete összesen 158,92 négyzetméter, melyből a lakótér 105,86 négyzetméter, a garázs 33 négyzetméter, a fedett terasz pedig 20,06 négyzetméter. A belső elrendezés praktikus és családbarát: három hálószoba, tágas nappali, külön konyha-étkező kamrával, két fürdőszoba (egy zuhanyzós és egy káddal ellátott), külön WC, gépészeti helyiség és előtér található benne.

- Az épület kiváló minőségben, hagyományos falazott technológiával épül, porotherm 30 NF téglából. A válaszfalak 10 centiméter vastag ytongból készülnek. A födém fa gerendás szerkezetű, szakszerűen szigetelve. A homlokzati hőszigetelés 15 centiméter vastag EPS szigetelés, a födémben 30 centiméter vastagságú ásványgyapot kerül beépítésre, a lábazat XPS hőszigetelést kap. Az épület épületmagassága 6,5 méter, oldalhatáron álló elhelyezéssel.

- A külső homlokzat fehér színű nemesvakolatot kap, szürke díszítő kőburkolatokkal. A tető kontytetős kialakítású, 25 fokos hajlásszögű, szürke cserépfedéssel. A tetőszerkezet fenyőfa alapanyagú, szakszerűen kezelt és méretezett. Az esővíz elvezetése zárt csatornarendszeren történik, a csapadékvíz a telken belül elszikkasztásra kerül vagy gyűjtve öntözési célra is felhasználható.

- A nyílászárók háromrétegű, hőszigetelt üvegezésű, műanyag profilból készülnek. A bejárati ajtó fokozott hőszigetelésű, felülvilágítós kialakítással. A belső ajtók kazettás faszerkezetűek.

- A fűtést és melegvíz ellátást hőszivattyús rendszer biztosítja, beltéri egysége a gépészeti helyiségben kap helyet. A hőleadás padlófűtéssel és radiátorokkal történik, a fürdőhelyiségekben törölközőszárítós radiátorral. A hidegvíz- és szennyvízvezetékek korszerű HENCO műanyag csőrendszerből kerülnek kialakításra, réz idomokkal és nyomáspróbázott rendszerrel.

- A villamos hálózat a legkorszerűbb előírásoknak megfelelően kerül kiépítésre. A főelosztó a bejárat közelében lesz telepítve, a lakás minden helyisége megfelelő világítással és csatlakozóaljzatokkal lesz ellátva. A villámvédelem, érintésvédelem, valamint a biztonságtechnikai követelményeknek megfelelő érintésvédelmi rendszer is kiépítésre kerül.

- A garázs közvetlenül a lakótérből is megközelíthető, 33 négyzetméteres alapterületű, így akár két jármű tárolására is alkalmas. A telek zöldfelülete jelentős, több mint 370 négyzetméter, a burkolt felületek 140 négyzetmétert tesznek ki. Az ingatlan teljes közműellátottsággal rendelkezik, víz, villany, szennyvíz, valamint gázcsonk is rendelkezésre áll a telken belül.

- Az épület kiváló hőszigetelésének és modern gépészetének köszönhetően energiatakarékos, környezettudatos otthon lehet családok számára. A ház ideális 4-5 fős család részére, akik új építésű, minőségi, csendes környezetben lévő otthont keresnek Nyíregyházán.

Bővebb információért, alaprajzért, műszaki dokumentációért, kérem, keressen bizalommal. OTP Banki hátterünknek köszönhetően finanszírozási igényekben (pl. Babaváró, Falusi CSOK, CSOK Plusz, Lakáshitel, Személyi kölcsön stb.), illetve biztosítások tekintetében is díjmentesen, soron kívüli ügyintézéssel segítem ügyfeleim! Referenciaszám: M305268

Hirdetés feltöltve: 2025. 10. 15. Utoljára módosítva: 2025. 11. 02.

3 szobás családi házak ára Nyíregyházán

Ebből az összehasonlításból megtudhatod, hogyan viszonyul a lakás ára a környékbeli családi házak átlagos árához. Ez nem azt jelenti, hogy ennyivel olcsóbb vagy drágább, mint amennyit a lakás ér, hanem hogy ennyivel tér el a környékbeli átlagtól.

Ennek a m² ára
Nyíregyháza m² ár
597 e Ft
634 e Ft 6%
Ennek az ára
Nyíregyháza átlagár
95 M Ft m Ft
77.7 m Ft -22%

Az ingatlan elhelyezkedése

Cím: Nyíregyháza

Eladó családi házak a környékről

Eladó családi ház
Eladó családi ház

Nyírtelek

10.9 M Ft
2 szoba
55 m2
Eladó családi ház
Eladó családi ház

Nyíregyháza

46 M Ft
3 + 1 szoba
140 m2
Eladó családi ház
Eladó családi ház

Nyíregyháza

250 M Ft
4 szoba
440 m2
Eladó családi ház
Eladó családi ház

Nyíregyháza

75.9 M Ft
6 szoba
240 m2
Eladó családi ház
Eladó családi ház

Nyíregyháza, Oros, Oros

55 M Ft
4 szoba
100 m2
Eladó családi ház
Eladó családi ház

Nyíregyháza

250 M Ft
4 szoba
440 m2
Eladó családi ház
Eladó családi ház

Nyíregyháza

199.9 M Ft
6 szoba
500 m2
Eladó családi ház
Eladó családi ház

Nyíregyháza

190 M Ft
4 szoba
230 m2
Eladó családi ház
Eladó családi ház

Újfehértó

22.9 M Ft
2 szoba
60 m2
Eladó családi ház
Eladó családi ház

Nyíregyháza

190 M Ft
4 szoba
230 m2
Eladó családi ház
Eladó családi ház

Nyíregyháza

62 M Ft
4 szoba
140 m2
Eladó családi ház
Eladó családi ház

Nyíregyháza

46 M Ft
3 + 1 szoba
140 m2
Eladó családi ház
Eladó családi ház

Nyíregyháza

23 M Ft
2 szoba
51 m2
Eladó családi ház
Eladó családi ház

Nyíregyháza

85 M Ft
3 szoba
170 m2
Eladó családi ház
Eladó családi ház

Nyíregyháza

60 M Ft
3 szoba
100 m2
Eladó családi ház
Eladó családi ház

Nyíregyháza

85 M Ft
3 szoba
110 m2
Eladó családi ház
Eladó családi ház

Napkor

49.8 M Ft
4 szoba
253 m2
Eladó családi ház
Eladó családi ház

Nyíregyháza

92.8 M Ft
5 szoba
240 m2
Eladó családi ház
Eladó családi ház

Nyíregyháza

92 M Ft
3 szoba
161 m2
Eladó családi ház
Eladó családi ház

Nyíregyháza

62 M Ft
4 szoba
140 m2
Eladó családi ház
Eladó családi ház

Nyíregyháza

85 M Ft
3 szoba
170 m2
Eladó családi ház
Eladó családi ház

Nyíregyháza

240 M Ft
3 szoba
204 m2
Eladó családi ház
Eladó családi ház

Nyíregyháza

140 M Ft
3 szoba
168 m2
Eladó családi ház
Eladó családi ház

Nyíregyháza

79 M Ft
5 szoba
126 m2

Falusi CSOK ingatlanok

Eladó ikerház
Eladó ikerház

Seregélyes

39.9 M Ft
4 szoba
150 m2
Eladó családi ház
Eladó családi ház

Magyarszék

48.5 M Ft
3 + 1 szoba
86 m2
Eladó családi ház
Eladó családi ház

Gáborján

5.5 M Ft
2 szoba
68 m2
Eladó családi ház
Eladó családi ház

Almáskamarás

5.8 M Ft
2 szoba
70 m2
Eladó családi ház
Eladó családi ház

Gutorfölde

45 M Ft
4 szoba
111 m2
Eladó családi ház
Eladó családi ház

Tápiószőlős

3.5 M Ft
1 szoba
75 m2
Eladó családi ház
Eladó családi ház

Kisnána

27.9 M Ft
4 szoba
180 m2
Eladó családi ház
Eladó családi ház

Segesd

14.3 M Ft
3 szoba
100 m2