BAM Living

Eladó családi ház
Nézsa, földszint

+ 17 kép 1/20
35 990 000 Ft35.99 M Ft 413 678 Ft/m2
3 szoba
87 m2
földszint
építés éve:1960

Részletes adatok

Telekméret: 760 m2
Fűtés: Gázkazán
Parkolás: Garázs
Közmű: Víz, Gáz, Villany, Csatorna
Energetikai besorolás: Nem adta meg a hirdető

Az OTP Bank lakáshitel ajánlataFizetett hirdetés

+36 20 624
Takács Marianna
Megtalál-Lak Ingatlaniroda

Érdekel az OTP Bank kedvezményes lakáshitel ajánlata? *

* A kérdésre „Igen” válasz bejelölése esetén, az „Üzenet küldése” gombra kattintva kijelentem, hogy az OTP Bank Nyrt. Adatkezelési tájékoztatójának tartalmát megismertem és tudomásul vettem.

Eladó családi ház leírása

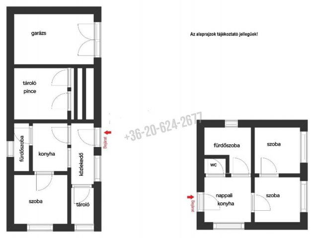
Két otthon, egy áráért!

Kivételes lehetőség Nézsán a nyugalmat és értéket keresőknek!

Fedezze fel ezt a páratlan ajánlatot, ahol két különálló, lakható épület várja új tulajdonosát egy rendezett, gyümölcsfákkal tarkított udvarban! Az 1960-ban épült, vegyes falazatú (vályog és tégla) ingatlan, mely egy 760 m2-es telken helyezkedik el, az elmúlt években gondos karbantartáson és felújításon esett át: a vízhálózat teljes korszerűsítése öt éve történt meg, míg a villanyhálózat 32 amperre lett bővítve, és egy fázison teljes egészében újra is vezetékelve. A nyílászárók cseréje, a tetőszerkezet átvizsgálása és szükség szerinti javítása, valamint a gáz bekötése és a rézcsövezés mind az elmúlt két éven belül valósultak meg – biztosítva a hosszú távú kényelmet és biztonságot.

A főépület egy előszobával, két tágas szobával, külön fürdőszobával és WC-vel rendelkezik, míg a második, kisebb ház egy hangulatos szoba, konyha és fürdőszoba egységeként szolgál – tökéletes lehetőség vendéglátásban gondolkodóknak, irodai helyiség kialakításának vagy külön lakrésznek!

A műanyag nyílászárókkal beépített veranda a közös tér meghitt eleme, alatta egy masszív betonfödémes pince kínál praktikus tárolási lehetőséget. A betonozott kocsibeálló mellett a rendezett udvar, a termő gyümölcsfák és a természet közelsége teszik igazán élhetővé a környezetet.

A fűtési rendszerek sokszínűsége – gázcirkó, fa tüzelésű kályha, kandalló, illetve egy külön gázkazán – lehetővé teszi a költséghatékony és hangulatos megoldások alkalmazását. A meleg vizet központi rendszer és villanybojler is biztosítja. A telken belül minden alapvető közmű megtalálható: villany, víz, gáz, emésztő, ugyanakkor a csatornarendszer nem került kiépítésre – a település egészére jellemző módon.

Ez az ingatlan többgenerációs otthonnak, vállalkozásnak vagy befektetésnek is ideális, egyesíti a nyugalmat, a természetközeli életérzést és a modern komfortot – valóban ritka lehetőség egyetlen vételáron!

Nézsa Nógrád megye déli részén, a Cserhát dombjai közt elhelyezkedő község, mely az Országos Kéktúra Útvonal részeként kedvelt úticélja a vidéki élet szerelmeseinek. A mindennapi élethez szükséges intézmények, boltok mind fellehetőek a közelben, ráadásul Vác könnyedén, mindössze 20 percre, míg Budapest egy órán belül elérhető autóval vagy akár közvetlen buszjárattal is.

Tér, ami szabadságot ad - Otthon, ami összeköt. :)

Irányár: 35,99 M Ft

Az alábbi szolgáltatásokkal állok rendelkezésére ingatlanvásárlásban, eladásban:
- Ingatlanközvetítés
- Értékmeghatározás, értékbecslés
- Hirdetés profi alaprajzzal
- Szerződéskötés megszervezése
- Földhivatali ügyintézés
- Jogi háttér biztosítása és tanácsadás
- Energetikai ügyintézés

Hitelügyintézés: független hiteltanácsadó díjmentesen segít kiválasztani a legmegfelelőbb hitelkonstrukciót.
Ingatlan megtekintése során, e-mail cím megadásával, országos rendszerből ingyenes ajánlatküldés!

Elérhetőségeim:
06-20-624-2677
megtalallakingatlan@gmail.hu
www.megtalallakingatlaniroda.hu

Az ingatlan előre egyeztetett időpontban megtekinthető, amennyiben felkeltette az érdeklődését, várom megtisztelő hívását!
www.megtalallakingatlaniroda.hu

Hirdetés feltöltve: 2025. 05. 21. Utoljára módosítva: 2025. 11. 13.

Az ingatlan elhelyezkedése

Cím: Nézsa, földszint

Eladó ingatlanok a környékről

Eladó családi ház
Eladó családi ház

Rimóc

5.9 M Ft
2 szoba
85 m2
Eladó családi ház
Eladó családi ház

Nézsa

110 M Ft
4 szoba
94 m2
Eladó téglalakás
Eladó téglalakás

Salgótarján, Városközpont, Tanács út

19.9 M Ft
3 szoba
81 m2
Eladó sorház
Eladó sorház

Salgótarján

7.9 M Ft
1 szoba
40 m2
Eladó családi ház
Eladó családi ház

Nógrád

48 M Ft
3 szoba
100 m2
Eladó családi ház
Eladó családi ház

Romhány, Kossuth Lajos út 70/b

490 M Ft
14 + 10 szoba
1000 m2
Eladó nyaraló
Eladó nyaraló

Salgótarján, Kempingtelep, Görbe utca

15 M Ft
1 szoba
34 m2
Eladó téglalakás
Eladó téglalakás

Salgótarján

19.5 M Ft
2 szoba
58 m2
Eladó családi ház
Eladó családi ház

Herencsény

25.9 M Ft
4 szoba
100 m2
Eladó családi ház
Eladó családi ház

Bánk, Bánki-tónál eladó telek 4 házzal befektetőknek!

420 M Ft
5875 m²
380 m2
Eladó családi ház
Eladó családi ház

Balassagyarmat

90.5 M Ft
3 szoba
240 m2
Eladó családi ház
Eladó családi ház

Salgótarján

63.999 M Ft
3 szoba
250 m2
Eladó családi ház
Eladó családi ház

Salgótarján

27.99 M Ft
3 szoba
70 m2
Eladó családi ház
Eladó családi ház

Mohora, Lékai utca

22 M Ft
3 szoba
90 m2
Eladó családi ház
Eladó családi ház

Salgótarján

5.5 M Ft
500 m²
90 m2
Eladó családi ház
Eladó családi ház

Karancsalja

67 M Ft
4 szoba
200 m2
Eladó családi ház
Eladó családi ház

Buják

110 M Ft
3 szoba
100 m2
Eladó panellakás
Eladó panellakás

Balassagyarmat

35.9 M Ft
2 szoba
54 m2
Eladó családi ház
Eladó családi ház

Mátraterenye

15 M Ft
490 m²
75 m2
Eladó téglalakás
Eladó téglalakás

Salgótarján

13.5 M Ft
2 szoba
57 m2
Eladó családi ház
Eladó családi ház

Salgótarján

63 M Ft
5 szoba
198 m2
Eladó családi ház
Eladó családi ház

Nagyoroszi

94.9 M Ft
4 szoba
173 m2
Eladó családi ház
Eladó családi ház

Tolmács

39.9 M Ft
3 szoba
85 m2
Eladó családi ház
Eladó családi ház

Nézsa, Kamilla út

99 M Ft
4 szoba
90 m2

Falusi CSOK ingatlanok

Eladó családi ház
Eladó családi ház

Pécsvárad

140 M Ft
2 szoba
79 m2
Eladó családi ház
Eladó családi ház

Püspökhatvan

44.9 M Ft
3 szoba
80 m2
Eladó ikerház
Eladó ikerház

Balatonakali

165 M Ft
4 szoba
138 m2
Eladó családi ház
Eladó családi ház

Hernádnémeti

18.9 M Ft
2 szoba
62 m2
Eladó családi ház
Eladó családi ház

Ságvár

64.9 M Ft
3 szoba
70 m2
Eladó családi ház
Eladó családi ház

Mencshely

99 M Ft
3 szoba
126 m2
Eladó családi ház
Eladó családi ház

Kesztölc

129.9 M Ft
8 szoba
210 m2
Eladó családi ház
Eladó családi ház

Abádszalók

70 M Ft
3 szoba
100 m2