Aerogate Homes

Eladó családi ház
Nagykörű

Figyelem!

Ez az ingatlan a 2019.07.01-től induló falusi CSOK által támogatott településen található

+ 17 kép 1/20
11 990 000 Ft11.99 M Ft 230 577 Ft/m2
1 + 1 szoba
52 m2
építés éve:1830

Részletes adatok

Állapot: Átlagos
Telekméret: 653 m2
Fűtés: Gázkonvektor
Parkolás: Garázs
Energetikai besorolás: Nem adta meg a hirdető

Az OTP Bank lakáshitel ajánlataFizetett hirdetés

+36 70 381
Tiszavidék Ingatlan- Sós Erika
Tiszavidék Ingatlan - Sós Erika

Érdekel az OTP Bank kedvezményes lakáshitel ajánlata? *

* A kérdésre „Igen” válasz bejelölése esetén, az „Üzenet küldése” gombra kattintva kijelentem, hogy az OTP Bank Nyrt. Adatkezelési tájékoztatójának tartalmát megismertem és tudomásul vettem.

Eladó családi ház leírása

Hivatkozási szám: 328981
Vidéki feeling élhető település hangulatos Tisza-part a cseresznye hazájában
Midenhez közel

Nagykörű a Tisza jobb partján helyezkedik el, Szolnok és a Tisza-tó közötti szakaszon.
Számos természeti, kulturális és gasztronómiai értékekkel rendelkező csendes zsákfalu, mindössze 1560 lakossal. A település “az ország cseresznyéskertje” címmel rendelkezik: itt található Magyarország legnagyobb cseresznyéskertje, több mint 200 hektáron.
Az ittlévő aranyló homokú Tisza-part, ma a Közép Tisza szakasz egyik legnagyobb homokstrandja mára a nyári felejthetetlen körüi élmények egyike, aktív kikapcsolódást nyújt az idelátogatók számára.

- az ingatlan a település központjában, de még is egy csendes nyugodt helyen található;

- mindenhez is közel, 50 méteren belül buszmegálló, élelmiszerbolt, pékség, étterem,
posta, 300 méterre strandlejáró;

- a parasztház az 1830-as években épült vályogból, végleges formáját a II. világháborút
követően kapta;

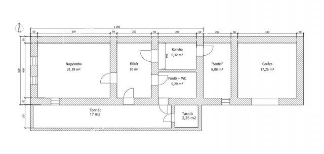
- 653 m2-es telek, 52 m2-es lakótér: előtér-étkező, 2 szoba, konyha, fürdő+wc, tároló;

- 17 m2-es tornác, garázs, tároló;

- az épület összközműves: víz, szennyvízcsatorna, villany, gáz, fúrtkút;

- a fűtést gázkonvektorok és kandalló biztosítják;

- a házat eredetileg kemencével fűtötték amely lebontásra került, de bármikor
visszaépíthető;

- a melegvízellátásáról villanybojler gondoskodik;

- a tetőhéjazatot cserép fedi;

- fából készült autentikus nyílászárók, többnyire még az eredeti beépítésből;

- 2000-ben történt a villanyvezetékek teljes cseréje,víz, gáz, csatorna bevezetése,
konyha és a fürdő kialakítása;

- a vályognak köszönhetően az épület nyáron hűvös, télen pedig jól tartja a meleget;

- az ingatlant több éve nem lakják, ennek megfelelően ízlés szerűen felújítható;

Az erősödő horgászturizmus, helyi kézműves vásárok, éjszakai piacok, országos szintű rendezvények színesítik a túristák és az ittélő emberek hétköznapjait.
A Tisza-parton 2024-ben adták át a nagysikerű lombkorona sétányt, amely hatalmas nyárfák között, egy hangulatos kávézóval üzemel.
A településen aszfaltos úthálózat, orvosi rendelő, gyógyszertár, bölcsőde, óvoda, iskola, posta, művelődési ház, látogató központ, kishajó kikötő, kompátkelő, szabadstrand, tájház, pékség, étterem, élelmiszer és egyéb üzletek találhatók.

A település népszerűségének köszönhetően, egyre több művész választja lakó és nyaraló helyévé Nagykörűt!

Szívesen ajánlom ezt az ingatlant mindazoknak akiknek elegük van munkahelyi stresszből, a napi körforgásból, a városi nyomasztásból, akik szívesen választják a vidék pihentető nyugalmát;

Amennyiben a nagykörűi családi ház felkeltette érdeklődését, keressen bizalommal a hét minden napján!

+36703812517
soserika.ingatlan@gmail.com

Eladó vagy kiadó ingatlanok esetében kedvező díjú egyedi ajánlattal állok a megbízóim rendelkezésére

További szolgáltatások:

- Ingyenes, bankfüggetlen hitelügyintézés, Falusi CSOK, Bavaváró hitel, CSOK Plusz, egyéb
hitel ügyintézés
- Ügyvéd
- Energetikus
- Földmérő
- Statikus, építész
- Szakemberek ajánlása ingatlan felújításhoz

Hirdetés feltöltve: 2025. 02. 11. Utoljára módosítva: 2025. 12. 07.

2 szobás családi házak ára Nagykörűn

Ebből az összehasonlításból megtudhatod, hogyan viszonyul a lakás ára a környékbeli családi házak átlagos árához. Ez nem azt jelenti, hogy ennyivel olcsóbb vagy drágább, mint amennyit a lakás ér, hanem hogy ennyivel tér el a környékbeli átlagtól.

Ennek a m² ára
Nagykörű m² ár
231 e Ft
254 e Ft 9%
Ennek az ára
Nagykörű átlagár
11.99 M Ft m Ft
25 m Ft 52%

Az ingatlan elhelyezkedése

Cím: Nagykörű

Eladó ingatlanok a környékről

Eladó családi ház
Eladó családi ház

Szolnok

21.9 M Ft
1 + 1 szoba
53 m2
Eladó családi ház
Eladó családi ház

Jászberény

37.9 M Ft
3 szoba
94 m2
Eladó családi ház
Eladó családi ház

Nagykörű

5.99 M Ft
1 szoba
47 m2
Eladó családi ház
Eladó családi ház

Nagykörű, Petrovay György út

37.9 M Ft
4 szoba
160 m2
Eladó családi ház
Eladó családi ház

Fegyvernek, Gárdonyi Géza út

12 M Ft
2 szoba
50 m2
Eladó családi ház
Eladó családi ház

Újszász

39.7 M Ft
2 + 2 szoba
180 m2
Eladó családi ház
Eladó családi ház

Nagykörű

17.9 M Ft
3 szoba
77 m2
Eladó családi ház
Eladó családi ház

Szolnok

35.8 M Ft
2 szoba
70 m2
Eladó családi ház
Eladó családi ház

Nagykörű, Arany János út

13.9 M Ft
4 szoba
104 m2
Eladó családi ház
Eladó családi ház

Nagykörű

19.99 M Ft
1 + 1 szoba
58 m2
Eladó családi ház
Eladó családi ház

Nagykörű

115 M Ft
6 szoba
336 m2
Eladó családi ház
Eladó családi ház

Szolnok

120 M Ft
3 + 4 szoba
296 m2
Eladó családi ház
Eladó családi ház

Jászjákóhalma

17.5 M Ft
3 szoba
78 m2
Eladó családi ház
Eladó családi ház

Nagykörű, Jókai út

29.9 M Ft
2 szoba
76 m2
Eladó családi ház
Eladó családi ház

Újszász

24.9 M Ft
3 szoba
90 m2
Eladó családi ház
Eladó családi ház

Jászárokszállás

21.5 M Ft
2 szoba
45 m2
Eladó családi ház
Eladó családi ház

Nagykörű, Koffán Károly út

12.99 M Ft
2 szoba
70 m2
Eladó családi ház
Eladó családi ház

Örményes

7.5 M Ft
2 szoba
73 m2
Eladó családi ház
Eladó családi ház

Szolnok

69.9 M Ft
1000 m²
220 m2
Eladó családi ház
Eladó családi ház

Nagykörű

14.9 M Ft
2 + 1 szoba
84 m2
Eladó családi ház
Eladó családi ház

Jászberény

75 M Ft
3 szoba
168 m2
Eladó családi ház
Eladó családi ház

Cibakháza

12.9 M Ft
4 szoba
111 m2
Eladó családi ház
Eladó családi ház

Nagykörű

22.9 M Ft
2 szoba
73 m2
Eladó családi ház
Eladó családi ház

Jászberény

39.9 M Ft
5 szoba
160 m2

Falusi CSOK ingatlanok

Eladó családi ház
Eladó családi ház

Pápakovácsi

33 M Ft
3 szoba
87 m2
Eladó családi ház
Eladó családi ház

Apaj

59.6 M Ft
29 + 3 szoba
912 m2
Eladó családi ház
Eladó családi ház

Somodor

8.9 M Ft
2 szoba
64 m2
Eladó ikerház
Eladó ikerház

Seregélyes

39.9 M Ft
4 szoba
150 m2
Eladó családi ház
Eladó családi ház

Gyömöre

44 M Ft
2 szoba
106 m2
Eladó családi ház
Eladó családi ház

Zengővárkony

30.999 M Ft
3 szoba
87 m2
Eladó családi ház
Eladó családi ház

Mályi

84.9 M Ft
4 szoba
100 m2
Eladó családi ház
Eladó családi ház

Szentpéterfa

52 M Ft
4 szoba
102 m2

Falusi CSOK ingatlanok

Eladó családi ház
Eladó családi ház

Lesenceistvánd

75 M Ft
2 szoba
90 m2
Eladó családi ház
Eladó családi ház

Tótújfalu

6.9 M Ft
4 szoba
120 m2
Eladó családi ház
Eladó családi ház

Tiszatenyő

13.99 M Ft
2 szoba
63 m2
Eladó családi ház
Eladó családi ház

Kamut

29 M Ft
3 szoba
100 m2
Eladó családi ház
Eladó családi ház

Somogysárd

31 M Ft
3 szoba
68 m2
Eladó családi ház
Eladó családi ház

Kétegyháza

13.9 M Ft
4 szoba
140 m2
Eladó családi ház
Eladó családi ház

Hegyeshalom

85 M Ft
4 + 1 szoba
123 m2
Eladó családi ház
Eladó családi ház

Bőny

67.8 M Ft
3 szoba
81 m2