NapForrás 20 - Buda

Eladó családi ház
Nagykőrös

+ 14 kép 1/17
33 000 000 Ft33 M Ft 330 000 Ft/m2
3 + 1 szoba
100 m²
építés éve:1970

Részletes adatok

Telekméret: 459 m2
Fűtés: Gázkonvektor
Komfort: Komfortos
Energetikai besorolás: Nem adta meg a hirdető

Az OTP Bank lakáshitel ajánlataFizetett hirdetés

+36 70 459
Varga Zoltán
referens

Érdekel az OTP Bank kedvezményes lakáshitel ajánlata? *

* A kérdésre „Igen” válasz bejelölése esetén, az „Üzenet küldése” gombra kattintva kijelentem, hogy az OTP Bank Nyrt. Adatkezelési tájékoztatójának tartalmát megismertem és tudomásul vettem.

Eladó családi ház leírása

Polgári stílusú családi ház eladó - Budapesttől kb. 1 órára, Pest vármegyében!

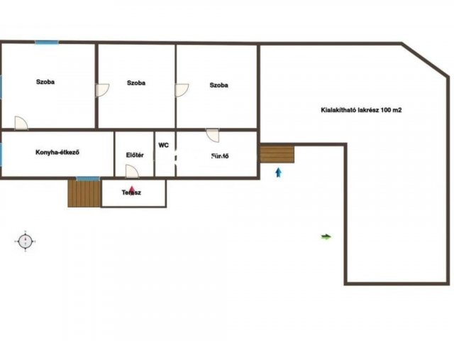
Budapesttől mintegy 80 km-re, jó elhelyezkedéssel kínálok megvételre egy összesen kb. 180 nm-es, polgári stílusú családi házat, amely egy 459 nm-es saroktelken helyezkedik el, és két utcáról is megközelíthető.
Az ingatlan a piac közelében található, így frekventált elhelyezkedése miatt akár vállalkozás számára is kiváló lehetőség.
Az épület masszív tégla falazatú és száraz szerkezetű, a tető a közelmúltban teljes cserén esett át, cserépfedéssel.
A ház egyik felében jelenleg egy kb. 100 nm-es, 3 szobás lakrész található, amelyhez pince is tartozik, míg az épület másik része felújításra vár, így az új tulajdonos saját elképzelései szerint alakíthatja ki.
Az ingatlan adottságai lehetővé teszik akár két külön lakrész kialakítását is.
A kedvező négyzetméter ár, a központ közeli elhelyezkedés, valamint a jó megközelíthetőség miatt az ingatlan befektetésnek, többgenerációs otthonnak vagy vállalkozás számára is remek választás lehet.
Az ingatlan készpénzes vevőt vár.

További információért vagy megtekintés egyeztetéséhez keress bizalommal!

Energetikai tanúsitvány nem áll rendelkezésre, elkészitése folymatban van.

Az energetikai tanúsítvány készítése folyamatban van, amint rendelkezésre áll, úgy azzal a hirdetés frissítésre kerül.

Hirdetés feltöltve: 2026. 04. 01. Utoljára módosítva: 2026. 05. 23.

4 szobás családi házak ára Nagykőrösön

Ebből az összehasonlításból megtudhatod, hogyan viszonyul a lakás ára a környékbeli családi házak átlagos árához. Ez nem azt jelenti, hogy ennyivel olcsóbb vagy drágább, mint amennyit a lakás ér, hanem hogy ennyivel tér el a környékbeli átlagtól.

Ennek a m² ára
Nagykőrös m² ár
330 e Ft
437 e Ft 24%
Ennek az ára
Nagykőrös átlagár
33 M Ft m Ft
47.4 m Ft 30%

Az ingatlan elhelyezkedése

Cím: Nagykőrös

Eladó családi házak a környékről

Nagykőrös
Eladó családi ház

Nagykőrös

54.9 M Ft
3 szoba
95 m²
Tápiószele
Eladó családi ház

Tápiószele

45 M Ft
6 szoba
360 m²
Nagykőrös
Eladó családi ház

Nagykőrös

25.5 M Ft
3 szoba
100 m²
Őrbottyán
Eladó családi ház

Őrbottyán

154 M Ft
4 + 1 szoba
115 m²
Nagykőrös
Eladó családi ház

Nagykőrös

24 M Ft
4 szoba
120 m²
Érd
Eladó családi ház

Érd

164.9 M Ft
5 szoba
192 m²
Tápiószele
Eladó családi ház

Tápiószele

18.9 M Ft
4 szoba
68 m²
Nagykőrös
Eladó családi ház

Nagykőrös

35.99 M Ft
7 szoba
196 m²
Nagykőrös, Temetőhegy dűlő
Eladó családi ház

Nagykőrös

7.4 M Ft
4 szoba
55 m²
Tápiógyörgye
Eladó családi ház

Tápiógyörgye

19.9 M Ft
3 szoba
65 m²
Tápiószele
Eladó családi ház

Tápiószele

37.9 M Ft
4 szoba
141 m²
Nagykőrös
Eladó családi ház

Nagykőrös

44.9 M Ft
8 szoba
230 m²
Budaörs
Eladó családi ház

Budaörs

400 M Ft
12 szoba
583 m²
Nagykőrös
Eladó családi ház

Nagykőrös

60 M Ft
5 szoba
240 m²
Budakeszi
Eladó családi ház

Budakeszi

130 M Ft
5 szoba
30 m²
Nagykáta
Eladó családi ház

Nagykáta

130 M Ft
3 szoba
203 m²
Zebegény
Eladó családi ház

Zebegény

69.9 M Ft
6 szoba
245 m²
Budakeszi, Budakeszi kertváros
Eladó családi ház

Budakeszi

229 M Ft
10 szoba
450 m²
Nagykőrös
Eladó családi ház

Nagykőrös

39.9 M Ft
3 szoba
300 m²
Nagykőrös
Eladó családi ház

Nagykőrös

35 M Ft
4 szoba
122 m²
Nagykőrös
Eladó családi ház

Nagykőrös

38.8 M Ft
3 szoba
180 m²
Nagykőrös
Eladó családi ház

Nagykőrös

34.9 M Ft
5 szoba
120 m²
Nagykőrös
Eladó családi ház

Nagykőrös

83.99 M Ft
5 szoba
300 m²
Dunakeszi
Eladó családi ház

Dunakeszi

250 M Ft
4 szoba
180 m²

Falusi CSOK ingatlanok

Tass
Eladó családi ház

Tass

37 M Ft
2 szoba
75 m²
Bábonymegyer
Eladó családi ház

Bábonymegyer

19.99 M Ft
5 szoba
94 m²
Rakamaz
Eladó családi ház

Rakamaz

86.9 M Ft
5 szoba
280 m²
Doba
Eladó családi ház

Doba

8.99 M Ft
1 + 2 szoba
66 m²
Újhartyán
Eladó családi ház

Újhartyán

59.9 M Ft
4 szoba
75 m²
Nagyszentjános
Eladó családi ház

Nagyszentjános

69.9 M Ft
3 szoba
80 m²
Hegyeshalom, Margaréta utca 12
Eladó téglalakás

Hegyeshalom

32.89 M Ft
1 szoba
27 m²
Zsámbok
Eladó családi ház

Zsámbok

54.85 M Ft
3 szoba
120 m²