BAM Living

Eladó családi ház
Nagykanizsa

+ 17 kép 1/20
154 900 000 Ft154.9 M Ft 397 179 Ft/m2
8 szoba
390 m²
építés éve:1990

Részletes adatok

Állapot: Felújított
Telekméret: 607 m2
Fűtés: Gázkazán
Energetikai besorolás: Nem adta meg a hirdető

Az OTP Bank lakáshitel ajánlataFizetett hirdetés

+36 70 465
Vörös Balázs
Otthon Centrum - Nagykanizsa - Fő út

Érdekel az OTP Bank kedvezményes lakáshitel ajánlata? *

* A kérdésre „Igen” válasz bejelölése esetén, az „Üzenet küldése” gombra kattintva kijelentem, hogy az OTP Bank Nyrt. Adatkezelési tájékoztatójának tartalmát megismertem és tudomásul vettem.

Eladó családi ház leírása

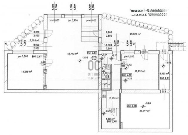
Nagykanizsa belvárosában kínálom megvételre az alábbi társasházzá alakított családi házat, amelyben jelenleg irodák és üzlethelyiség garázzsal van kialakítva.

Ingatlan jellemzői:
- 607 m2-es telken helyezkedik el, ahol belső zárt udvar található térkő burkolással.
- 8 szoba méretű helyiség van jelenleg létrehozva, amelyek iroda funkciót töltenek be, 2 db erkély, egy terasz, garázs, tárolók, vizesblokkok, közlekedők és egy üzlethelyiség.
- Társasházzá alakítás során 6 külön helyrajzi számon, 4 különálló lakás, tároló, garázs és közös helyiségek lettek megtervezve.
- A képek között található fekete-fehér alaprajzok a jelenlegi, a színesek a lehetséges, kialakítható tereket mutatják.
- A legnagyobb lakás 252 m2-es, a következő 57,7 m2-es, a harmadik 44,3 m2-es, a negyedik, legkisebb pedig 29,1 m2.
- Ezeken kívül egy közlekedő, raktár, terasz lett leválasztva, 33,2 m2 nagyságban, illetve egy garázs, ami 23,6 m2.
- A közös helyiségek mérete 22,5 m2.
- Jelenleg 390 m2 van használatban, de a lehetséges, megtervezett bővítéssel a tetőtérben, ez 463 m2-re növelhető.
- A vizesblokkok a mostani használatnak megfelelően WC-kézmosó helyiségeket jelentenek.
- Az ingatlanban minden közmű rendelkezésre áll.
- A villany és gázórákból 2-2, a vízórákból 3 db van jelenleg. Az üzlethelyiség és az irodák külön mérésen vannak.
- Fűtése 2 db gázkazánról üzemel.
- Hűtéséről klímaberendezések gondoskodnak.
- Az épület kívül, belül kiváló állapotban van, teljesen felújított.
- Beton alapokon, tégla építésű, beton födémmel, tetőtéri beépítési lehetőséggel.
- Tető héjazata cserép fedésű.
- A ház víz szigetelést és külső hőszigetelést kapott.
- A zárt udvarban több autó számára a parkolás biztosított.

Irodánk teljes körű szolgáltatást nyújt kereső ügyfeleinek.
Szakszerű tanácsadással, ingyenes CSOK és hitelügyintézéssel, energetikai tanúsítvány elkészítésével és kedvező díjszabású ügyvéddel nyújtunk segítséget!

Hirdetés feltöltve: 2026. 02. 24. Utoljára módosítva: 2026. 02. 24.

Az ingatlan elhelyezkedése

Cím: Nagykanizsa

Eladó családi házak a környékről

Hévíz, Park
Eladó családi ház

Hévíz

169 M Ft
5 szoba
220 m²
Szentliszló
Eladó családi ház

Szentliszló

29.9 M Ft
2 + 2 szoba
170 m²
Nagykanizsa
Eladó családi ház

Nagykanizsa

299 M Ft
7 szoba
1800 m²
Nagykanizsa, Bajcsy-Zsilinszky út
Eladó családi ház

Nagykanizsa

34 M Ft
2 + 1 szoba
62 m²
Zalaszentgrót
Eladó családi ház

Zalaszentgrót

49.9 M Ft
2 szoba
70 m²
Zalacsány
Eladó családi ház

Zalacsány

120 M Ft
5 + 1 szoba
220 m²
Nagykanizsa
Eladó családi ház

Nagykanizsa

89.99 M Ft
11 szoba
599 m²
Cserszegtomaj
Eladó családi ház

Cserszegtomaj

175 M Ft
3 szoba
140 m²
Nagykanizsa
Eladó családi ház

Nagykanizsa

10.7 M Ft
4 szoba
125 m²
Gyenesdiás
Eladó családi ház

Gyenesdiás

95 M Ft
4 szoba
140 m²
Letenye
Eladó családi ház

Letenye

28.5 M Ft
2 szoba
70 m²
Nagykanizsa
Eladó családi ház

Nagykanizsa

26 M Ft
3137 m²
50 m²
Nagykanizsa, Csengery
Eladó családi ház

Nagykanizsa

65.9 M Ft
4 szoba
231 m²
Nagykanizsa
Eladó családi ház

Nagykanizsa

95 M Ft
4 szoba
115 m²
Balatongyörök
Eladó családi ház

Balatongyörök

89.8 M Ft
5 szoba
140 m²
Keszthely
Eladó családi ház

Keszthely

146 M Ft
6 szoba
224 m²
Nagykanizsa, Kir
Eladó családi ház

Nagykanizsa

95 M Ft
3 szoba
300 m²
Nagykanizsa
Eladó családi ház

Nagykanizsa

98 M Ft
4 szoba
115 m²
Alsópáhok
Eladó családi ház

Alsópáhok

64.9 M Ft
3 szoba
110 m²
Zalaegerszeg
Eladó családi ház

Zalaegerszeg

200 M Ft
7 szoba
355 m²
Vindornyafok
Eladó családi ház

Vindornyafok

38.9 M Ft
3 szoba
120 m²
Hévíz
Eladó családi ház

Hévíz

80 M Ft
5 + 3 szoba
275 m²
Nagykanizsa
Eladó családi ház

Nagykanizsa

11.5 M Ft
3 szoba
62 m²
Hévíz
Eladó családi ház

Hévíz

377.19 M Ft
5 szoba
274 m²

Falusi CSOK ingatlanok

Becsehely
Eladó családi ház

Becsehely

18.5 M Ft
2 szoba
99 m²
Balatonszepezd
Eladó családi ház

Balatonszepezd

299 M Ft
5 szoba
220 m²
Porva
Eladó családi ház

Porva

74.6 M Ft
3 szoba
115 m²
Fertőszentmiklós
Eladó családi ház

Fertőszentmiklós

94.5 M Ft
2 + 2 szoba
130 m²
Bodajk
Eladó családi ház

Bodajk

42 M Ft
2 szoba
75 m²
Csákánydoroszló
Eladó családi ház

Csákánydoroszló

69 M Ft
5 szoba
170 m²
Tófej
Eladó téglalakás

Tófej

31.5 M Ft
5 szoba
85 m²
Tápiógyörgye
Eladó családi ház

Tápiógyörgye

16 M Ft
2 szoba
85 m²