Aerogate Homes

Eladó családi ház
Nagykálló

+ 7 kép 1/10
45 000 000 Ft45 M Ft 692 308 Ft/m2
2 szoba
65 m2
építés éve:2000

Részletes adatok

Állapot: Felújított
Telekméret: 247 m2
Fűtés: Egyéb
Energetikai besorolás: Nem adta meg a hirdető

Az OTP Bank lakáshitel ajánlataFizetett hirdetés

+36 30 242
Szabolcsi Vince
referens

Érdekel az OTP Bank kedvezményes lakáshitel ajánlata? *

* A kérdésre „Igen” válasz bejelölése esetén, az „Üzenet küldése” gombra kattintva kijelentem, hogy az OTP Bank Nyrt. Adatkezelési tájékoztatójának tartalmát megismertem és tudomásul vettem.

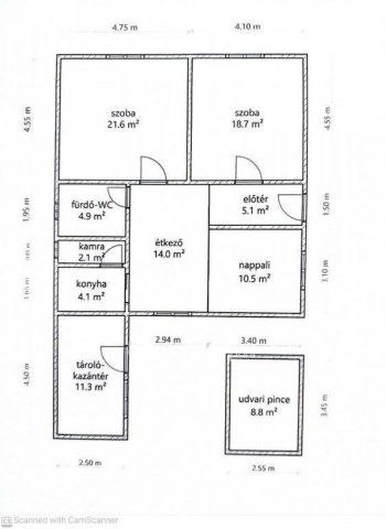
Eladó családi ház leírása

Nagykállóban eladó teljes körűen felújított családi ház!

Nagykálló központjához közel, jó megközelíthetőséggel kínálunk eladásra egy 65 nm alapterületű, téglaépítésű családi házat.

- Amerikai konyhás nappali + 2 külön nyíló szoba
- Új burkolatok, új fürdőszoba
- Teljesen felújított víz- és villanyhálózat
- Műanyag nyílászárók, redőnnyel felszerelve
- Kandallós fűtés
- Tágas, világos, jó elosztás

A ház mellett található egy 2 állásos, egy éve épült, teljesen új garázs, amely Hörmann elektromos kapuval, műanyag nyílászárókkal, vízzel és villannyal felszerelt, így akár vállalkozásra is kiválóan alkalmas.

Központi elhelyezkedése miatt minden könnyen elérhető!

Amennyiben az ingatlan vásárláshoz Otthon Start Hitelt, Babaváró támogatást, CSOK Pluszt vagy hitelt szeretne felvenni ingyenes tanácsadással segítjük ÖNT!

Hirdetés feltöltve: 2025. 11. 07. Utoljára módosítva: 2025. 11. 08.

2 szobás családi házak ára Nagykállóban

Ebből az összehasonlításból megtudhatod, hogyan viszonyul a lakás ára a környékbeli családi házak átlagos árához. Ez nem azt jelenti, hogy ennyivel olcsóbb vagy drágább, mint amennyit a lakás ér, hanem hogy ennyivel tér el a környékbeli átlagtól.

Ennek a m² ára
Nagykálló m² ár
692 e Ft
359 e Ft -93%
Ennek az ára
Nagykálló átlagár
45 M Ft m Ft
39.1 m Ft -15%

Az ingatlan elhelyezkedése

Cím: Nagykálló

Eladó családi házak a környékről

Eladó családi ház
Eladó családi ház

Nagykálló, Ibolya út

23.9 M Ft
3 szoba
75 m2
Eladó családi ház
Eladó családi ház

Napkor

49.8 M Ft
4 szoba
253 m2
Eladó családi ház
Eladó családi ház

Nagykálló

28.5 M Ft
3 szoba
70 m2
Eladó családi ház
Eladó családi ház

Nyíregyháza

92 M Ft
3 szoba
161 m2
Eladó családi ház
Eladó családi ház

Nagykálló

28 M Ft
2 + 1 szoba
120 m2
Eladó családi ház
Eladó családi ház

Nagykálló

28.5 M Ft
3 szoba
70 m2
Eladó családi ház
Eladó családi ház

Nagykálló

28.5 M Ft
2 szoba
70 m2
Eladó családi ház
Eladó családi ház

Nyíregyháza, Oros, Oros

55 M Ft
4 szoba
100 m2
Eladó családi ház
Eladó családi ház

Nyíregyháza

62 M Ft
4 szoba
140 m2
Eladó családi ház
Eladó családi ház

Nagykálló

69.9 M Ft
2 + 1 szoba
150 m2
Eladó családi ház
Eladó családi ház

Nagykálló

40 M Ft
4 + 1 szoba
136 m2
Eladó családi ház
Eladó családi ház

Nagykálló

45 M Ft
4 szoba
118 m2
Eladó családi ház
Eladó családi ház

Nagykálló

45 M Ft
4 + 1 szoba
180 m2
Eladó családi ház
Eladó családi ház

Nagykálló

28.5 M Ft
2 szoba
70 m2
Eladó családi ház
Eladó családi ház

Nagykálló

28.5 M Ft
2 szoba
70 m2
Eladó családi ház
Eladó családi ház

Nagykálló

33 M Ft
3 szoba
140 m2
Eladó családi ház
Eladó családi ház

Nagykálló

68.5 M Ft
4 szoba
155 m2
Eladó családi ház
Eladó családi ház

Nyíregyháza

250 M Ft
4 szoba
440 m2
Eladó családi ház
Eladó családi ház

Nyíregyháza

98 M Ft
4 szoba
125 m2
Eladó családi ház
Eladó családi ház

Nyíregyháza

150 M Ft
5 szoba
180 m2
Eladó családi ház
Eladó családi ház

Nyíregyháza

89.9 M Ft
5 szoba
274 m2
Eladó családi ház
Eladó családi ház

Nyíregyháza

85 M Ft
3 szoba
110 m2
Eladó családi ház
Eladó családi ház

Nyíregyháza

68 M Ft
4 szoba
220 m2
Eladó családi ház
Eladó családi ház

Nyíregyháza

140 M Ft
3 szoba
168 m2

Falusi CSOK ingatlanok

Eladó családi ház
Eladó családi ház

Velény

6.3 M Ft
2 szoba
60 m2
Eladó családi ház
Eladó családi ház

Kenyeri

39.9 M Ft
3 szoba
94 m2
Eladó családi ház
Eladó családi ház

Ceglédbercel, Iskola utca

79.99 M Ft
5 szoba
90 m2
Eladó családi ház
Eladó családi ház

Érsekcsanád

69 M Ft
6 szoba
390 m2
Eladó családi ház
Eladó családi ház

Ádánd

57.9 M Ft
5 szoba
190 m2
Eladó téglalakás
Eladó téglalakás

Nyáregyháza

61.5 M Ft
4 szoba
91 m2
Eladó családi ház
Eladó családi ház

Kesztölc

129.9 M Ft
8 szoba
210 m2
Eladó családi ház
Eladó családi ház

Olaszfa

70.38 M Ft
3 szoba
139 m2