Oasis Residence

Eladó családi ház
Nádudvar

+ 17 kép 1/20
74 900 000 Ft74.9 M Ft 613 934 Ft/m2
4 szoba
122 m2
építés éve:1993

Részletes adatok

Állapot: Felújított
Telekméret: 677 m2
Fűtés: Gázkazán
Energetikai besorolás: Nem adta meg a hirdető

Az OTP Bank lakáshitel ajánlataFizetett hirdetés

+36 70 904
Hódosné Gábor Éva
Otp Ingatlanpont

Érdekel az OTP Bank kedvezményes lakáshitel ajánlata? *

* A kérdésre „Igen” válasz bejelölése esetén, az „Üzenet küldése” gombra kattintva kijelentem, hogy az OTP Bank Nyrt. Adatkezelési tájékoztatójának tartalmát megismertem és tudomásul vettem.

Eladó családi ház leírása

ElLADÓ Nádudvar frekventált területén 677m2 telken lévő kiváló állapotban lévő igényesen kialakított 122m2 családi ház!
Az ingatlan építése 1990-ben kezdődött, és használatba vétele 1993-ban valósult meg.

Az ingatlan főbb jellemzői:
-beton alapon B38-as tégla falazatú
-a tetőszerkezet békéscsabai cserép héjazatú
-az új hőszigetelt üveggel ellátott nyílászárók 2019-ben kerültek beépítésre
-korszerű elektromos és vízhálózat
-a padlózatot hideg-melegburkolat borítja
-az otthon melegét gáz-cirkó és 2 db inverteres klíma biztosítja
-a ház kialakítása lehetővé teszi, hogy emeletráépítés/tetőtér beépítés megvalósítható, de jelenleg teljes egészében földszinti kialakítással nyerte el a teljes funkcionalitását.
-a homlokzati rész 2001-ben bővítésen ment keresztül és ekkor perlites vakolattal hőszigetelésre is sor került
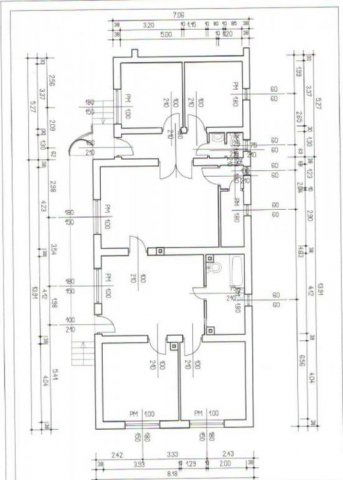
-a kiváló elosztású világos tágas beltérben: előszoba , folyosó , 4 szoba , konyha +étkező , nappali , spájz , fürdőszoba+wc , +wc helyiség kapott helyett.
Az épület rendszeres karbantartással kiváló állapotban van , beköltözéshez akár még a tisztasági festés is elhagyható!

A lakóépülethez közvetlenül csatlakozik alsóépület is, amelyben egy 1 beállásos garázs (sok pakolós polccal és szekrényekkel) és egy tároló helyiség található. Ennek mérete 37 négyzetmétert tesz ki (így jön ki a teljes ingatlan 122 + 37= 159 négyzetméteres nettó alapterülete).
Az ingatlan igazi kertvárosi szomszédos környezettel bír, haszonállattartástól mentes, jó szomszédokkal.
A telek beépítetlen része virágoskert vagy zöldterület (ez utóbbi automata öntözéssel is rendelkezik).
Az utcafronti kerítés 2024 évben került felújításra (NIVO alu+automata kapunyitó), továbbá az egyik hosszúoldali határkerítés is gondozásmentes fémkerítés (lindab).

Kiváló lokációjának köszönhetően az ingatlan minden intézménytől sétatávolságra található (400 méteren belül iskola, központi orvosi rendelő, gyógyszertár, REÁL bolt, buszmegálló, míg 800 m-en belül további boltok (SPAR, PrivátMAX), óvoda, OTP Bank, központi buszmegálló, Gyógyfürdő, Fogorvos, Okmányhivatal, Polgármesteri hivatal.
Többgyermekes és/vagy többgenerációs családnak is kitűnő választás.

Per - teher és igénymentes ingatlan , amely azonnal bírtokba vehető !
Kedvezményes kamatozású lakásvásárlási és felújítási hitelek , CSOK PLUSZ , BABAVÁRÓ ügyintézése az OTP hátterével irodánkban.
További kérdéseire készséggel válaszolok a hét bármely napján , keressen bizalommal!

Hirdetés feltöltve: 2025. 11. 03. Utoljára módosítva: 2025. 11. 03.

Az ingatlan elhelyezkedése

Cím: Nádudvar

Eladó családi házak a környékről

Eladó családi ház
Eladó családi ház

Nádudvar

8.95 M Ft
2 szoba
69 m2
Eladó családi ház
Eladó családi ház

Debrecen, Lencztelep, Szeged utca

129.9 M Ft
7 szoba
240 m2
Eladó családi ház
Eladó családi ház

Debrecen

13.9 M Ft
2 szoba
56 m2
Eladó családi ház
Eladó családi ház

Debrecen

248 M Ft
5 szoba
260 m2
Eladó családi ház
Eladó családi ház

Nádudvar

24.9 M Ft
3 szoba
118 m2
Eladó családi ház
Eladó családi ház

Debrecen

75 M Ft
4 szoba
96 m2
Eladó családi ház
Eladó családi ház

Debrecen

85 M Ft
4 szoba
100 m2
Eladó családi ház
Eladó családi ház

Nádudvar

25 M Ft
1 + 1 szoba
64 m2
Eladó családi ház
Eladó családi ház

Derecske

24.9 M Ft
2 szoba
67 m2
Eladó családi ház
Eladó családi ház

Nádudvar

10 M Ft
2 szoba
80 m2
Eladó családi ház
Eladó családi ház

Nádudvar

21.9 M Ft
4 szoba
125 m2
Eladó családi ház
Eladó családi ház

Nádudvar

34.9 M Ft
2 + 1 szoba
105 m2
Eladó családi ház
Eladó családi ház

Debrecen, Haláp Tanya

361.95 M Ft
10 szoba
500 m2
Eladó családi ház
Eladó családi ház

Nádudvar

12.9 M Ft
3 szoba
60 m2
Eladó családi ház
Eladó családi ház

Nádudvar

17.5 M Ft
3 szoba
100 m2
Eladó családi ház
Eladó családi ház

Debrecen

139 M Ft
6 szoba
240 m2
Eladó családi ház
Eladó családi ház

Hajdúdorog, Templom utca

95 M Ft
9 szoba
270 m2
Eladó családi ház
Eladó családi ház

Nádudvar

22.9 M Ft
1 + 1 szoba
64 m2
Eladó családi ház
Eladó családi ház

Nádudvar

18.5 M Ft
2 + 1 szoba
91 m2
Eladó családi ház
Eladó családi ház

Nádudvar

24.9 M Ft
5 szoba
89 m2
Eladó családi ház
Eladó családi ház

Nádudvar

18.99 M Ft
2 szoba
100 m2
Eladó családi ház
Eladó családi ház

Nádudvar

37.9 M Ft
3 szoba
80 m2
Eladó családi ház
Eladó családi ház

Püspökladány

59.6 M Ft
4 szoba
165 m2
Eladó családi ház
Eladó családi ház

Hajdúszoboszló

8.49 M Ft
1 szoba
24 m2

Falusi CSOK ingatlanok

Eladó családi ház
Eladó családi ház

Bajánsenye

34.9 M Ft
5 szoba
130 m2
Eladó családi ház
Eladó családi ház

Alattyán

45 M Ft
4 + 1 szoba
186 m2
Eladó családi ház
Eladó családi ház

Jászalsószentgyörgy

39.9 M Ft
2 szoba
74 m2
Eladó családi ház
Eladó családi ház

Fertőszentmiklós, Soproni utca

54.9 M Ft
3 szoba
80 m2
Eladó családi ház
Eladó családi ház

Ipolyvece

18.9 M Ft
3 + 1 szoba
91 m2
Eladó családi ház
Eladó családi ház

Abaújszántó

19.99 M Ft
3 szoba
84 m2
Eladó családi ház
Eladó családi ház

Szil

25 M Ft
2 szoba
90 m2
Eladó családi ház
Eladó családi ház

Kenyeri

21.8 M Ft
2 szoba
75 m2