Eladó családi ház
Monor

+ 15 kép 1/18
74 000 000 Ft74 M Ft 691 589 Ft/m2
4 szoba
107 m2
építés éve:1964

Részletes adatok

Állapot: Átlagos
Telekméret: 1083 m2
Fűtés: Gázkonvektor
Energetikai besorolás: Nem adta meg a hirdető

Az OTP Bank lakáshitel ajánlataFizetett hirdetés

+36 70 941
Terjék Nikolett Erzsébet
OTP Ingatlanpont Dunaharaszti

Érdekel az OTP Bank kedvezményes lakáshitel ajánlata? *

* A kérdésre „Igen” válasz bejelölése esetén, az „Üzenet küldése” gombra kattintva kijelentem, hogy az OTP Bank Nyrt. Adatkezelési tájékoztatójának tartalmát megismertem és tudomásul vettem.

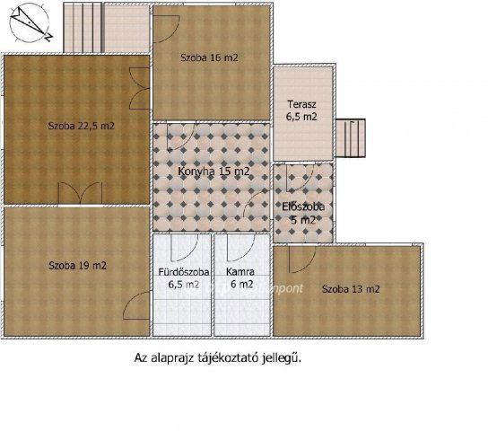
Eladó családi ház leírása

Figyelem !!!! Monoron, 690.000,-Ft-s m2-áron eladó családi ház. Monor egyik legkedveltebb részén közel a centrumhoz eladó egy 1100 m2-s telken lévő 4 szobás 100%-ban téglából épült családi ház. Az ingatlan összközműves és összkomfortos, téglából épült , cserép fedésű. Ingatlan fűtéséről gázkonvektorok a melegvíz ellátásáról villanybojler gondoskodik. A kert szép rendezett. Itt kapott helyet egy önálló garázs, több tároló és 1 db. kisebb műhely is. A környék infrastruktúrája kiváló! Minden ami fontos pár perc sétával elérhető. Az OTP Ingatlanpont teljes körű ügyintézéssel áll az eladók és a vevők rendelkezésére! A kínálatunkból választott ingatlan finanszírozásához kedvezményes hitel- konstrukciókat kínálunk. Az adásvételi szerződés megkötéséhez igény szerint megbízható ügyvédi közreműködést biztosítunk, és segítséget nyújtunk az adásvételhez kapcsolódó ügyek intézéséhez. Kérdés , mutatás esetén hívjon bizalommal! Ref. szám:M315148 Az ingatlan CSOK +-ra és 3%-s Otthon Start hitelre is megfelelő.

Hirdetés feltöltve: 2025. 10. 18. Utoljára módosítva: 2025. 10. 18.

4 szobás családi házak ára Monoron

Ebből az összehasonlításból megtudhatod, hogyan viszonyul a lakás ára a környékbeli családi házak átlagos árához. Ez nem azt jelenti, hogy ennyivel olcsóbb vagy drágább, mint amennyit a lakás ér, hanem hogy ennyivel tér el a környékbeli átlagtól.

Ennek a m² ára
Monor m² ár
692 e Ft
698 e Ft 1%
Ennek az ára
Monor átlagár
74 M Ft m Ft
81.5 m Ft 9%

Az ingatlan elhelyezkedése

Cím: Monor

Eladó családi házak a környékről

Eladó családi ház
Eladó családi ház

Budaörs, Bányász utca

385 M Ft
6 szoba
300 m2
Eladó családi ház
Eladó családi ház

Kerepes

81.99 M Ft
5 szoba
102 m2
Eladó családi ház
Eladó családi ház

Leányfalu

237 M Ft
9 szoba
800 m2
Eladó családi ház
Eladó családi ház

Remeteszőlős

399.9 M Ft
5 + 2 szoba
260 m2
Eladó családi ház
Eladó családi ház

Dunavarsány

46.9 M Ft
3 + 2 szoba
130 m2
Eladó családi ház
Eladó családi ház

Monor

45.9 M Ft
2 szoba
75 m2
Eladó családi ház
Eladó családi ház

Érd

164.9 M Ft
5 szoba
192 m2
Eladó családi ház
Eladó családi ház

Monor

69.9 M Ft
6 szoba
151 m2
Eladó családi ház
Eladó családi ház

Monor

29.9 M Ft
1 + 2 szoba
46 m2
Eladó családi ház
Eladó családi ház

Kerepes

199 M Ft
6 szoba
360 m2
Eladó családi ház
Eladó családi ház

Érd

382 M Ft
6 szoba
420 m2
Eladó családi ház
Eladó családi ház

Sződ, Rátóti utca

149.99 M Ft
11 szoba
270 m2
Eladó családi ház
Eladó családi ház

Monor

88 M Ft
4 szoba
138 m2
Eladó családi ház
Eladó családi ház

Monor

59.9 M Ft
3 szoba
63 m2
Eladó családi ház
Eladó családi ház

Monor

85 M Ft
4 szoba
138 m2
Eladó családi ház
Eladó családi ház

Monor

199.99 M Ft
5 szoba
248 m2
Eladó családi ház
Eladó családi ház

Monor

88 M Ft
4 szoba
138 m2
Eladó családi ház
Eladó családi ház

Monor

29 M Ft
2 szoba
50 m2
Eladó családi ház
Eladó családi ház

Monor

17.9 M Ft
2 szoba
30 m2
Eladó családi ház
Eladó családi ház

Monor, Bajcsy-Zsilinszky utca

69.9 M Ft
6 szoba
151 m2
Eladó családi ház
Eladó családi ház

Pécel, Reményik Sándor utca

296 M Ft
6 szoba
396 m2
Eladó családi ház
Eladó családi ház

Budakeszi, Makkosmária

100 M Ft
1 szoba
10 m2
Eladó családi ház
Eladó családi ház

Dunavarsány

69.9 M Ft
3 + 1 szoba
140 m2
Eladó családi ház
Eladó családi ház

Tápiószentmárton

7.9 M Ft
2 + 1 szoba
86 m2

Falusi CSOK ingatlanok

Eladó családi ház
Eladó családi ház

Jászkarajenő

25 M Ft
4 szoba
136 m2
Eladó családi ház
Eladó családi ház

Bárdudvarnok

28.7 M Ft
6 szoba
286 m2
Eladó családi ház
Eladó családi ház

Zalakomár

12 M Ft
3 szoba
72 m2
Eladó családi ház
Eladó családi ház

Homokkomárom

14 M Ft
0 + 3 szoba
72 m2
Eladó családi ház
Eladó családi ház

Törtel

32 M Ft
2 szoba
67 m2
Eladó családi ház
Eladó családi ház

Tabajd

79 M Ft
4 szoba
82 m2
Eladó családi ház
Eladó családi ház

Balatonfenyves

430 M Ft
4 szoba
274 m2
Eladó téglalakás
Eladó téglalakás

Tófej

31.5 M Ft
5 szoba
85 m2