Seven Pearl

Eladó családi ház
Miskolc

+ 17 kép 1/20
99 490 000 Ft99.49 M Ft 771 240 Ft/m2
4 szoba
129 m²
építés éve:2026

Részletes adatok

Telekméret: 286 m2
Fűtés: Egyéb
Energetikai besorolás: Nem adta meg a hirdető

Az OTP Bank lakáshitel ajánlataFizetett hirdetés

+36 30 590
Drótos Bence
referens

Érdekel az OTP Bank kedvezményes lakáshitel ajánlata? *

* A kérdésre „Igen” válasz bejelölése esetén, az „Üzenet küldése” gombra kattintva kijelentem, hogy az OTP Bank Nyrt. Adatkezelési tájékoztatójának tartalmát megismertem és tudomásul vettem.

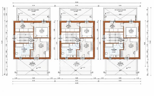
Eladó családi ház leírása

Miskolc egyik legkedveltebb városrészében, Martinkertvárosban kínálunk megvételre új építésű, kertkapcsolatos sorházi lakásokat. A csendes, nyugodt környezet ideális választás mindazok számára, akik családias, mégis jól megközelíthető helyen szeretnének élni.

A 129 nm-es ingatlan egy 4 lakásos sorház része, amelyhez saját, leválasztott telekrész tartozik, így a privát élettér is biztosított. Az épület Martinkertváros folyamatosan fejlődő, új részén helyezkedik el, modern környezetben, ahol az új építésű ingatlanok és a korszerű infrastruktúra határozza meg a környék arculatát.

A lakások korszerű műszaki tartalommal készülnek:
hőszivattyús fűtési rendszer gondoskodik majd az energiahatékony működésről, padlófűtéssel a hidegburkolatok alatt. A kiváló hő- és hangszigetelést 30 cm vastag POROTHERM falazat és 15 cm külső szigetelés biztosítja. A nyílászárók prémium minőségű, háromrétegű üvegezésű, több légkamrás Veka ablakok, míg a belső ajtók szintén minőségi kivitelben készülnek.

Az ingatlan nagy előnye a testre szabhatóság: a burkolatok és szaniterek az építkezés aktuális szakaszában még választhatók, így az új tulajdonos saját ízlésére formálhatja otthonát. A megadott ár tartalmaz egy meghatározott keretet a burkolatokra és a fürdőszobai felszerelésekre, amely igény szerint módosítható.
Burkolatok választhatók: Az ár 8.000 Ft/nm árat tartalmaz, de ettől eltérhet.
Fürdőszoba szaniterek: 400.000 Ft/fürdőszoba kerettel kiváló minőségű kerámiákra.

A kivitelezést tapasztalt, referenciákkal rendelkező szakemberek végzik, modern technológiák és minőségi alapanyagok felhasználásával. A vásárlás során szakaszos fizetési ütemezés biztosított, amely rugalmas és biztonságos megoldást kínál.

Martinkertváros egyre népszerűbb választás: zöld, nyugodt környezet, jó infrastruktúra, könnyű megközelíthetőség és folyamatos fejlődés jellemzi, így az itt vásárolt ingatlan hosszú távon is értékálló befektetés lehet.

Ne hagyja ki ezt a kiváló lehetőséget, válassza új otthonát egy modern, fejlődő környezetben!

OTP-, és más banki hátterünknek köszönhetően finanszírozási igényekben (pl. Otthon Start Hitelprogram, Babaváró, Falusi CSOK, CSOK Plusz, Lakáshitel, Személyi kölcsön stb.), illetve biztosítások tekintetében is díjmentesen, soron kívüli ügyintézéssel segítem ügyfeleim!
Érdeklődés esetén kérem hivatkozzon az M327619-es referenciaszámra.

Hirdetés feltöltve: 2026. 04. 24. Utoljára módosítva: 2026. 05. 10.

4 szobás családi házak ára Miskolcon

Ebből az összehasonlításból megtudhatod, hogyan viszonyul a lakás ára a környékbeli családi házak átlagos árához. Ez nem azt jelenti, hogy ennyivel olcsóbb vagy drágább, mint amennyit a lakás ér, hanem hogy ennyivel tér el a környékbeli átlagtól.

Ennek a m² ára
Miskolc m² ár
771 e Ft
621 e Ft -24%
Ennek az ára
Miskolc átlagár
99.49 M Ft m Ft
80.7 m Ft -23%

Az ingatlan elhelyezkedése

Cím: Miskolc

Eladó családi házak a környékről

Miskolc
Eladó családi ház

Miskolc

149 M Ft
4 szoba
463 m²
Tiszalúc, Alkotmány utca
Eladó családi ház

Tiszalúc

16.9 M Ft
4 szoba
137 m²
Miskolc
Eladó családi ház

Miskolc

69.9 M Ft
7 + 1 szoba
268 m²
Ózd
Eladó családi ház

Ózd

25.99 M Ft
4 szoba
198 m²
Miskolc
Eladó családi ház

Miskolc

25.9 M Ft
4 szoba
148 m²
Sajószentpéter, Borsvezér
Eladó családi ház

Sajószentpéter

49.5 M Ft
6 szoba
220 m²
Miskolc
Eladó családi ház

Miskolc

74.9 M Ft
7 szoba
315 m²
Tiszalúc
Eladó családi ház

Tiszalúc

19.9 M Ft
4 szoba
180 m²
Putnok
Eladó családi ház

Putnok

11 M Ft
3 szoba
79 m²
Miskolc
Eladó családi ház

Miskolc

110 M Ft
6 szoba
199 m²
Miskolc
Eladó családi ház

Miskolc

139.9 M Ft
6 szoba
280 m²
Miskolc
Eladó családi ház

Miskolc

186 M Ft
4 szoba
191 m²
Miskolc
Eladó családi ház

Miskolc

122 M Ft
6 + 1 szoba
200 m²
Gönc, Kossuth Lajos utca
Eladó családi ház

Gönc

26 M Ft
2 + 1 szoba
130 m²
Miskolc
Eladó családi ház

Miskolc

118 M Ft
4 szoba
118 m²
Rudabánya
Eladó családi ház

Rudabánya

19.9 M Ft
5 szoba
140 m²
Miskolc
Eladó családi ház

Miskolc

54.9 M Ft
5 szoba
195 m²
Komlóska
Eladó családi ház

Komlóska

55.9 M Ft
7 szoba
247 m²
Sátoraljaújhely, Aradi vértanúk útja
Eladó családi ház

Sátoraljaújhely

57 M Ft
6 szoba
310 m²
Miskolc, Miskolc-Tapolca
Eladó családi ház

Miskolc

93.9 M Ft
11 szoba
320 m²
Miskolc
Eladó családi ház

Miskolc

25.9 M Ft
4 szoba
148 m²
Ózd
Eladó családi ház

Ózd

13 M Ft
5 szoba
150 m²
Miskolc
Eladó családi ház

Miskolc

25.9 M Ft
4 szoba
148 m²
Miskolc
Eladó családi ház

Miskolc

149 M Ft
4 szoba
463 m²

Falusi CSOK ingatlanok

Csurgó
Eladó családi ház

Csurgó

29 M Ft
3 szoba
80 m²
Győrság
Eladó családi ház

Győrság

89.9 M Ft
4 szoba
92 m²
Németkér
Eladó családi ház

Németkér

149.9 M Ft
2 szoba
540 m²
Halimba
Eladó családi ház

Halimba

59.9 M Ft
6 szoba
182 m²
Szentmártonkáta
Eladó családi ház

Szentmártonkáta

59.99 M Ft
6 szoba
117 m²
Vid
Eladó családi ház

Vid

29.99 M Ft
4 szoba
100 m²
Győrság
Eladó családi ház

Győrság

79.9 M Ft
4 szoba
92 m²
Bag
Eladó családi ház

Bag

16.9 M Ft
6 szoba
160 m²