City Pearl

Eladó családi ház
Miskolc

+ 11 kép 1/14
24 900 000 Ft24.9 M Ft 366 176 Ft/m2
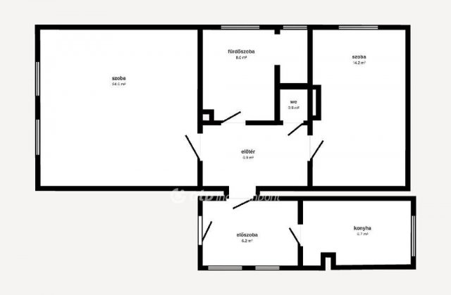
1 + 1 szoba
68 m²
építés éve:1970

Részletes adatok

Állapot: Felújítandó
Telekméret: 339 m2
Fűtés: Gázkonvektor
Energetikai besorolás: Nem adta meg a hirdető

Az OTP Bank lakáshitel ajánlataFizetett hirdetés

+36 20 361
Spéth Gábor György
OTP Ingatlanpont Miskolc Szemere

Érdekel az OTP Bank kedvezményes lakáshitel ajánlata? *

* A kérdésre „Igen” válasz bejelölése esetén, az „Üzenet küldése” gombra kattintva kijelentem, hogy az OTP Bank Nyrt. Adatkezelési tájékoztatójának tartalmát megismertem és tudomásul vettem.

Eladó családi ház leírása

Eladásra kínálok egy 2 szobás, téglából épült 68 nm-es családi házat Selyemréten, a belvárostól mindössze 5 perc távolságra. Az ingatlan remek választás mindazok számára, akik saját elképzeléseik szerint szeretnék kialakítani otthonukat, vagy befektetési lehetőséget keresnek.
A ház stabil szerkezettel rendelkezik, azonban teljes belső és külső felújítást igényel. A fűtésről gázkonvektorok gondoskodnak, míg a meleg vizet villanybojler szolgáltatja. Az ingatlan tehermentes, teljes vételár kifizetését követően azonnal birtokba vehető. Jöjjön el, nézze meg és tegyen egy ajánlatot! Várom hívását akár hétvégén is! OTP Banki hátterünknek köszönhetően finanszírozási igényekben (pl. Otthon Start Hitelprogram, Babaváró, Falusi CSOK, CSOK Plusz, Lakáshitel, Személyi kölcsön stb.), illetve biztosítások tekintetében is állunk ügyfeleink rendelkezésére! Hívása során hivatkozzon az M323929-es referenciaszámra.

Hirdetés feltöltve: 2026. 04. 03. Utoljára módosítva: 2026. 04. 03.

2 szobás családi házak ára Miskolcon

Ebből az összehasonlításból megtudhatod, hogyan viszonyul a lakás ára a környékbeli családi házak átlagos árához. Ez nem azt jelenti, hogy ennyivel olcsóbb vagy drágább, mint amennyit a lakás ér, hanem hogy ennyivel tér el a környékbeli átlagtól.

Ennek a m² ára
Miskolc m² ár
366 e Ft
539 e Ft 32%
Ennek az ára
Miskolc átlagár
24.9 M Ft m Ft
84 m Ft 70%

Az ingatlan elhelyezkedése

Cím: Miskolc

Eladó családi házak a környékről

Tiszalúc, Alkotmány utca
Eladó családi ház

Tiszalúc

16.9 M Ft
4 szoba
137 m²
Gönc, Kossuth Lajos utca
Eladó családi ház

Gönc

26 M Ft
2 + 1 szoba
130 m²
Rudabánya
Eladó családi ház

Rudabánya

19.9 M Ft
5 szoba
140 m²
Miskolc, Miskolc-Tapolca
Eladó családi ház

Miskolc

93.9 M Ft
11 szoba
320 m²
Miskolc, Avas Kelet városrész, Szilágyi Dezső
Eladó családi ház

Miskolc

147 M Ft
8 szoba
300 m²
Taktaszada, Thököly utca
Eladó családi ház

Taktaszada

37 M Ft
4 + 1 szoba
190 m²
Miskolc
Eladó családi ház

Miskolc

54.9 M Ft
5 szoba
195 m²
Szikszó
Eladó családi ház

Szikszó

89.9 M Ft
3 szoba
100 m²
Miskolc
Eladó családi ház

Miskolc

54.9 M Ft
5 szoba
195 m²
Miskolc
Eladó családi ház

Miskolc

51.9 M Ft
3 szoba
82 m²
Ózd
Eladó családi ház

Ózd

26.5 M Ft
3 szoba
100 m²
Miskolc
Eladó családi ház

Miskolc

140 M Ft
10 szoba
260 m²
Léh
Eladó családi ház

Léh

23.99 M Ft
2 + 1 szoba
100 m²
Miskolc
Eladó családi ház

Miskolc

149 M Ft
4 szoba
463 m²
Tarcal
Eladó családi ház

Tarcal

21.9 M Ft
3 szoba
90 m²
Komlóska
Eladó családi ház

Komlóska

55.9 M Ft
7 szoba
247 m²
Ózd
Eladó családi ház

Ózd

7.3 M Ft
3 szoba
125 m²
Miskolc
Eladó családi ház

Miskolc

22.9 M Ft
1 + 2 szoba
60 m²
Miskolc
Eladó családi ház

Miskolc

69.9 M Ft
7 + 1 szoba
268 m²
Miskolc
Eladó családi ház

Miskolc

340 M Ft
15 szoba
750 m²
Gönc
Eladó családi ház

Gönc

20.5 M Ft
2 szoba
80 m²
Miskolc
Eladó családi ház

Miskolc

140 M Ft
10 szoba
260 m²
Sajószentpéter, Borsvezér
Eladó családi ház

Sajószentpéter

49.5 M Ft
6 szoba
220 m²
Miskolc
Eladó családi ház

Miskolc

110 M Ft
6 szoba
199 m²

Falusi CSOK ingatlanok

Kenyeri
Eladó családi ház

Kenyeri

39.9 M Ft
3 szoba
94 m²
Berzence
Eladó családi ház

Berzence

25 M Ft
2 szoba
200 m²
Somogyszil
Eladó családi ház

Somogyszil

27.9 M Ft
3 szoba
140 m²
Badacsonytomaj
Eladó családi ház

Badacsonytomaj

285 M Ft
4 szoba
230 m²
Gesztely
Eladó családi ház

Gesztely

12.5 M Ft
3 szoba
65 m²
Mesztegnyő
Eladó családi ház

Mesztegnyő

125 M Ft
3 szoba
450 m²
Somlójenő
Eladó családi ház

Somlójenő

64.9 M Ft
4 szoba
221 m²
Balatonszepezd
Eladó családi ház

Balatonszepezd

189 M Ft
3 szoba
125 m²