City Pearl

Eladó családi ház
Miskolc

+ 7 kép 1/10
89 900 000 Ft89.9 M Ft 936 458 Ft/m2
4 szoba
96 m²
építés éve:2026

Részletes adatok

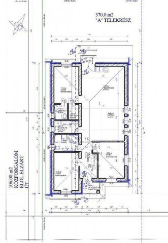
Telekméret: 370 m2
Fűtés: Egyéb
Energetikai besorolás: Nem adta meg a hirdető

Az OTP Bank lakáshitel ajánlataFizetett hirdetés

+36 30 590
Drótos Bence
OTP Ingatlanpont Miskolc Szemere

Érdekel az OTP Bank kedvezményes lakáshitel ajánlata? *

* A kérdésre „Igen” válasz bejelölése esetén, az „Üzenet küldése” gombra kattintva kijelentem, hogy az OTP Bank Nyrt. Adatkezelési tájékoztatójának tartalmát megismertem és tudomásul vettem.

Eladó családi ház leírása

Miskolc egyik legkedveltebb és folyamatosan fejlődő városrészében, Szirma új építésű lakóövezetében kínálunk megvételre egy modern, kulcsrakész állapotban átadásra kerülő családi házat. A kivitelezés jelenleg is folyamatban van, a tervezett átadás várhatóan 2026 májusában történik.

A 96 nm alapterületű családi ház egy 370 nm-es saját használatú telekrészen helyezkedik el. A ház praktikus, jól átgondolt elrendezéssel készült, amely a mindennapi kényelmet és az élhető tereket helyezi előtérbe. A belső tér központja a közel 40 nm-es, tágas amerikai konyhás nappali, világos közösségi teret biztosít a családi élethez. A nappali kertkapcsolata és kellemes tájolása tovább növeli az otthon komfortját.
Az ingatlanban három külön nyíló hálószoba került kialakításra (12,32 nm, 11,55 nm és 11,28 nm), melyek ideális méretűek hálószobának, gyerekszobának vagy akár dolgozószobának is. A praktikus elrendezést tovább erősíti a fürdőszoba, egy külön zuhanyzó, valamint két gardróbhelyiség, amelyek jelentősen megkönnyítik a mindennapi rendszerezést.
A házban emellett háztartási helyiség, közlekedő és fedett előtér is kialakításra kerül, így minden funkció külön, jól használható térben kap helyet.
Az épület tégla szerkezetű, korszerű energetikai megoldásokkal készül. A fűtésről hőszivattyús rendszer gondoskodik padlófűtéssel, amely energiatakarékos és komfortos működést biztosít. Az ingatlan redőnyökkel, klíma és riasztó előkészítéssel kerül átadásra.
Az építkezés jelenlegi szakaszában a leendő tulajdonos számára még lehetőség van bizonyos belső elemek, például burkolatok kiválasztására, a műszaki tartalomban meghatározott értékhatárig, így az otthon részben saját ízlésre szabható.

A környék infrastruktúrája kiváló: óvoda, iskola, boltok és a mindennapi élethez szükséges szolgáltatások mind könnyen elérhetők. A városközpont kb. 10 perc alatt megközelíthető, az autópálya közelsége pedig különösen előnyös azok számára, akik rendszeresen ingáznak. A nyugodt, természetközeli környezet és a kertvárosias hangulat ideális helyszínt biztosít családi élethez.

Fontos kiemelni, hogy a beruházást egy stabil, megbízható és szakmailag tapasztalt kivitelező cég valósítja meg. A projekt mögött olyan vállalkozás áll, amely valódi szakmai háttérrel és tapasztalattal rendelkezik, nem egy rövid távra létrehozott kivitelezői konstrukció!

Hirdetés feltöltve: 2026. 03. 24. Utoljára módosítva: 2026. 03. 24.

4 szobás családi házak ára Miskolcon

Ebből az összehasonlításból megtudhatod, hogyan viszonyul a lakás ára a környékbeli családi házak átlagos árához. Ez nem azt jelenti, hogy ennyivel olcsóbb vagy drágább, mint amennyit a lakás ér, hanem hogy ennyivel tér el a környékbeli átlagtól.

Ennek a m² ára
Miskolc m² ár
936 e Ft
629 e Ft -49%
Ennek az ára
Miskolc átlagár
89.9 M Ft m Ft
77.9 m Ft -15%

Az ingatlan elhelyezkedése

Cím: Miskolc

Eladó családi házak a környékről

Miskolc
Eladó családi ház

Miskolc

140 M Ft
10 szoba
260 m²
Ózd
Eladó családi ház

Ózd

15 M Ft
7 szoba
225 m²
Miskolc
Eladó családi ház

Miskolc

41.9 M Ft
5 szoba
150 m²
Ózd
Eladó családi ház

Ózd

25.99 M Ft
4 szoba
198 m²
Miskolc
Eladó családi ház

Miskolc

54.9 M Ft
5 szoba
195 m²
Miskolc
Eladó családi ház

Miskolc

340 M Ft
15 szoba
750 m²
Edelény
Eladó családi ház

Edelény

31.5 M Ft
2 szoba
75 m²
Miskolc
Eladó családi ház

Miskolc

22.9 M Ft
1 + 2 szoba
60 m²
Miskolc
Eladó családi ház

Miskolc

25.9 M Ft
4 szoba
148 m²
Miskolc
Eladó családi ház

Miskolc

139.9 M Ft
6 szoba
280 m²
Taktaszada, Thököly utca
Eladó családi ház

Taktaszada

37 M Ft
4 + 1 szoba
190 m²
Miskolc
Eladó családi ház

Miskolc

89.999 M Ft
4 szoba
128 m²
Miskolc
Eladó családi ház

Miskolc

63.9 M Ft
5 szoba
277 m²
Ózd
Eladó családi ház

Ózd

26.5 M Ft
3 szoba
100 m²
Léh
Eladó családi ház

Léh

23.99 M Ft
2 + 1 szoba
100 m²
Miskolc
Eladó családi ház

Miskolc

54.9 M Ft
5 szoba
195 m²
Szikszó
Eladó családi ház

Szikszó

89.9 M Ft
3 szoba
100 m²
Miskolc, Diósgyőr, Árpád út
Eladó családi ház

Miskolc

186 M Ft
4 szoba
191 m²
Komlóska
Eladó családi ház

Komlóska

55.9 M Ft
7 szoba
247 m²
Miskolc
Eladó családi ház

Miskolc

170 M Ft
10 szoba
260 m²
Tiszalúc
Eladó családi ház

Tiszalúc

19.9 M Ft
4 szoba
180 m²
Miskolc
Eladó családi ház

Miskolc

122 M Ft
6 + 1 szoba
200 m²
Sajószentpéter, Borsvezér
Eladó családi ház

Sajószentpéter

49.5 M Ft
6 szoba
220 m²
Miskolc
Eladó családi ház

Miskolc

186 M Ft
4 szoba
191 m²

Falusi CSOK ingatlanok

Badacsonytomaj
Eladó családi ház

Badacsonytomaj

392 M Ft
11 szoba
504 m²
Fülöpszállás
Eladó családi ház

Fülöpszállás

23.6 M Ft
3 szoba
115 m²
Tápióbicske, Nagykátai út
Eladó családi ház

Tápióbicske

14.9 M Ft
3 szoba
70 m²
Kaposszerdahely, Rákóczi utca
Eladó családi ház

Kaposszerdahely

6.5 M Ft
1 szoba
32 m²
Tésenfa, Kossuth utca 23/a
Eladó családi ház

Tésenfa

5.55 M Ft
1 + 1 szoba
109 m²
Farmos
Eladó családi ház

Farmos

59.9 M Ft
4 szoba
90 m²
Mád
Eladó családi ház

Mád

48 M Ft
3 szoba
181 m²
Lengyel
Eladó családi ház

Lengyel

56.063 M Ft
2 szoba
135 m²