Astora Art House

Eladó családi ház
Miskolc

+ 7 kép 1/10
89 900 000 Ft89.9 M Ft 936 458 Ft/m2
4 szoba
96 m²
építés éve:2026

Részletes adatok

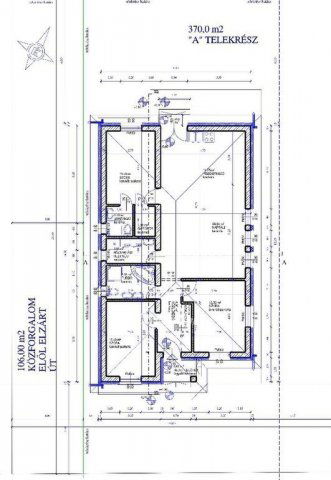
Telekméret: 370 m2
Fűtés: Egyéb
Energetikai besorolás: Nem adta meg a hirdető

Az OTP Bank lakáshitel ajánlataFizetett hirdetés

+36 70 322
Piskóti Tibor Lajos
OTP Ingatlanpont Miskolc Szemere

Érdekel az OTP Bank kedvezményes lakáshitel ajánlata? *

* A kérdésre „Igen” válasz bejelölése esetén, az „Üzenet küldése” gombra kattintva kijelentem, hogy az OTP Bank Nyrt. Adatkezelési tájékoztatójának tartalmát megismertem és tudomásul vettem.

Eladó családi ház leírása

Miskolc egyik legkedveltebb és folyamatosan fejlődő városrészében, Szirma új építésű lakóövezetében kínálunk megvételre egy modern, kulcsrakész állapotban átadásra kerülő családi házat. A kivitelezés jelenleg is folyamatban van, a tervezett átadás várhatóan 2026 májusában történik.

A 96 nm alapterületű családi ház egy 370 nm-es saját használatú telekrészen helyezkedik el. A ház praktikus, jól átgondolt elrendezéssel készült, amely a mindennapi kényelmet és az élhető tereket helyezi előtérbe. A belső tér központja a közel 25 nm-es, tágas amerikai konyhás nappali, világos közösségi teret biztosít a családi élethez. A nappali kertkapcsolata és kellemes tájolása tovább növeli az otthon komfortját.
Az ingatlanban három külön nyíló hálószoba került kialakításra (12,32 nm, 11,55 nm és 11,28 nm), melyek ideális méretűek hálószobának, gyerekszobának vagy akár dolgozószobának is. A praktikus elrendezést tovább erősíti a fürdőszoba, egy külön zuhanyzó, valamint két gardróbhelyiség, amelyek jelentősen megkönnyítik a mindennapi rendszerezést.
A házban emellett háztartási helyiség, közlekedő és fedett előtér is kialakításra kerül, így minden funkció külön, jól használható térben kap helyet.
Az épület tégla szerkezetű, korszerű energetikai megoldásokkal készül. A fűtésről hőszivattyús rendszer gondoskodik padlófűtéssel, amely energiatakarékos és komfortos működést biztosít. Az ingatlan redőnyökkel, klíma és riasztó előkészítéssel kerül átadásra.
Az építkezés jelenlegi szakaszában a leendő tulajdonos számára még lehetőség van bizonyos belső elemek, például burkolatok kiválasztására, a műszaki tartalomban meghatározott értékhatárig, így az otthon részben saját ízlésre szabható.

A környék infrastruktúrája kiváló: óvoda, iskola, boltok és a mindennapi élethez szükséges szolgáltatások mind könnyen elérhetők. A városközpont kb. 10 perc alatt megközelíthető, az autópálya közelsége pedig különösen előnyös azok számára, akik rendszeresen ingáznak. A nyugodt, természetközeli környezet és a kertvárosias hangulat ideális helyszínt biztosít családi élethez.

Fontos kiemelni, hogy a beruházást egy stabil, megbízható és szakmailag tapasztalt kivitelező cég valósítja meg. A projekt mögött olyan vállalkozás áll, amely valódi szakmai háttérrel és tapasztalattal rendelkezik, nem egy rövid távra létrehozott kivitelezői konstrukció!

Referencia szám: M324208

Hirdetés feltöltve: 2026. 03. 16. Utoljára módosítva: 2026. 04. 01.

4 szobás családi házak ára Miskolcon

Ebből az összehasonlításból megtudhatod, hogyan viszonyul a lakás ára a környékbeli családi házak átlagos árához. Ez nem azt jelenti, hogy ennyivel olcsóbb vagy drágább, mint amennyit a lakás ér, hanem hogy ennyivel tér el a környékbeli átlagtól.

Ennek a m² ára
Miskolc m² ár
936 e Ft
633 e Ft -48%
Ennek az ára
Miskolc átlagár
89.9 M Ft m Ft
79.5 m Ft -13%

Az ingatlan elhelyezkedése

Cím: Miskolc

Eladó családi házak a környékről

Szikszó
Eladó családi ház

Szikszó

89.9 M Ft
3 szoba
100 m²
Miskolc
Eladó családi ház

Miskolc

149 M Ft
4 szoba
463 m²
Miskolc
Eladó családi ház

Miskolc

39.9 M Ft
5 szoba
151 m²
Miskolc
Eladó családi ház

Miskolc

89.999 M Ft
4 szoba
128 m²
Taktaszada, Thököly utca
Eladó családi ház

Taktaszada

37 M Ft
4 + 1 szoba
190 m²
Ózd
Eladó családi ház

Ózd

7.3 M Ft
3 szoba
125 m²
Miskolc
Eladó családi ház

Miskolc

51.9 M Ft
3 szoba
82 m²
Miskolc
Eladó családi ház

Miskolc

110 M Ft
6 szoba
199 m²
Miskolc, Miskolc-Tapolca
Eladó családi ház

Miskolc

93.9 M Ft
11 szoba
320 m²
Miskolc
Eladó családi ház

Miskolc

22.9 M Ft
1 + 2 szoba
60 m²
Gönc, Kossuth Lajos utca
Eladó családi ház

Gönc

26 M Ft
2 + 1 szoba
130 m²
Miskolc
Eladó családi ház

Miskolc

25.9 M Ft
4 szoba
148 m²
Miskolc
Eladó családi ház

Miskolc

139.9 M Ft
6 szoba
280 m²
Miskolc, Diósgyőr, Árpád út
Eladó családi ház

Miskolc

186 M Ft
4 szoba
191 m²
Ózd
Eladó családi ház

Ózd

25.99 M Ft
4 szoba
198 m²
Ózd
Eladó családi ház

Ózd

15 M Ft
7 szoba
225 m²
Miskolc
Eladó családi ház

Miskolc

186 M Ft
4 szoba
191 m²
Miskolc, Avas Kelet városrész, Szilágyi Dezső
Eladó családi ház

Miskolc

147 M Ft
8 szoba
300 m²
Miskolc
Eladó családi ház

Miskolc

25.9 M Ft
4 szoba
148 m²
Léh
Eladó családi ház

Léh

23.99 M Ft
2 + 1 szoba
100 m²
Miskolc
Eladó családi ház

Miskolc

25.9 M Ft
4 szoba
148 m²
Rudabánya
Eladó családi ház

Rudabánya

19.9 M Ft
5 szoba
140 m²
Putnok
Eladó családi ház

Putnok

11 M Ft
3 szoba
79 m²
Miskolc
Eladó családi ház

Miskolc

149 M Ft
4 szoba
463 m²

Falusi CSOK ingatlanok

Marcalgergelyi
Eladó családi ház

Marcalgergelyi

31 M Ft
2 + 1 szoba
120 m²
Fülöpszállás
Eladó családi ház

Fülöpszállás

299 M Ft
14 + 5 szoba
680 m²
Jászkarajenő
Eladó családi ház

Jászkarajenő

17.5 M Ft
2 + 1 szoba
47 m²
Tápiószőlős
Eladó családi ház

Tápiószőlős

29.8 M Ft
3 szoba
75 m²
Nagykarácsony
Eladó családi ház

Nagykarácsony

34.9 M Ft
3 szoba
112 m²
Nagybörzsöny
Eladó családi ház

Nagybörzsöny

49.76 M Ft
3 szoba
110 m²
Szarvaskő, Rózsa utca
Eladó családi ház

Szarvaskő

54.9 M Ft
1 + 3 szoba
140 m²
Enese
Eladó családi ház

Enese

94.99 M Ft
3 + 1 szoba
124 m²