Seven Pearl

Eladó családi ház
Miskolc

+ 14 kép 1/17
67 500 000 Ft67.5 M Ft 475 352 Ft/m2
4 + 1 szoba
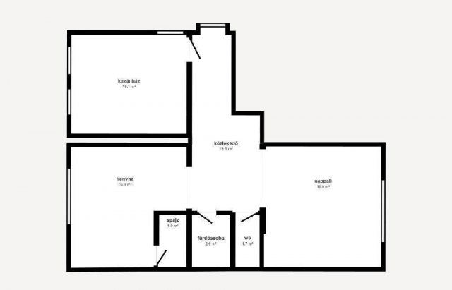
142 m2
építés éve:1987

Részletes adatok

Telekméret: 346 m2
Fűtés: Egyéb
Energetikai besorolás: Nem adta meg a hirdető

Az OTP Bank lakáshitel ajánlataFizetett hirdetés

+36 70 397
Vég-Dudás Dominika
OTP Ingatlanpont Miskolc

Érdekel az OTP Bank kedvezményes lakáshitel ajánlata? *

* A kérdésre „Igen” válasz bejelölése esetén, az „Üzenet küldése” gombra kattintva kijelentem, hogy az OTP Bank Nyrt. Adatkezelési tájékoztatójának tartalmát megismertem és tudomásul vettem.

Eladó családi ház leírása

Kényelem és nyugalom egy tökéletes helyen!Eladásra kínálunk Miskolc egyik legkedveltebb, csendes és családias városrészében, a Martin-Kertvárosban egy 142 nm-es, eltolt szintes, tágas családi házat, 346 nm-es rendezett telken.Az 1987-ben épült ingatlan folyamatosan karbantartott és az évek során több felújításon esett át: új szigetelés, zsindelyes tető, kovácsolt vaskerítés, valamint a villanybojler, a vízaknában lévő vízvezeték és a szaniterek cseréje is megtörtént.
A biztonságot 6 ponton záródó acél ajtó és riasztórendszer garantálja. A fűtésről gázkazán gondoskodik, de a vegyes tüzelésű kazán is üzembe helyezhető. Az új 20 nm-es fedett terasz és a fűthető garázs pedig még kényelmesebbé teszi a mindennapokat.A kiváló elhelyezkedésnek köszönhetően a belváros és az autópálya is percek alatt elérhető, így a mindennapi utazás gyerekjáték.Ez az ingatlan tökéletes választás családoknak, pároknak, vagy akár befektetőknek is. Rövid időn belül birtokba vehető, így akár azonnal elkezdheti a költözési előkészületeket. A bútorok igény esetén a megegyezés tárgyát képezhetik.OTP Banki hátterünkkel, finanszírozási megoldásokkal is segítjük ügyfeleinket. Az ingatlan megfelel az Otthon Start Program feltételeinek, így 3%-os lakáshitellel is megvásárolható! Jöjjön el, tekintsük meg együtt! Hívása során hivatkozzon az M312372 referenciaszámra!

Hirdetés feltöltve: 2025. 11. 12. Utoljára módosítva: 2025. 12. 02.

5 szobás családi házak ára Miskolcon

Ebből az összehasonlításból megtudhatod, hogyan viszonyul a lakás ára a környékbeli családi házak átlagos árához. Ez nem azt jelenti, hogy ennyivel olcsóbb vagy drágább, mint amennyit a lakás ér, hanem hogy ennyivel tér el a környékbeli átlagtól.

Ennek a m² ára
Miskolc m² ár
475 e Ft
436 e Ft -9%
Ennek az ára
Miskolc átlagár
67.5 M Ft m Ft
106.7 m Ft 37%

Az ingatlan elhelyezkedése

Cím: Miskolc

Eladó családi házak a környékről

Eladó családi ház
Eladó családi ház

Ózd

25.99 M Ft
4 szoba
198 m2
Eladó családi ház
Eladó családi ház

Tiszalúc, Alkotmány utca

16.9 M Ft
4 szoba
137 m2
Eladó családi ház
Eladó családi ház

Miskolc

25.9 M Ft
4 szoba
148 m2
Eladó családi ház
Eladó családi ház

Miskolc, Miskolc-Tapolca

93.9 M Ft
11 szoba
320 m2
Eladó családi ház
Eladó családi ház

Nemesbikk, Kossuth utca 3

4.5 M Ft
2 szoba
80 m2
Eladó családi ház
Eladó családi ház

Miskolc, Miskolc-Tapolca, Hattyú

57 M Ft
2 + 1 szoba
80 m2
Eladó családi ház
Eladó családi ház

Taktaszada, Thököly utca

37 M Ft
4 + 1 szoba
190 m2
Eladó családi ház
Eladó családi ház

Putnok

11 M Ft
3 szoba
79 m2
Eladó családi ház
Eladó családi ház

Gönc

20.5 M Ft
2 szoba
80 m2
Eladó családi ház
Eladó családi ház

Miskolc

139.9 M Ft
6 szoba
280 m2
Eladó családi ház
Eladó családi ház

Ónod, Nyéki utca

20.7 M Ft
2 + 1 szoba
90 m2
Eladó családi ház
Eladó családi ház

Miskolc

69.9 M Ft
7 + 1 szoba
268 m2
Eladó családi ház
Eladó családi ház

Ózd

15 M Ft
7 szoba
225 m2
Eladó családi ház
Eladó családi ház

Miskolc

89.999 M Ft
4 szoba
128 m2
Eladó családi ház
Eladó családi ház

Miskolc

39.9 M Ft
5 szoba
151 m2
Eladó családi ház
Eladó családi ház

Taktaharkány, Magtár utca

9.9 M Ft
3 szoba
100 m2
Eladó családi ház
Eladó családi ház

Edelény

31.5 M Ft
2 szoba
75 m2
Eladó családi ház
Eladó családi ház

Kurityán

15.8 M Ft
3 szoba
68 m2
Eladó családi ház
Eladó családi ház

Miskolc

22.8 M Ft
2 szoba
65 m2
Eladó családi ház
Eladó családi ház

Tarcal

19.9 M Ft
3 szoba
110 m2
Eladó családi ház
Eladó családi ház

Miskolc

51.9 M Ft
3 + 1 szoba
85 m2
Eladó családi ház
Eladó családi ház

Miskolc

41.9 M Ft
5 szoba
150 m2
Eladó családi ház
Eladó családi ház

Miskolc

58.9 M Ft
7 szoba
196 m2
Eladó családi ház
Eladó családi ház

Miskolc

122 M Ft
6 + 1 szoba
200 m2

Falusi CSOK ingatlanok

Eladó családi ház
Eladó családi ház

Fülöpszállás

299 M Ft
14 + 5 szoba
680 m2
Eladó családi ház
Eladó családi ház

Mályi

84.9 M Ft
4 szoba
100 m2
Eladó családi ház
Eladó családi ház

Törtel

18 M Ft
6 szoba
188 m2
Eladó családi ház
Eladó családi ház

Ónod, Kossuth út 10

27.499 M Ft
3 + 2 szoba
120 m2
Eladó családi ház
Eladó családi ház

Szigetújfalu

120 M Ft
291 m2
Eladó családi ház
Eladó családi ház

Gersekarát, Dózsa György utca

6 M Ft
3 szoba
58 m2
Eladó családi ház
Eladó családi ház

Kondorfa, Alvég utca

29.6 M Ft
1 + 1 szoba
67 m2
Eladó családi ház
Eladó családi ház

Dunaszekcső

27.5 M Ft
3 szoba
128 m2