Stay Family Park

Eladó családi ház
Miskolc

+ 17 kép 1/20
63 000 000 Ft63 M Ft 851 351 Ft/m2
2 + 1 szoba
74 m2
építés éve:1965

Részletes adatok

Állapot: Átlagos
Telekméret: 538 m2
Fűtés: Elektromos
Energetikai besorolás: Nem adta meg a hirdető

Az OTP Bank lakáshitel ajánlataFizetett hirdetés

+36 30 120
Antal-Dusza Hajnalka
OTP IP Miskolc Corvin 1-3

Érdekel az OTP Bank kedvezményes lakáshitel ajánlata? *

* A kérdésre „Igen” válasz bejelölése esetén, az „Üzenet küldése” gombra kattintva kijelentem, hogy az OTP Bank Nyrt. Adatkezelési tájékoztatójának tartalmát megismertem és tudomásul vettem.

Eladó családi ház leírása

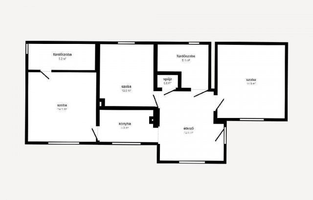
Miskolc-Tapolca festői szépségű részén 74 nm-es családi ház, 538 m2-es telekkel eladó. Az ingatlanból gyönyörű kilátás nyílik a Bükk hegység domborulataira. A ház tégla falazatú, cserép fedésű, fatüzelésű központi fűtéssel rendelkezik, de az egyenletes belső hőmérsékletet 2 db klíma is ellátja. Nagyobb felújítás 2005-ben volt, ekkor kapta jelenlegi formáját a két fürdőszoba. Található még benne 3 szoba, főzőkonyha, és egy napos terasz a reggeli kávéhoz. Az épület mögött 2 műhely rész és egy garázs helyezkedik el. Kertje a ház előtt, lépcsőzetes kialakítású, a betonos udvar folytatásában van. Az ingatlan megközelítése egy enyhe meredek emelkedővel, vagy a Bencések útja felől lehetséges.
A ház per és tehermentesen vehető meg.
OTP Banki hátterünkkel állunk ügyfeleink rendelkezésére finanszírozási kérdésekben legyen szó akár CSOK-ról, lakáshitelről.
Amennyiben ház adottságai, előnyös elhelyezkedése felkeltette érdeklődését, és szívesen megtekintené személyesen az ingatlant, kérem hívjon bizalommal! M304855

Referencia szám: M304855

Hirdetés feltöltve: 2025. 11. 06. Utoljára módosítva: 2025. 11. 30.

3 szobás családi házak ára Miskolcon

Ebből az összehasonlításból megtudhatod, hogyan viszonyul a lakás ára a környékbeli családi házak átlagos árához. Ez nem azt jelenti, hogy ennyivel olcsóbb vagy drágább, mint amennyit a lakás ér, hanem hogy ennyivel tér el a környékbeli átlagtól.

Ennek a m² ára
Miskolc m² ár
851 e Ft
556 e Ft -53%
Ennek az ára
Miskolc átlagár
63 M Ft m Ft
52.5 m Ft -20%

Az ingatlan elhelyezkedése

Cím: Miskolc

Eladó családi házak a környékről

Eladó családi ház
Eladó családi ház

Ózd, 48-as út

39.9 M Ft
3 + 1 szoba
300 m2
Eladó családi ház
Eladó családi ház

Ózd

13 M Ft
5 szoba
150 m2
Eladó családi ház
Eladó családi ház

Ónod, Nyéki utca

20.7 M Ft
2 + 1 szoba
90 m2
Eladó családi ház
Eladó családi ház

Gönc, Kossuth Lajos utca

26 M Ft
2 + 1 szoba
130 m2
Eladó családi ház
Eladó családi ház

Ózd

26.5 M Ft
3 szoba
100 m2
Eladó családi ház
Eladó családi ház

Taktaharkány, Magtár utca

9.9 M Ft
3 szoba
100 m2
Eladó családi ház
Eladó családi ház

Kurityán

15.8 M Ft
3 szoba
68 m2
Eladó családi ház
Eladó családi ház

Miskolc

54.99 M Ft
4 szoba
103 m2
Eladó családi ház
Eladó családi ház

Miskolc

89.999 M Ft
4 szoba
128 m2
Eladó családi ház
Eladó családi ház

Miskolc

39.9 M Ft
5 szoba
151 m2
Eladó családi ház
Eladó családi ház

Gönc

26 M Ft
3 szoba
130 m2
Eladó családi ház
Eladó családi ház

Tiszalúc, Alkotmány utca

16.9 M Ft
4 szoba
137 m2
Eladó családi ház
Eladó családi ház

Miskolc

350 M Ft
10 szoba
670 m2
Eladó családi ház
Eladó családi ház

Miskolc

25.9 M Ft
4 szoba
148 m2
Eladó családi ház
Eladó családi ház

Miskolc

69.9 M Ft
7 + 1 szoba
268 m2
Eladó családi ház
Eladó családi ház

Miskolc, Vargahegy, Margaréta utca

14.5 M Ft
1 szoba
42 m2
Eladó családi ház
Eladó családi ház

Miskolc, Miskolc-Tapolca

93.9 M Ft
11 szoba
320 m2
Eladó családi ház
Eladó családi ház

Miskolc

149 M Ft
4 szoba
463 m2
Eladó családi ház
Eladó családi ház

Tiszalúc

19.9 M Ft
4 szoba
180 m2
Eladó családi ház
Eladó családi ház

Miskolc

25.9 M Ft
4 szoba
148 m2
Eladó családi ház
Eladó családi ház

Miskolc, Vargahegy, Margaréta utca

14.5 M Ft
1 szoba
42 m2
Eladó családi ház
Eladó családi ház

Miskolc

95.5 M Ft
4 szoba
233 m2
Eladó családi ház
Eladó családi ház

Tarcal

19.9 M Ft
3 szoba
110 m2
Eladó családi ház
Eladó családi ház

Edelény

31.5 M Ft
2 szoba
75 m2

Falusi CSOK ingatlanok

Eladó téglalakás
Eladó téglalakás

Balatonszemes

123.3 M Ft
2 szoba
70 m2
Eladó családi ház
Eladó családi ház

Rédics

49.9 M Ft
3 szoba
107 m2
Eladó családi ház
Eladó családi ház

Ónod, Kossuth út 10

27.499 M Ft
3 + 2 szoba
120 m2
Eladó családi ház
Eladó családi ház

Bakonyszentkirály

99.99 M Ft
5 szoba
126 m2
Eladó téglalakás
Eladó téglalakás

Balatonszemes

119.9 M Ft
2 szoba
81 m2
Eladó családi ház
Eladó családi ház

Szuhakálló

65 M Ft
1 + 2 szoba
140 m2
Eladó családi ház
Eladó családi ház

Bakonycsernye

39 M Ft
3 szoba
350 m2
Eladó családi ház
Eladó családi ház

Sárosd

21.9 M Ft
3 szoba
86 m2