Avico Greentop

Eladó családi ház
Miskolc

+ 17 kép 1/20
53 000 000 Ft53 M Ft 815 385 Ft/m2
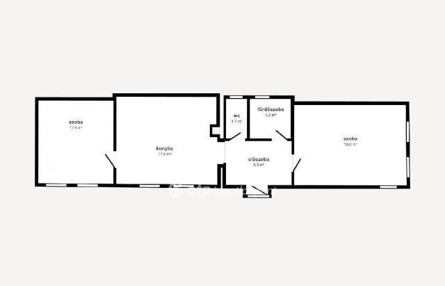
2 szoba
65 m2
építés éve:1960

Részletes adatok

Állapot: Felújított
Telekméret: 566 m2
Fűtés: Gázkazán
Energetikai besorolás: Nem adta meg a hirdető

Az OTP Bank lakáshitel ajánlataFizetett hirdetés

+36 70 907
Klubert Gergő
OTP Ingatlanpont Miskolc Szemere

Érdekel az OTP Bank kedvezményes lakáshitel ajánlata? *

* A kérdésre „Igen” válasz bejelölése esetén, az „Üzenet küldése” gombra kattintva kijelentem, hogy az OTP Bank Nyrt. Adatkezelési tájékoztatójának tartalmát megismertem és tudomásul vettem.

Eladó családi ház leírása

Otthon a Diósgyőri Vár szomszédságában. Luxus és nyugalom a Bükk lábánál.
Eladó egy varázslatos, minden részletében felújított családi ház, amely egy igazi ékszerdoboz Diósgyőr szívében. A felújítás során nem pusztán a funkcióra, hanem a designra is kiemelt hangsúlyt fektettünk, így az otthon modern, letisztult stílusa tökéletes harmóniát alkot a környék természetközeli hangulatával. Az ingatlan egy csendes, aszfaltozott utcában található, sétatávolságra a Diósgyőri Vártól és a Bükk erdejének ölelésétől, mégis percekre a város nyüzsgésétől.

A ház, ahol minden új
A ház komplett, professzionális felújításon esett át, ami nem csak a látható részekre terjed ki. A teljes villany- és vízvezetékrendszert kicserélték, garantálva ezzel a hosszú távú, gondtalan használatot. A falak kívül-belül újak, a belső terekben pedig friss, pasztell színekkel megálmodott festés és minőségi padlóburkolatok várják az új tulajdonost.

A fűtésrendszer a modern technológia csúcsát képviseli: a vadonatúj, kondenzációs gázkazán és az ehhez csatlakoztatott lapradiátorok nemcsak megbízható és egyenletes meleget biztosítanak, de rendkívül energiatakarékosak is, ami jelentősen hozzájárul a kedvező rezsiköltségekhez. A nyílászárók cseréje szintén megtörtént, a modern, szigetelt ablakok tovább növelik az ingatlan energiahatékonyságát.

A kert, ami felüdülés
A házhoz tartozó udvar maga a nyugalom szigete. A szépen gondozott, füvesített területen egy impozáns filagória található, amely ideális helyszíne a nyári grillezéseknek, baráti beszélgetéseknek vagy egy pohár bor melletti csendes pihenésnek. A kert rendezettsége és a buja zöld növényzet igazi felüdülést nyújt a rohanó mindennapok után.

Tökéletes elhelyezkedés és értékállóság
Diósgyőr ezen része egyre népszerűbb, köszönhetően a kiváló infrastruktúrának és a környék páratlan szépségének. A két szobás elrendezés ideális egy kisebb család vagy pár számára, és a ház minden szempontból értékálló befektetést jelent. Az ingatlan azonnal költözhető, kulcsra kész állapotban várja új lakóit, így a költözés után már semmi másra nem kell gondolnia, csak az új otthon örömeire.

OTP Banki hátterünknek köszönhetően finanszírozási igényekben (pl. Otthon Start Hitelprogram , Babaváró, Falusi CSOK, CSOK Plusz, Lakáshitel, Személyi kölcsön stb.), illetve biztosítások tekintetében is díjmentesen, soron kívüli ügyintézéssel segítem ügyfeleim! Referenciaszám: M312013

Ne habozzon, hívjon még ma, és tekintse meg ezt a különleges otthont, amely minden igényt kielégít!Ingatlanirodánk ügyvédi háttérrel, babaváró hitel, CSOK Plusz, valamint kamatkedvezményes hitel ügyintézésével támogatja ügyfelei ingatlanvásárlását! Hívjon bizalommal, és hivatkozzon az M312013 referenciaszámra.

Hirdetés feltöltve: 2025. 10. 14. Utoljára módosítva: 2025. 11. 25.

2 szobás családi házak ára Miskolcon

Ebből az összehasonlításból megtudhatod, hogyan viszonyul a lakás ára a környékbeli családi házak átlagos árához. Ez nem azt jelenti, hogy ennyivel olcsóbb vagy drágább, mint amennyit a lakás ér, hanem hogy ennyivel tér el a környékbeli átlagtól.

Ennek a m² ára
Miskolc m² ár
815 e Ft
476 e Ft -71%
Ennek az ára
Miskolc átlagár
53 M Ft m Ft
31.4 m Ft -69%

Az ingatlan elhelyezkedése

Cím: Miskolc

Eladó családi házak a környékről

Eladó családi ház
Eladó családi ház

Taktaharkány, Magtár utca

9.9 M Ft
3 szoba
100 m2
Eladó családi ház
Eladó családi ház

Edelény

31.5 M Ft
2 szoba
75 m2
Eladó családi ház
Eladó családi ház

Miskolc

95.5 M Ft
4 szoba
233 m2
Eladó családi ház
Eladó családi ház

Miskolc

69.9 M Ft
7 + 1 szoba
268 m2
Eladó családi ház
Eladó családi ház

Miskolc

350 M Ft
10 szoba
670 m2
Eladó családi ház
Eladó családi ház

Ózd

26.5 M Ft
3 szoba
100 m2
Eladó családi ház
Eladó családi ház

Miskolc

39.9 M Ft
5 szoba
151 m2
Eladó családi ház
Eladó családi ház

Miskolc

25.9 M Ft
4 szoba
148 m2
Eladó családi ház
Eladó családi ház

Miskolc

249 M Ft
7 szoba
520 m2
Eladó családi ház
Eladó családi ház

Tiszalúc, Alkotmány utca

16.9 M Ft
4 szoba
137 m2
Eladó családi ház
Eladó családi ház

Miskolc

149 M Ft
4 szoba
463 m2
Eladó családi ház
Eladó családi ház

Nemesbikk, Kossuth utca 3

4.5 M Ft
2 szoba
80 m2
Eladó családi ház
Eladó családi ház

Ózd

14.7 M Ft
3 szoba
95 m2
Eladó családi ház
Eladó családi ház

Gönc, Kossuth Lajos utca

26 M Ft
2 + 1 szoba
130 m2
Eladó családi ház
Eladó családi ház

Miskolc

25.9 M Ft
4 szoba
148 m2
Eladó családi ház
Eladó családi ház

Ónod, Nyéki utca

20.7 M Ft
2 + 1 szoba
90 m2
Eladó családi ház
Eladó családi ház

Ózd, Ózd falu, 48-as út

39.9 M Ft
3 + 1 szoba
300 m2
Eladó családi ház
Eladó családi ház

Miskolc

54.9 M Ft
5 szoba
195 m2
Eladó családi ház
Eladó családi ház

Kurityán

15.8 M Ft
3 szoba
68 m2
Eladó családi ház
Eladó családi ház

Szikszó

89.9 M Ft
3 szoba
100 m2
Eladó családi ház
Eladó családi ház

Ózd

13 M Ft
5 szoba
150 m2
Eladó családi ház
Eladó családi ház

Miskolc

122 M Ft
6 + 1 szoba
200 m2
Eladó családi ház
Eladó családi ház

Miskolc, Vargahegy, Margaréta utca

14.5 M Ft
1 szoba
42 m2
Eladó családi ház
Eladó családi ház

Miskolc

149 M Ft
4 szoba
463 m2

Falusi CSOK ingatlanok

Eladó családi ház
Eladó családi ház

Egyed

24.9 M Ft
2 + 1 szoba
56 m2
Eladó családi ház
Eladó családi ház

Bábolna

90.3 M Ft
5 szoba
100 m2
Eladó családi ház
Eladó családi ház

Sümegcsehi

119 M Ft
5 szoba
237 m2
Eladó családi ház
Eladó családi ház

Nyírtura

74.9 M Ft
4 szoba
120 m2
Eladó családi ház
Eladó családi ház

Sükösd

18.5 M Ft
3 szoba
89 m2
Eladó családi ház
Eladó családi ház

Szabadbattyán

136 M Ft
5 szoba
226 m2
Eladó ikerház
Eladó ikerház

Táborfalva

49.9 M Ft
4 szoba
54 m2
Eladó családi ház
Eladó családi ház

Fülöpszállás

299 M Ft
14 + 5 szoba
680 m2