Pesti Házak

Eladó családi ház
Miskolc

+ 12 kép 1/15
44 900 000 Ft44.9 M Ft 359 200 Ft/m2
5 szoba
125 m2
építés éve:2010

Részletes adatok

Állapot: Felújítandó
Telekméret: 414 m2
Fűtés: Egyéb
Energetikai besorolás: Nem adta meg a hirdető

Az OTP Bank lakáshitel ajánlataFizetett hirdetés

+36 70 201
Kégl Zsolt
OTP Ingatlanpont Miskolc Szemere

Érdekel az OTP Bank kedvezményes lakáshitel ajánlata? *

* A kérdésre „Igen” válasz bejelölése esetén, az „Üzenet küldése” gombra kattintva kijelentem, hogy az OTP Bank Nyrt. Adatkezelési tájékoztatójának tartalmát megismertem és tudomásul vettem.

Eladó családi ház leírása

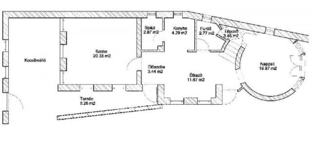
Eladó Miskolcon, Diósgyőr családi házas övezetében egy 125 nm-es, 2 szintes, tégla építésű családi ház 414 nm-es telken, a Diósgyőri vár közelében. Az ingatlan 2010-ben épült 2 ütemben, melyből a felső szint 80%-os készültséggel rendelkezik. Az épület terveit Miskolc város főépítésze, Rostás László készítette, mely magán viseli az erdélyi kultúra stílusjegyeit, szakrális jellemzőket, a hagyományos diósgyőri építészeti stílus tégla architektúrás kialakítását, a stabilitást és a részletekre való odafigyelést. Falazata vastag, hőszigetelt, nyílászárói fa szerkezetűek, szintén hőszigetelt kivitelben. Tetőzete cserép héjazatú. Az alsó szint felújítandó állapotú, ahol egy nagyszoba, nappali, konyha, fürdőszoba + wc, valamint a hátsó részben egy befejezendő nappali található. Az emeleten a készültségnek megfelelő nappali, szobák, fürdőszoba került kialakításra. A ház melegét jelenleg kályha biztosítja, de előkészítésre került a központi fűtés is, a hidegburkolatok alatt padlófűtéssel. A ház mögött szigetelt, könnyűszerkezetes melléképület található. Udvara megfelelő méretű, kerítése még nem kapta meg teljesen a ház stílusát. Víz, villany, csatorna bevezetve, gázcsonk a telken belül van. Amennyiben szeretne egy stílusos, igazán egyedi épületet, melyet saját igényére formálhat és szívesen megtekintené személyesen, kérem hívjon bizalommal!

Hirdetés feltöltve: 2025. 10. 11. Utoljára módosítva: 2025. 12. 27.

5 szobás családi házak ára Miskolcon

Ebből az összehasonlításból megtudhatod, hogyan viszonyul a lakás ára a környékbeli családi házak átlagos árához. Ez nem azt jelenti, hogy ennyivel olcsóbb vagy drágább, mint amennyit a lakás ér, hanem hogy ennyivel tér el a környékbeli átlagtól.

Ennek a m² ára
Miskolc m² ár
359 e Ft
433 e Ft 17%
Ennek az ára
Miskolc átlagár
44.9 M Ft m Ft
100 m Ft 55%

Az ingatlan elhelyezkedése

Cím: Miskolc

Eladó családi házak a környékről

Eladó családi ház
Eladó családi ház

Gönc, Kossuth Lajos utca

26 M Ft
2 + 1 szoba
130 m2
Eladó családi ház
Eladó családi ház

Szikszó

89.9 M Ft
3 szoba
100 m2
Eladó családi ház
Eladó családi ház

Kurityán

15.8 M Ft
3 szoba
68 m2
Eladó családi ház
Eladó családi ház

Miskolc, Vargahegy, Margaréta utca

14.5 M Ft
1 szoba
42 m2
Eladó családi ház
Eladó családi ház

Miskolc

44 M Ft
3 + 1 szoba
120 m2
Eladó családi ház
Eladó családi ház

Miskolc

54.9 M Ft
5 szoba
195 m2
Eladó családi ház
Eladó családi ház

Ózd

15 M Ft
7 szoba
225 m2
Eladó családi ház
Eladó családi ház

Miskolc

89.999 M Ft
4 szoba
128 m2
Eladó családi ház
Eladó családi ház

Miskolc

140 M Ft
10 szoba
260 m2
Eladó családi ház
Eladó családi ház

Miskolc, Avas Kelet városrész, Szilágyi Dezső

160 M Ft
8 szoba
300 m2
Eladó családi ház
Eladó családi ház

Ózd

13 M Ft
5 szoba
150 m2
Eladó családi ház
Eladó családi ház

Miskolc

63.9 M Ft
5 szoba
277 m2
Eladó családi ház
Eladó családi ház

Tiszalúc, Alkotmány utca

16.9 M Ft
4 szoba
137 m2
Eladó családi ház
Eladó családi ház

Gönc

20.5 M Ft
2 szoba
80 m2
Eladó családi ház
Eladó családi ház

Miskolc

58.9 M Ft
7 szoba
196 m2
Eladó családi ház
Eladó családi ház

Miskolc

95.5 M Ft
4 szoba
233 m2
Eladó családi ház
Eladó családi ház

Miskolc

54.99 M Ft
4 szoba
103 m2
Eladó családi ház
Eladó családi ház

Rudabánya

19.9 M Ft
5 szoba
140 m2
Eladó családi ház
Eladó családi ház

Miskolc, Miskolc-Tapolca, Hattyú

54.9 M Ft
2 + 1 szoba
65 m2
Eladó családi ház
Eladó családi ház

Miskolc, Miskolc-Tapolca

93.9 M Ft
11 szoba
320 m2
Eladó családi ház
Eladó családi ház

Miskolc

139.9 M Ft
6 szoba
280 m2
Eladó családi ház
Eladó családi ház

Miskolc

110 M Ft
6 szoba
199 m2
Eladó családi ház
Eladó családi ház

Edelény

31.5 M Ft
2 szoba
75 m2
Eladó családi ház
Eladó családi ház

Miskolc

51.9 M Ft
3 + 1 szoba
85 m2

Falusi CSOK ingatlanok

Eladó családi ház
Eladó családi ház

Álmosd

13.9 M Ft
2 szoba
80 m2
Eladó családi ház
Eladó családi ház

Magyarpolány

90 M Ft
2 szoba
70 m2
Eladó családi ház
Eladó családi ház

Szentliszló

29.9 M Ft
3 + 2 szoba
157 m2
Eladó családi ház
Eladó családi ház

Balatonfenyves

430 M Ft
4 szoba
274 m2
Eladó családi ház
Eladó családi ház

Levelek

61 M Ft
4 szoba
102 m2
Eladó családi ház
Eladó családi ház

Tiszaroff

13.9 M Ft
2 szoba
81 m2
Eladó családi ház
Eladó családi ház

Csökmő

32 M Ft
4 szoba
120 m2
Eladó családi ház
Eladó családi ház

Szalánta

149.9 M Ft
10 szoba
301 m2