Aerogate Homes

Eladó családi ház
Kőröstetétlen

Figyelem!

Ez az ingatlan a 2019.07.01-től induló falusi CSOK által támogatott településen található

+ 17 kép 1/20
17 900 000 Ft17.9 M Ft 192 473 Ft/m2
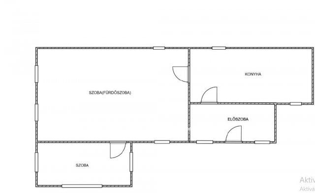
2 + 1 szoba
93 m2
építés éve:1960

Részletes adatok

Állapot: Felújítandó
Telekméret: 1609 m2
Fűtés: Egyéb
Energetikai besorolás: Nem adta meg a hirdető

Az OTP Bank lakáshitel ajánlataFizetett hirdetés

+36 70 358
Jancsovics-Andó Bernadett
referens

Érdekel az OTP Bank kedvezményes lakáshitel ajánlata? *

* A kérdésre „Igen” válasz bejelölése esetén, az „Üzenet küldése” gombra kattintva kijelentem, hogy az OTP Bank Nyrt. Adatkezelési tájékoztatójának tartalmát megismertem és tudomásul vettem.

Eladó családi ház leírása

Pest Vármegyében, Kőröstetétlenenen eladó egy 93 nm-es ingatlan, melyet kedved szerint csinosíthatsz. A ház felújítása megkezdődött, a villany vezeték átalakításának köszönhetően 3*16A került kialakításra. A régi csövek, vezetékek és válaszfalak bontása megtörtént. A gáz a telken belül található. A régi csövek, vezetékek és válaszfalak bontása megtörtént. Az ingatlan tehermentes, azonnal birtokba vehető. Kőröstetétlenről könnyen megközelíthető Budapest és környéke, így ideális lehet azok számára, akik a város közelségében szeretnének élni, ugyanakkor élvezni a vidéki élet nyugalmát. A lakosság barátságos és összetartó, ami kellemes és támogató környezetet teremt a lakók számára. Igény esetén ügyvédi közreműködést is biztosítunk az adásvételhez.

Hirdetés feltöltve: 2025. 10. 23. Utoljára módosítva: 2025. 12. 15.

Az ingatlan elhelyezkedése

Cím: Kőröstetétlen

Eladó ingatlanok a környékről

Eladó családi ház
Eladó családi ház

Tahitótfalu

188 M Ft
7 szoba
280 m2
Eladó családi ház
Eladó családi ház

Farmos

59.9 M Ft
3 + 1 szoba
100 m2
Eladó téglalakás
Eladó téglalakás

Leányfalu

81 M Ft
4 szoba
126 m2
Eladó családi ház
Eladó családi ház

Kerepes

199 M Ft
6 szoba
360 m2
Eladó sorház
Eladó sorház

Pécel

89.9 M Ft
1 + 4 szoba
80 m2
Eladó családi ház
Eladó családi ház

Pócsmegyer

89.5 M Ft
4 szoba
150 m2
Eladó családi ház
Eladó családi ház

Budakeszi

130 M Ft
5 szoba
30 m2
Eladó sorház
Eladó sorház

Szigetszentmárton

59.9 M Ft
3 szoba
64 m2
Eladó családi ház
Eladó családi ház

Budaörs, Odvshegy utca

268.9 M Ft
5 szoba
235 m2
Eladó családi ház
Eladó családi ház

Dabas

117.3 M Ft
4 szoba
119 m2
Eladó családi ház
Eladó családi ház

Gyál, Gyál út

169.9 M Ft
2 szoba
90 m2
Eladó családi ház
Eladó családi ház

Kőröstetétlen

14.9 M Ft
3 szoba
65 m2
Eladó ikerház
Eladó ikerház

Kisnémedi

60 M Ft
4 szoba
118 m2
Eladó nyaraló
Eladó nyaraló

Isaszeg

48 M Ft
3 szoba
48 m2
Eladó családi ház
Eladó családi ház

Kőröstetétlen

64.9 M Ft
7 szoba
130 m2
Eladó családi ház
Eladó családi ház

Kőröstetétlen

17.9 M Ft
2 + 1 szoba
93 m2
Eladó családi ház
Eladó családi ház

Leányfalu, 26HL9975

129 M Ft
7 szoba
252 m2
Eladó családi ház
Eladó családi ház

Pécel, Reményik Sándor utca

296 M Ft
6 szoba
396 m2
Eladó családi ház
Eladó családi ház

Pomáz

155 M Ft
4 szoba
154 m2
Eladó családi ház
Eladó családi ház

Budakeszi, Budakeszi kertváros

229 M Ft
10 szoba
450 m2
Eladó családi ház
Eladó családi ház

Kőröstetétlen

21.99 M Ft
2 szoba
80 m2
Eladó családi ház
Eladó családi ház

Érd

164.9 M Ft
5 szoba
192 m2
Eladó családi ház
Eladó családi ház

Remeteszőlős

399.9 M Ft
5 + 2 szoba
260 m2
Eladó családi ház
Eladó családi ház

Dunavarsány

69.9 M Ft
3 + 1 szoba
140 m2

Falusi CSOK ingatlanok

Eladó családi ház
Eladó családi ház

Magyarpolány

69.8 M Ft
7 szoba
298 m2
Eladó családi ház
Eladó családi ház

Hernádnémeti

18.9 M Ft
2 szoba
62 m2
Eladó családi ház
Eladó családi ház

Jászalsószentgyörgy

39.9 M Ft
2 szoba
74 m2
Eladó családi ház
Eladó családi ház

Abaújszántó

19.99 M Ft
3 szoba
84 m2
Eladó családi ház
Eladó családi ház

Nemesszentandrás

75 M Ft
4 szoba
164 m2
Eladó családi ház
Eladó családi ház

Jakabszállás

69.99 M Ft
1 + 4 szoba
91 m2
Eladó panellakás
Eladó panellakás

Pétfürdő

49.9 M Ft
3 szoba
71 m2
Eladó családi ház
Eladó családi ház

Devecser

42.9 M Ft
3 szoba
100 m2

Falusi CSOK ingatlanok

Eladó családi ház
Eladó családi ház

Csurgó

10 M Ft
2 szoba
80 m2
Eladó családi ház
Eladó családi ház

Jászalsószentgyörgy

39.9 M Ft
2 szoba
74 m2
Eladó családi ház
Eladó családi ház

Homokbödöge

49.9 M Ft
4 + 1 szoba
167 m2
Eladó téglalakás
Eladó téglalakás

Balatonszemes

125.2 M Ft
2 szoba
50 m2
Eladó családi ház
Eladó családi ház

Gógánfa

22.99 M Ft
3 szoba
93 m2
Eladó családi ház
Eladó családi ház

Adásztevel

8.9 M Ft
2 szoba
63 m2
Eladó családi ház
Eladó családi ház

Porva

74.6 M Ft
3 szoba
115 m2
Eladó családi ház
Eladó családi ház

Kondorfa

71 M Ft
2 szoba
82 m2