BAM Living

Eladó családi ház
Komló

+ 17 kép 1/20
80 000 000 Ft80 M Ft 285 714 Ft/m2
6 szoba
280 m²
építés éve:1990

Részletes adatok

Telekméret: 1109 m2
Fűtés: Távfűtés
Energetikai besorolás: E

Az OTP Bank lakáshitel ajánlataFizetett hirdetés

+36 20 390
Rózsavölgyi Csilla
OTPIP - Pécs, Rákóczi út 19.

Érdekel az OTP Bank kedvezményes lakáshitel ajánlata? *

* A kérdésre „Igen” válasz bejelölése esetén, az „Üzenet küldése” gombra kattintva kijelentem, hogy az OTP Bank Nyrt. Adatkezelési tájékoztatójának tartalmát megismertem és tudomásul vettem.

Eladó családi ház leírása

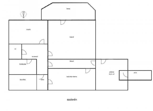
Örök panorámás 3 szintes ház eladó komlón a Szilvási városrészben.
3 nappali, 3 hálószoba, 3 konyha, 3 fürdőszoba, 3 Wc, 4 terasz, 1 garázs, (távirányítású ajtóval), 1 présház, 1 pince tartozik hozzá.
336 négyzetméter lakórésszel, és 1109 négyzetméter enyhén lejtős bekerített telek tartozik hozzá.
1190-ben épült téglából. Egy ikerház egyik fele, ami nincs összeépítve a szomszéddal.
Az alsó szint kívülről is megközelíthető, így alkalmas irodának, magánrendelőnek, vállalkozásnak. A ház szigetelése megfelelő, nyílászárói fa-műanyag ablakok, fűtése távfűtés valamint a földszinti nappaliban nagyon szép épített cserépkályha található.
Igény esetén teljesen berendezéssel együtt eladó.
Referenciaszám: M312494

80000000 Ft

Hirdetés feltöltve: 2026. 04. 01. Utoljára módosítva: 2026. 05. 10.

Az ingatlan elhelyezkedése

Cím: Komló

Eladó családi házak a környékről

Egyházaskozár, Hatos Gusztáv utca
Eladó családi ház

Egyházaskozár

4.7 M Ft
3 szoba
79 m²
Pécs, Szabolcsfalu, Szabadságharc utca
Eladó családi ház

Pécs

58.99 M Ft
3 szoba
240 m²
Siklós, Külterület
Eladó családi ház

Siklós

61.5 M Ft
2 szoba
110 m²
Komló
Eladó családi ház

Komló

84.9 M Ft
7 szoba
200 m²
Siklós, Felszabadulás utca
Eladó családi ház

Siklós

199 M Ft
7 szoba
600 m²
Komló, Irinyi
Eladó családi ház

Komló

38 M Ft
4 szoba
150 m²
Komló
Eladó családi ház

Komló

34.9 M Ft
3 szoba
85 m²
Komló
Eladó családi ház

Komló

80 M Ft
6 szoba
280 m²
Szentlőrinc, Bertalan püspök utca
Eladó családi ház

Szentlőrinc

85 M Ft
3 szoba
330 m²
Komló
Eladó családi ház

Komló

80 M Ft
6 szoba
280 m²
Komló, Fő utca
Eladó családi ház

Komló

26.99 M Ft
3 szoba
110 m²
Geresdlak, Flórián utca
Eladó családi ház

Geresdlak

15 M Ft
2 szoba
130 m²
Magyarhertelend, Bokréta utca
Eladó családi ház

Magyarhertelend

24.9 M Ft
3 + 3 szoba
102 m²
Palotabozsok
Eladó családi ház

Palotabozsok

9.9 M Ft
3 szoba
0 m²
Komló, Hízlalda u
Eladó családi ház

Komló

85 M Ft
2 + 4 szoba
140 m²
Komló
Eladó családi ház

Komló

23 M Ft
3 szoba
100 m²
Komló, Hízlalda utca
Eladó családi ház

Komló

49.9 M Ft
7 szoba
200 m²
Mohács, Szőlőhegy
Eladó családi ház

Mohács

32.99 M Ft
2 szoba
72 m²
Lánycsók
Eladó családi ház

Lánycsók

75 M Ft
7 szoba
247 m²
Komló
Eladó családi ház

Komló

80 M Ft
6 szoba
336 m²
Görcsöny, Hársfa utca
Eladó családi ház

Görcsöny

249 M Ft
5 szoba
270 m²
Bükkösd, Kossuth Lajos utca
Eladó családi ház

Bükkösd

16 M Ft
1 szoba
210 m²
Komló
Eladó családi ház

Komló

80 M Ft
6 szoba
280 m²
Komló, Fürj köz
Eladó családi ház

Komló

59 M Ft
3 + 1 szoba
80 m²

Falusi CSOK ingatlanok

Gyékényes
Eladó családi ház

Gyékényes

16.9 M Ft
3 szoba
83 m²
Verseg
Eladó családi ház

Verseg

41.5 M Ft
2 szoba
55 m²
Sály, Kossuth Lajos 128
Eladó családi ház

Sály

27.45 M Ft
6 szoba
160 m²
Tab
Eladó családi ház

Tab

64.99 M Ft
4 szoba
160 m²
Ásványráró
Eladó családi ház

Ásványráró

42.5 M Ft
703 m²
69 m²
Zagyvarékas, Erdő utca 16
Eladó családi ház

Zagyvarékas

0.1 M Ft
2 szoba
113 m²
Tab, Rákóczi utca 45
Eladó családi ház

Tab

17.13 M Ft
1 + 1 szoba
105 m²
Herend
Eladó családi ház

Herend

144.9 M Ft
7 szoba
285 m²