Avico Greentop

Eladó családi ház
Kóka

+ 17 kép 1/20
67 000 000 Ft67 M Ft 511 450 Ft/m2
5 szoba
131 m2
építés éve:2024

Részletes adatok

Telekméret: 1448 m2
Fűtés: Egyéb
Energetikai besorolás: Nem adta meg a hirdető

Az OTP Bank lakáshitel ajánlataFizetett hirdetés

+36 1 690
Palotainé Kovács Gabriella
referens

Érdekel az OTP Bank kedvezményes lakáshitel ajánlata? *

* A kérdésre „Igen” válasz bejelölése esetén, az „Üzenet küldése” gombra kattintva kijelentem, hogy az OTP Bank Nyrt. Adatkezelési tájékoztatójának tartalmát megismertem és tudomásul vettem.

Eladó családi ház leírása

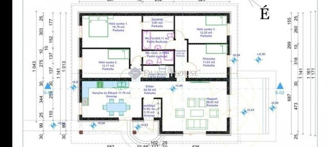
DUPLA KOMFORTOS,4 SZOBÁS,HŐSZIVATTYÚS ÚJ ÉPÍTÉSŰ CSALÁDI HÁZ!!!Megvételre kínálok Kókán nagyon csendes nyugodt helyen,szép környezetben egy Új építésű Családi Házat,amely pár perc sétára található a buszmegállótól, így a közlekedés is könnyen megoldható.A busz a Sülysápi vasútállomásra érkezik,ahonnan vonattal 35 perc alatt bent lehetünk a Keleti Pályaudvaron.Az ingatlan főbb jellemzői:- A fűtése Hősszivattyúval megoldott,radiátorokkal egybekötve.- 3 rétegű új műanyag nyílászárók találhatóak a teljes ingatlanban.- 15 cm szigetelés a teljes ingatlanon.- Víz,villany,csatorna az ingatlanban,Gáz a telken belű ha igényt tartana rá a leendő új tulajdonos.- 4 db klíma kiállás már adott az ingatlanban.- Hideg,meleg burkolatok 5000,-/nm2- 120 L Okos bojler kerül felszerelésre.- Beltéri ajtók 75.000,-/db- Dupla komfortos egy Fürdőszoba zuhanyzóval,másik fürdőszoba káddal ellátott. Pluszban mind két fürdő szobában található WC is.- Található az ingatlanban egy Gardrób szoba is,amely még komfortosabbá teszi az ott élést.- Pluszban egy hatalmas telek amely rengeteg kültéri tevékenység létrehozására is alkalmas,mint medence,sütögető,pagoda,konyhakert,vagy nagyobb veteményes kert kialakítására is.- Egy fedett kocsibeálló,vagy garázs kialakítására is alkalmas.Szuper helyen található,természet közeli de még is minden a közelben van.Teljes műszaki dokumentáció a rendelkezésemre áll.VÁROM MEGTISZTELŐ HÍVÁSÁT,TEKINTSÜK MEG EZT A REMEK LEHETŐSÉGET EGYÜTT!!!
Kovács Gabriella,Tel:+36/202070435,e-mail:palotaine.gabriella@dh.hu

Referencia szám: HZ022307

Hirdetés feltöltve: 2025. 10. 03. Utoljára módosítva: 2025. 11. 25.

5 szobás családi házak ára Kókán

Ebből az összehasonlításból megtudhatod, hogyan viszonyul a lakás ára a környékbeli családi házak átlagos árához. Ez nem azt jelenti, hogy ennyivel olcsóbb vagy drágább, mint amennyit a lakás ér, hanem hogy ennyivel tér el a környékbeli átlagtól.

Ennek a m² ára
Kóka m² ár
511 e Ft
469 e Ft -9%
Ennek az ára
Kóka átlagár
67 M Ft m Ft
66.4 m Ft -1%

Az ingatlan elhelyezkedése

Cím: Kóka

Eladó családi házak a környékről

Eladó családi ház
Eladó családi ház

Budakeszi, Makkosmária

100 M Ft
1 szoba
10 m2
Eladó családi ház
Eladó családi ház

Dunavarsány

49.9 M Ft
3 + 2 szoba
130 m2
Eladó családi ház
Eladó családi ház

Kóka

39.99 M Ft
2 szoba
59 m2
Eladó családi ház
Eladó családi ház

Tápiószentmárton

48 M Ft
5 szoba
180 m2
Eladó családi ház
Eladó családi ház

Érd

164.9 M Ft
5 szoba
192 m2
Eladó családi ház
Eladó családi ház

Kóka

36 M Ft
2 szoba
63 m2
Eladó családi ház
Eladó családi ház

Budaörs, Odvshegy utca

268.9 M Ft
5 szoba
235 m2
Eladó családi ház
Eladó családi ház

Kóka, Tabán utca 9

22 M Ft
1 szoba
42 m2
Eladó családi ház
Eladó családi ház

Kóka

25 M Ft
3 szoba
75 m2
Eladó családi ház
Eladó családi ház

Kóka, Új utca

69.99 M Ft
4 szoba
92 m2
Eladó családi ház
Eladó családi ház

Kóka

39.99 M Ft
2 szoba
59 m2
Eladó családi ház
Eladó családi ház

Sződ, Rátóti utca

149.99 M Ft
11 szoba
270 m2
Eladó családi ház
Eladó családi ház

Budaörs, Városközpont utca

119.5 M Ft
5 + 1 szoba
140 m2
Eladó családi ház
Eladó családi ház

Kóka

44.9 M Ft
4 szoba
74 m2
Eladó családi ház
Eladó családi ház

Kóka, Erdősor utca

25.9 M Ft
3 szoba
63 m2
Eladó családi ház
Eladó családi ház

Kóka

96.9 M Ft
6 szoba
147 m2
Eladó családi ház
Eladó családi ház

Kerepes

199 M Ft
6 szoba
360 m2
Eladó családi ház
Eladó családi ház

Kóka

69.99 M Ft
4 szoba
92 m2
Eladó családi ház
Eladó családi ház

Leányfalu

237 M Ft
9 szoba
800 m2
Eladó családi ház
Eladó családi ház

Budakeszi, Budakeszi kertváros

140 M Ft
2 szoba
55 m2
Eladó családi ház
Eladó családi ház

Remeteszőlős

399.9 M Ft
5 + 2 szoba
260 m2
Eladó családi ház
Eladó családi ház

Budaörs, Bányász utca

385 M Ft
6 szoba
300 m2
Eladó családi ház
Eladó családi ház

Kóka, Rét utca

15.7 M Ft
4 szoba
112 m2
Eladó családi ház
Eladó családi ház

Kóka

69.9 M Ft
5 szoba
91 m2

Falusi CSOK ingatlanok

Eladó családi ház
Eladó családi ház

Adásztevel

8.9 M Ft
2 szoba
63 m2
Eladó családi ház
Eladó családi ház

Bükkábrány

46.9 M Ft
4 szoba
120 m2
Eladó családi ház
Eladó családi ház

Somogygeszti

10.9 M Ft
2 szoba
115 m2
Eladó családi ház
Eladó családi ház

Bakonycsernye

39 M Ft
3 szoba
350 m2
Eladó családi ház
Eladó családi ház

Tésenfa, Kossuth utca 23/a

5.55 M Ft
1 + 1 szoba
109 m2
Eladó családi ház
Eladó családi ház

Elek

85.9 M Ft
5 szoba
274 m2
Eladó családi ház
Eladó családi ház

Újszilvás

39.5 M Ft
3 szoba
62 m2
Eladó családi ház
Eladó családi ház

Kemeneshőgyész

8 M Ft
2 szoba
60 m2