Eladó családi ház
Kistokaj

+ 17 kép 1/20
297 000 000 Ft297 M Ft 996 644 Ft/m2
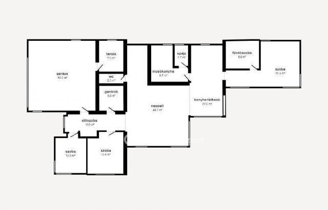
6 + 2 szoba
298 m2
építés éve:2017

Részletes adatok

Állapot: Újszerű
Telekméret: 981 m2
Fűtés: Gázkazán
Energetikai besorolás: Nem adta meg a hirdető

Az OTP Bank lakáshitel ajánlataFizetett hirdetés

+36 70 907
Klubert Gergő
OTP Ingatlanpont Miskolc Szemere

Érdekel az OTP Bank kedvezményes lakáshitel ajánlata? *

* A kérdésre „Igen” válasz bejelölése esetén, az „Üzenet küldése” gombra kattintva kijelentem, hogy az OTP Bank Nyrt. Adatkezelési tájékoztatójának tartalmát megismertem és tudomásul vettem.

Eladó családi ház leírása

A kistokaji csoda: Ahol a luxus és a tökéletesség találkozik!

Képzeljen el egy otthont, ami több, mint egy épület. Egy olyan helyet, amely egy európai belsőépítész mesterműve, ahol minden apró részlet a kifinomult ízlésről és a páratlan minőségről árulkodik. Üdvözöljük Miskolc szomszédságában, Kistokaj legújabb, exkluzív lakóparkjában, ahol egy 2017-ben épült, 298 m2-es, luxus családi ház várja új tulajdonosát. Ez az ingatlan nemcsak a szemnek gyönyörködtető, de a mérnöki precizitás és a technológiai innováció csúcsa is.

Az otthon egyik legkülönlegesebb eleme az ámulatba ejtő panoráma, amely a 85 m2-es teraszról tárul elénk. A terasz egy tökéletes helyszín a nyugodt reggelekre és a felejthetetlen naplementékre. A belső térben a minimalista stílus elegánsan és otthonosan fonódik össze, köszönhetően az olasz prémium padlóburkolatnak, amely nem csupán minőségi, de védjegyes hologrammal ellátott, egyedi márkajelzéses termék, garantálva a hamisítatlan eredetiséget.

Páratlan építészeti megoldások
A ház minden eleme a legmagasabb minőséget képviseli, és a tervek milliméter pontosággal valósultak meg, melyet három mestervizsgás építészmérnök felügyelt. Ennek köszönhetően a rendkívül stabil alapozásnak hála az épület földrengés biztos. A 38 cm vastag tégla falazat és a 15 cm-es kőzetgyapot szigetelés kiváló hőszigetelést biztosítanak. A homlokzati rendszer és a vízzáró szigetelés teljes egészében STO márkájú, öntisztuló anyagokból készült, amelyek a piac élvonalában vannak. A tetőszigetelés réteges kialakítása pedig garantálja a páratlan energiahatékonyságot. A ROPANT nyílászárók 3 rétegű üvegezéssel és a Schlotterer zsaluziák tökéletesen szabályozzák a belső hőmérsékletet. A monolit vasbeton födémek a szerkezet stabilitását és a hangszigetelést garantálják.

Intelligens technológia a mindennapokban
A ház gépészete a modern kor legfejlettebb technológiáját használja. A fűtést egy Vaillant hőszivattyús rendszer és gázkazán biztosítja, melyek padlófűtést működtetnek az egész ingatlanban. A melegvízről egy puffertartály gondoskodik. A nyári melegben négy Fujitsu klíma biztosítja a kellemes hőmérsékletet. Egy BWT vízlágyító védi a gépészeti berendezéseket a vízkőtől és javítja a víz minőségét.

A kert, ami a kikapcsolódás szigete
A 981 m2-es telek egy valóságos oázis, ahol minden a pihenésről és a szórakozásról szól. A kert fénypontja a 24,5 m2-es, fűthető medence, amely automata sóbontóval és hőszivattyúval van felszerelve, így egész évben használható. A 21 m2-es filagória egy igazi kerti konyhaként funkcionál, ahol konyhabútor, melegvíz és médiafal is található. A hangulatos süllyesztett szalonnasütő és a melléképület (külön WC-vel és tárolóval) teszik teljessé a kényelmet. A kert növényzetét egy fúrt kútról üzemelő automata öntözőrendszer gondozza, így a zöldterület mindig tökéletes állapotban van.
A biztonságról kamera- és riasztórendszer, valamint távfelügyelet gondoskodik, így teljes nyugalomban élvezheti otthonát.
Ez a luxus családi ház nem csupán egy ingatlan, hanem egy életérzés. Ne szalassza el a lehetőséget, hogy megtekintse ezt a páratlan otthont, amely méltán viseli a kistokaji csoda nevet.
Jöjjön el, és tekintse meg, garantáltan nem fog csalódni! Vevőink rendelkezésére állunk finanszírozási kérdésekben is OTP banki hátterünkkel! Hívása során hivatkozzon az M311989 referenciaszámra!

The Miracle of Kistokaj: Where Luxury and Perfection Meet
Imagine a home that is more than just a building. A place that is a masterpiece of European interior design, where every tiny detail speaks of refined taste and unparalleled quality. Welcome to Kistokaj, next to Miskolc, in a brand-new, exclusive residential park, where a luxurious 298 m? family home, built in 2017, awaits its new owner. This property is not only a feast for the eyes but also the pinnacle of engineering precision and technological innovation.

One of the most unique elements of the home is the stunning panoramic view that unfolds from the 85 m? terrace. The terrace is the perfect place for peaceful mornings and unforgettable sunsets. Inside, a minimalist style is elegantly and cozily intertwined, thanks to premium Italian floor tiles. These are not just high-quality but also a unique branded product with a registered hologram, guaranteeing their authentic origin.

Unparalleled Architectural Solutions
Every element of the house represents the highest quality, and the plans were executed with millimeter precision, supervised by three master-certified architectural engineers. Thanks to the extremely stable foundation, the building is earthquake-resistant. The 38 cm thick brick walls and 15 cm rock wool insulation provide excellent thermal insulation. The facade system and water-resistant insulation are made entirely of STO-brand, self-cleaning materials, which are at the forefront of the market. The layered roof insulation guarantees unparalleled energy efficiency. The ROPANT windows with 3-pane glazing and Schlotterer blinds perfectly regulate the internal temperature. The monolithic reinforced concrete slabs guarantee the structures stability and sound insulation.

Smart Technology for Everyday Life
The houses mechanics use the most advanced technology of the modern era. Heating is provided by a Vaillant heat pump system and a gas boiler, which operate underfloor heating throughout the property. Hot water is supplied by a buffer tank. In the summer heat, four Fujitsu air conditioners ensure a pleasant temperature. A BWT water softener protects the mechanical equipment from limescale and improves water quality.

The Garden: An Island of Relaxation
The 981 m? plot is a true oasis where everything is about relaxation and entertainment. The highlight of the garden is the 24.5 m? heated pool, equipped with an automatic salt chlorinator and a heat pump, making it usable all year round. The 21 m? gazebo functions as a real outdoor kitchen, complete with kitchen cabinets, hot water, and a media wall. The cozy sunken fire pit and the outbuilding (with a separate toilet and storage) complete the comfort. The gardens plants are cared for by an automatic irrigation system powered by a drilled well, so the green area is always in perfect condition.

Security is ensured by a camera and alarm system, as well as remote monitoring, so you can enjoy your home in complete tranquility.

This luxury family home is not just a property but a way of life. Dont miss the opportunity to see this unparalleled home, which rightfully bears the name The Miracle of Kistokaj.

Come and see for yourself, you are guaranteed not to be disappointed! Our OTP bank background allows us to assist our clients with financing questions! When you call, please refer to the reference number M311989!

Das Wunder von Kistokaj: Wo Luxus und Perfektion aufeinandertreffen
Stellen Sie sich ein Zuhause vor, das mehr ist als nur ein Gebäude. Ein Ort, der ein Meisterwerk europäischer Innenarchitektur ist, wo jedes noch so kleine Detail von raffiniertem Geschmack und unvergleichlicher Qualität zeugt. Willkommen in Kistokaj, in der Nähe von Miskolc, in einem brandneuen, exklusiven Wohnpark, wo ein luxuriöses 298 m? großes Einfamilienhaus, erbaut im Jahr 2017, auf seinen neuen Besitzer wartet. Diese Immobilie ist nicht nur eine Augenweide, sondern auch der Höhepunkt ingenieurtechnischer Präzision und technologischer Innovation.

Eines der einzigartigsten Elemente des Hauses ist der atemberaubende Panoramablick, der sich von der 85 m? großen Terrasse aus bietet. Die Terrasse ist der perfekte Ort für ruhige Morgenstunden und unvergessliche Sonnenuntergänge. Im Inneren verschmilzt der minimalistische Stil elegant und wohnlich, dank der hochwertigen italienischen Bodenfliesen. Diese sind nicht nur von hoher Qualität, sondern auch ein einzigartiges Markenprodukt mit einem registrierten Hologramm, das ihre authentische Herkunft garantiert.

Unvergleichliche architektonische Lösungen
Jedes Element des Hauses repräsentiert die höchste Qualität, und die Pläne wurden mit millimetergenauer Präzision umgesetzt, überwacht von drei meisterzertifizierten Bauingenieuren. Dank der extrem stabilen Fundamente ist das Gebäude erdbebensicher. Die 38 cm dicken Ziegelwände und die 15 cm dicke Steinwolldämmung sorgen für eine hervorragende Wärmedämmung. Das Fassadensystem und die wasserdichte Isolierung bestehen vollständig aus selbst-reinigenden STO-Markenmaterialien, die auf dem Markt führend sind. Die mehrschichtige Dachisolierung garantiert eine unvergleichliche Energieeffizienz. Die ROPANT-Fenster mit 3-fach-Verglasung und Schlotterer-Jalousien regulieren perfekt die Innentemperatur. Die monolithischen Stahlbetondecken garantieren die Stabilität der Struktur und die Schalldämmung.

Intelligente Technologie für den Alltag
Die Haustechnik nutzt die fortschrittlichste Technologie der modernen Ära. Die Heizung wird durch ein Vaillant-Wärmepumpensystem und einen Gaskessel bereitgestellt, die in der gesamten Immobilie eine Fußbodenheizung betreiben. Ein Pufferspeicher sorgt für Warmwasser. An heißen Sommertagen sorgen vier Fujitsu-Klimaanlagen für eine angenehme Temperatur. Ein BWT-Wasserenthärter schützt die technischen Geräte vor Kalk und verbessert die Wasserqualität.

Der Garten: Eine Insel der Entspannung
Das 981 m? große Grundstück ist eine wahre Oase, in der sich alles um Entspannung und Unterhaltung dreht. Das Highlight des Gartens ist der 24,5 m? große, beheizte Pool, der mit einem automatischen Salzchlorinator und einer Wärmepumpe ausgestattet ist, wodurch er das ganze Jahr über nutzbar ist. Die 21 m? große Laube fungiert als echte Außenküche, komplett mit Küchenmöbeln, Warmwasser und einer Medienwand. Die gemütliche, versenkte Feuerstelle und das Nebengebäude (mit separatem WC und Abstellraum) runden den Komfort ab. Die Pflanzen des Gartens werden von einem automatischen Bewässerungssystem gepflegt, das von einem gebohrten Brunnen gespeist wird, sodass die Grünfläche immer in perfektem Zustand ist.

Die Sicherheit wird durch ein Kamera- und Alarmsystem sowie eine Fernüberwachung gewährleistet, sodass Sie Ihr Zuhause in völliger Ruhe genießen können.

Dieses luxuriöse Einfamilienhaus ist nicht nur eine Immobilie, sondern ein Lebensgefühl. Verpassen Sie nicht die Gelegenheit, dieses unvergleichliche Zuhause zu besichtigen, das zu Recht den Namen ?Das Wunder von Kistokaj trägt.

Kommen Sie und überzeugen Sie sich selbst, Sie werden garantiert nicht enttäuscht sein! Mit unserem Hintergrund bei der OTP Bank stehen wir unseren Kunden auch bei Finanzierungsfragen zur Seite! Bei Ihrem Anruf geben Sie bitte die Referenznummer M311989 an!

Hirdetés feltöltve: 2025. 10. 14.

Az ingatlan elhelyezkedése

Cím: Kistokaj

Eladó ingatlanok a környékről

Eladó családi ház
Eladó családi ház

Onga

34.5 M Ft
3 szoba
83 m2
Eladó családi ház
Eladó családi ház

Miskolc

44.9 M Ft
3 szoba
100 m2
Eladó téglalakás
Eladó téglalakás

Ózd, Béke lakótelep, Árpád vezér út

5.8 M Ft
2 szoba
52 m2
Eladó nyaraló
Eladó nyaraló

Miskolc

9.9 M Ft
1 szoba
30 m2
Eladó családi ház
Eladó családi ház

Kistokaj

297 M Ft
6 + 2 szoba
298 m2
Eladó családi ház
Eladó családi ház

Kistokaj

297 M Ft
6 + 2 szoba
298 m2
Eladó családi ház
Eladó családi ház

Tiszalúc, Alkotmány utca

16.9 M Ft
4 szoba
137 m2
Eladó családi ház
Eladó családi ház

Kistokaj

297 M Ft
6 + 2 szoba
298 m2
Eladó családi ház
Eladó családi ház

Emőd

54.99 M Ft
3 szoba
101 m2
Eladó családi ház
Eladó családi ház

Ózd

13 M Ft
5 szoba
150 m2
Eladó családi ház
Eladó családi ház

Miskolc, Vargahegy, Margaréta utca

14.5 M Ft
1 szoba
42 m2
Eladó családi ház
Eladó családi ház

Miskolc

59.9 M Ft
4 + 2 szoba
250 m2
Eladó családi ház
Eladó családi ház

Kistokaj

297 M Ft
6 + 2 szoba
298 m2
Eladó családi ház
Eladó családi ház

Kistokaj

297 M Ft
6 + 2 szoba
298 m2
Eladó családi ház
Eladó családi ház

Sátoraljaújhely

28.8 M Ft
3 szoba
106 m2
Eladó családi ház
Eladó családi ház

Kisgyőr, Rákóczi

59.9 M Ft
3 szoba
100 m2
Eladó családi ház
Eladó családi ház

Sárospatak

52 M Ft
6 szoba
182 m2
Eladó családi ház
Eladó családi ház

Tiszakeszi

12.9 M Ft
3 szoba
87 m2
Eladó téglalakás
Eladó téglalakás

Miskolc

37.5 M Ft
1 + 2 szoba
42 m2
Eladó panellakás
Eladó panellakás

Miskolc

24.5 M Ft
1 + 1 szoba
37 m2
Eladó panellakás
Eladó panellakás

Miskolc

24.4 M Ft
1 + 1 szoba
35 m2
Eladó téglalakás
Eladó téglalakás

Miskolc

24.3 M Ft
1 szoba
37 m2
Eladó családi ház
Eladó családi ház

Putnok

11 M Ft
3 szoba
79 m2
Eladó családi ház
Eladó családi ház

Kistokaj

297 M Ft
6 + 2 szoba
298 m2

Falusi CSOK ingatlanok

Eladó családi ház
Eladó családi ház

Újszilvás

34.9 M Ft
3 szoba
66 m2
Eladó családi ház
Eladó családi ház

Újszilvás

14.9 M Ft
2 szoba
50 m2
Eladó családi ház
Eladó családi ház

Bogács

135 M Ft
2 szoba
106 m2
Eladó családi ház
Eladó családi ház

Szilvágy

49.99 M Ft
3 szoba
90 m2
Eladó családi ház
Eladó családi ház

Tök

96.2 M Ft
4 szoba
104 m2
Eladó családi ház
Eladó családi ház

Gáborjánháza

23 M Ft
2 szoba
117 m2
Eladó családi ház
Eladó családi ház

Kánya

27.6 M Ft
3 + 1 szoba
62 m2
Eladó családi ház
Eladó családi ház

Úrkút, Temető utca

99 M Ft
7 szoba
540 m2