Astora Olive Club House

Eladó családi ház
Kiskunlacháza

+ 11 kép 1/14
59 900 000 Ft59.9 M Ft 495 041 Ft/m2
4 szoba
121 m2
építés éve:1965

Részletes adatok

Állapot: Átlagos
Telekméret: 850 m2
Fűtés: Gázkazán
Közmű: Víz, Gáz, Villany, Csatorna
Energetikai besorolás: Nem adta meg a hirdető

Az OTP Bank lakáshitel ajánlataFizetett hirdetés

+36 20 461
Dsugán Béla
referens

Érdekel az OTP Bank kedvezményes lakáshitel ajánlata? *

* A kérdésre „Igen” válasz bejelölése esetén, az „Üzenet küldése” gombra kattintva kijelentem, hogy az OTP Bank Nyrt. Adatkezelési tájékoztatójának tartalmát megismertem és tudomásul vettem.

Eladó családi ház leírása

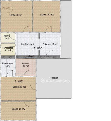
Pest vármegye, egyik legkedveltebb részén Kiskunlacházán, eladó egy 850 m2-s telken lévő, 2 generációs, téglaépítésű duplakomfortos 4 szobás összesen 121 m2-s családi ház. Az ingatlan jelenleg 2 házból áll amik egy ajtó beépítésével egybenyithatók. Az 1. ház 72 m2-s kettő szobás átlagos állapotú. Fűtése konvektorokkal, hűtő-fűtővel és kandallóval megoldott. A 2 ház pár éve épült újnak mondható. Ez a lakrész 50 m2-s , 2 szobás kiváló állapotú. Ez utóbbi fűtéséről kombi-cirkó a hűtéséről hűtő-fűtő klíma gondoskodik. Az ingatlan H tarifával és ipari árammal is rendelkezik. A nappaliból kilépve jutunk ki a nagy méretű teraszra . Az udvarban található egy dupla beállós garázs és több tároló is. A környék infrastruktúrája nagyon jó. Minden ami számít pár perc sétával elérhető. Az OTP Ingatlanpont teljes körű ügyintézéssel áll az eladók és a vevők rendelkezésére! A kínálatunkból választott ingatlan finanszírozásához kedvezményes hitel- konstrukciókat kínálunk. Az adásvételi szerződés megkötéséhez igény szerint megbízható ügyvédi közreműködést biztosítunk, és segítséget nyújtunk az adásvételhez kapcsolódó ügyek intézéséhez. Kérdés , mutatás esetén hívjon bizalommal! Ref. szám: M317486

Hirdetés feltöltve: 2025. 11. 15. Utoljára módosítva: 2025. 11. 15.

4 szobás családi házak ára Kiskunlacházán

Ebből az összehasonlításból megtudhatod, hogyan viszonyul a lakás ára a környékbeli családi házak átlagos árához. Ez nem azt jelenti, hogy ennyivel olcsóbb vagy drágább, mint amennyit a lakás ér, hanem hogy ennyivel tér el a környékbeli átlagtól.

Ennek a m² ára
Kiskunlacháza m² ár
495 e Ft
774 e Ft 36%
Ennek az ára
Kiskunlacháza átlagár
59.9 M Ft m Ft
84.2 m Ft 29%

Az ingatlan elhelyezkedése

Cím: Kiskunlacháza

Eladó családi házak a környékről

Eladó családi ház
Eladó családi ház

Kiskunlacháza

35.5 M Ft
3 szoba
60 m2
Eladó családi ház
Eladó családi ház

Kiskunlacháza

450 M Ft
5 + 1 szoba
405 m2
Eladó családi ház
Eladó családi ház

Kiskunlacháza

72.5 M Ft
4 szoba
91 m2
Eladó családi ház
Eladó családi ház

Kiskunlacháza

65 M Ft
3 szoba
207 m2
Eladó családi ház
Eladó családi ház

Kiskunlacháza

450 M Ft
4 + 2 szoba
405 m2
Eladó családi ház
Eladó családi ház

Kiskunlacháza

450 M Ft
6 szoba
405 m2
Eladó családi ház
Eladó családi ház

Kiskunlacháza, Dunaparti utca

65 M Ft
3 szoba
204 m2
Eladó családi ház
Eladó családi ház

Kiskunlacháza

67 M Ft
4 szoba
106 m2
Eladó családi ház
Eladó családi ház

Kiskunlacháza

67 M Ft
4 szoba
106 m2
Eladó családi ház
Eladó családi ház

Budakeszi, Makkosmária

100 M Ft
1 szoba
10 m2
Eladó családi ház
Eladó családi ház

Tápiószentmárton

7.9 M Ft
2 + 1 szoba
86 m2
Eladó családi ház
Eladó családi ház

Kiskunlacháza, Szabadság utca 20

24.85 M Ft
1 + 1 szoba
84 m2
Eladó családi ház
Eladó családi ház

Kiskunlacháza

72 M Ft
4 szoba
91 m2
Eladó családi ház
Eladó családi ház

Leányfalu

237 M Ft
9 szoba
800 m2
Eladó családi ház
Eladó családi ház

Kiskunlacháza

450 M Ft
5 + 1 szoba
405 m2
Eladó családi ház
Eladó családi ház

Tápiószentmárton

48 M Ft
5 szoba
180 m2
Eladó családi ház
Eladó családi ház

Budakeszi, Budakeszi kertváros

229 M Ft
10 szoba
450 m2
Eladó családi ház
Eladó családi ház

Budakeszi, Budakeszi kertváros

140 M Ft
2 szoba
55 m2
Eladó családi ház
Eladó családi ház

Kiskunlacháza

45.9 M Ft
3 + 1 szoba
156 m2
Eladó családi ház
Eladó családi ház

Kiskunlacháza

450 M Ft
5 + 1 szoba
405 m2
Eladó családi ház
Eladó családi ház

Kiskunlacháza

32.5 M Ft
3 szoba
80 m2
Eladó családi ház
Eladó családi ház

Tápiószele

32.9 M Ft
4 szoba
200 m2
Eladó családi ház
Eladó családi ház

Kiskunlacháza

119.9 M Ft
4 szoba
360 m2
Eladó családi ház
Eladó családi ház

Kiskunlacháza

89.1 M Ft
5 szoba
99 m2

Falusi CSOK ingatlanok

Eladó családi ház
Eladó családi ház

Zengővárkony

35 M Ft
3 szoba
87 m2
Eladó családi ház
Eladó családi ház

Szentkirályszabadja

119.9 M Ft
6 szoba
185 m2
Eladó családi ház
Eladó családi ház

Körösladány

14.9 M Ft
2 szoba
65 m2
Eladó családi ház
Eladó családi ház

Kemeneshőgyész

8 M Ft
2 szoba
60 m2
Eladó családi ház
Eladó családi ház

Geresdlak

44.9 M Ft
4 + 1 szoba
200 m2
Eladó családi ház
Eladó családi ház

Mórichida

44.9 M Ft
3 szoba
89 m2
Eladó családi ház
Eladó családi ház

Bogács

79.5 M Ft
6 szoba
180 m2
Eladó téglalakás
Eladó téglalakás

Balatonszemes

546 M Ft
4 szoba
136 m2