Pesti Házak

Eladó családi ház
Kiskunlacháza

+ 11 kép 1/14
75 000 000 Ft75 M Ft 576 923 Ft/m2
4 szoba
130 m2
építés éve:1970

Részletes adatok

Állapot: Átlagos
Telekméret: 993 m2
Fűtés: Gázkazán
Energetikai besorolás: Nem adta meg a hirdető

Az OTP Bank lakáshitel ajánlataFizetett hirdetés

+36 70 423
Hackenberger Rita
Szigetszentmiklós OTP Ip

Érdekel az OTP Bank kedvezményes lakáshitel ajánlata? *

* A kérdésre „Igen” válasz bejelölése esetén, az „Üzenet küldése” gombra kattintva kijelentem, hogy az OTP Bank Nyrt. Adatkezelési tájékoztatójának tartalmát megismertem és tudomásul vettem.

Eladó családi ház leírása

Figyelem!!! Kiskunlacházán 625.000,-Ft-s négyzetméter áron eladó egy családi ház.!!!
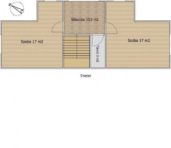
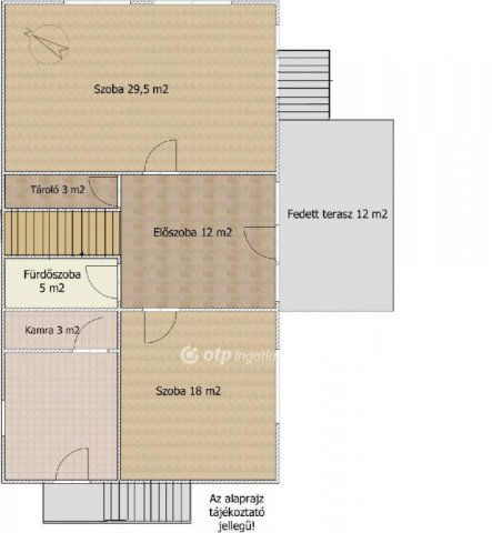
Pest megyében, Kiskunlacháza centrumában eladó egy 1000m2-es telken lévő , 130 m2-es 3 szintes, 4 szobás, összkomfortos családi ház. Az ingatlan földszinti részén található 2 szoba, konyha, fürdőszoba, konyha, tároló és egy nagy előszoba. Innen jutunk ki a 12 m2-s fedett teraszra . Az emeleten kapott helyet kettő szoba valamint egy nagy előtér is. A pincében ( 84 m2 ) lett kiépítve a gépészet a gáz-cirkóval valamint a garázs rész is. Az ingatlan szerkezete nagyon jó állapotban van de belső terek kicsit retró kinézetűek. A szép nagy telken több gyümölcsfa és több külső tároló is található. Ezen a területen is több autó parkolására is van lehetőség. A környék infrastruktúrája kiváló! Minden ami fontos pár perc alatt elérhető bele értve a tömegközlekedést is. Az OTP Ingatlanpont teljes körű ügyintézéssel áll az eladók és a vevők rendelkezésére! A kínálatunkból választott ingatlan finanszírozásához kedvezményes hitel- konstrukciókat kínálunk. Az adásvételi szerződés megkötéséhez igény szerint megbízható ügyvédi közreműködést biztosítunk, és segítséget nyújtunk az adásvételhez kapcsolódó ügyek intézéséhez. Kérdés , mutatás esetén hívjon bizalommal! Ref. szám:M316673

Hirdetés feltöltve: 2025. 11. 12. Utoljára módosítva: 2025. 11. 12.

4 szobás családi házak ára Kiskunlacházán

Ebből az összehasonlításból megtudhatod, hogyan viszonyul a lakás ára a környékbeli családi házak átlagos árához. Ez nem azt jelenti, hogy ennyivel olcsóbb vagy drágább, mint amennyit a lakás ér, hanem hogy ennyivel tér el a környékbeli átlagtól.

Ennek a m² ára
Kiskunlacháza m² ár
577 e Ft
748 e Ft 23%
Ennek az ára
Kiskunlacháza átlagár
75 M Ft m Ft
82.1 m Ft 9%

Az ingatlan elhelyezkedése

Cím: Kiskunlacháza

Eladó családi házak a környékről

Eladó családi ház
Eladó családi ház

Kiskunlacháza

89.1 M Ft
5 szoba
99 m2
Eladó családi ház
Eladó családi ház

Budaörs, Bányász utca

385 M Ft
6 szoba
300 m2
Eladó családi ház
Eladó családi ház

Tápiószentmárton

48 M Ft
5 szoba
180 m2
Eladó családi ház
Eladó családi ház

Kiskunlacháza

159.9 M Ft
4 szoba
170 m2
Eladó családi ház
Eladó családi ház

Kerepes

81.99 M Ft
5 szoba
102 m2
Eladó családi ház
Eladó családi ház

Kerepes

199 M Ft
6 szoba
360 m2
Eladó családi ház
Eladó családi ház

Kiskunlacháza

450 M Ft
4 + 2 szoba
405 m2
Eladó családi ház
Eladó családi ház

Dunavarsány

49.9 M Ft
3 + 2 szoba
130 m2
Eladó családi ház
Eladó családi ház

Kiskunlacháza

450 M Ft
6 szoba
405 m2
Eladó családi ház
Eladó családi ház

Kiskunlacháza

119.9 M Ft
4 szoba
360 m2
Eladó családi ház
Eladó családi ház

Kiskunlacháza

72 M Ft
4 szoba
91 m2
Eladó családi ház
Eladó családi ház

Kiskunlacháza

69.99 M Ft
3 szoba
90 m2
Eladó családi ház
Eladó családi ház

Dunakeszi

250 M Ft
4 szoba
180 m2
Eladó családi ház
Eladó családi ház

Dunavarsány

69.9 M Ft
3 + 1 szoba
140 m2
Eladó családi ház
Eladó családi ház

Budakeszi, Makkosmária

100 M Ft
1 szoba
10 m2
Eladó családi ház
Eladó családi ház

Tápiószentmárton

7.9 M Ft
2 + 1 szoba
86 m2
Eladó családi ház
Eladó családi ház

Budakeszi

130 M Ft
5 szoba
30 m2
Eladó családi ház
Eladó családi ház

Kiskunlacháza

65 M Ft
3 szoba
207 m2
Eladó családi ház
Eladó családi ház

Pécel, Reményik Sándor utca

296 M Ft
6 szoba
396 m2
Eladó családi ház
Eladó családi ház

Kiskunlacháza

45.9 M Ft
3 + 1 szoba
156 m2
Eladó családi ház
Eladó családi ház

Tápiószele

37.9 M Ft
4 szoba
141 m2
Eladó családi ház
Eladó családi ház

Budakeszi, Budakeszi kertváros

229 M Ft
10 szoba
450 m2
Eladó családi ház
Eladó családi ház

Kiskunlacháza

120 M Ft
4 szoba
135 m2
Eladó családi ház
Eladó családi ház

Kiskunlacháza

67 M Ft
4 szoba
106 m2

Falusi CSOK ingatlanok

Eladó családi ház
Eladó családi ház

Dunaszentbenedek

24.9 M Ft
2 szoba
85 m2
Eladó családi ház
Eladó családi ház

Besnyő

105.999 M Ft
6 szoba
189 m2
Eladó családi ház
Eladó családi ház

Pécsvárad

140 M Ft
2 szoba
79 m2
Eladó családi ház
Eladó családi ház

Tápiógyörgye

33 M Ft
3 + 2 szoba
140 m2
Eladó családi ház
Eladó családi ház

Gersekarát, Dózsa György utca

6 M Ft
3 szoba
58 m2
Eladó családi ház
Eladó családi ház

Magyarszék

48.5 M Ft
3 + 1 szoba
86 m2
Eladó családi ház
Eladó családi ház

Jákfa

14.4 M Ft
3 szoba
70 m2
Eladó családi ház
Eladó családi ház

Ónod, Barátság 9

31.999 M Ft
3 szoba
150 m2