Astora Olive Club House

Eladó családi ház
Kiskunlacháza

+ 11 kép 1/14
75 000 000 Ft75 M Ft 576 923 Ft/m2
4 szoba
130 m2
építés éve:1970

Részletes adatok

Állapot: Átlagos
Telekméret: 993 m2
Fűtés: Gázkazán
Energetikai besorolás: Nem adta meg a hirdető

Az OTP Bank lakáshitel ajánlataFizetett hirdetés

+36 30 324
Major Katalin Tünde
Szigetszentmiklós OTP Ip

Érdekel az OTP Bank kedvezményes lakáshitel ajánlata? *

* A kérdésre „Igen” válasz bejelölése esetén, az „Üzenet küldése” gombra kattintva kijelentem, hogy az OTP Bank Nyrt. Adatkezelési tájékoztatójának tartalmát megismertem és tudomásul vettem.

Eladó családi ház leírása

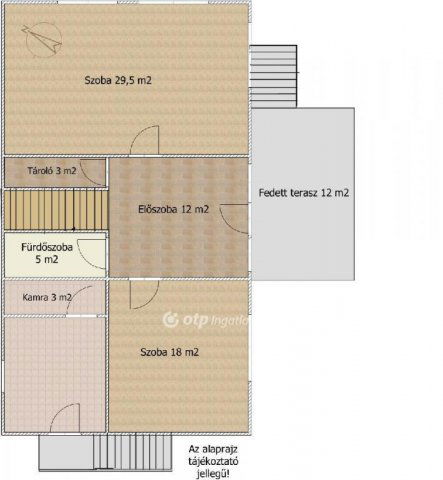
Pest megyében Kiskunlacházán eladó egy 130 m2-es, 3 szintes, 4 szobás családi ház, 1000 m2-es telken. Az ingatlan földszinti részén található 2 szoba, konyha, fürdőszoba, tároló és egy nagy előszoba. Innen jutunk ki a 12 m2-es fedett teraszra. Az emeleten kapott helyet kettő szoba valamint egy nagy előtér is. A pincében (84 m2) lett kiépítve a gépészet a gáz-cirkóval, valamint a garázs. Az ingatlan szerkezete nagyon jó állapotban van. A szép nagy telken több gyümölcsfa és több külső tároló is található. Ezen a területen is több autó parkolására van lehetőség. A környék infrastruktúrája kiváló! Minden ami fontos pár perc alatt elérhető, beleértve a tömegközlekedést is.

Amennyiben felkeltettem érdeklődését, hívjon bizalommal a hét bármely napján!

Az OTP Bankcsoport teljeskörű ügyintézéssel áll az eladók és a vevők rendelkezésére! A kínálatunkból választott ingatlan finanszírozásához kedvezményes hitelkonstrukciókat kínálunk. Az adásvételi szerződés megkötéséhez igény szerint megbízható ügyvédi közreműködést biztosítunk és segítséget nyújtunk az adásvételhez kapcsolódó ügyek intézéséhez.

Referenciaszám: M316673

Hirdetés feltöltve: 2025. 11. 08. Utoljára módosítva: 2025. 11. 08.

4 szobás családi házak ára Kiskunlacházán

Ebből az összehasonlításból megtudhatod, hogyan viszonyul a lakás ára a környékbeli családi házak átlagos árához. Ez nem azt jelenti, hogy ennyivel olcsóbb vagy drágább, mint amennyit a lakás ér, hanem hogy ennyivel tér el a környékbeli átlagtól.

Ennek a m² ára
Kiskunlacháza m² ár
577 e Ft
793 e Ft 27%
Ennek az ára
Kiskunlacháza átlagár
75 M Ft m Ft
85.6 m Ft 12%

Az ingatlan elhelyezkedése

Cím: Kiskunlacháza

Eladó családi házak a környékről

Eladó családi ház
Eladó családi ház

Tápiószele

37.9 M Ft
4 szoba
141 m2
Eladó családi ház
Eladó családi ház

Kiskunlacháza

130 M Ft
4 szoba
135 m2
Eladó családi ház
Eladó családi ház

Remeteszőlős

399.9 M Ft
5 + 2 szoba
260 m2
Eladó családi ház
Eladó családi ház

Kiskunlacháza

69.99 M Ft
3 szoba
90 m2
Eladó családi ház
Eladó családi ház

Kiskunlacháza

89.1 M Ft
5 szoba
99 m2
Eladó családi ház
Eladó családi ház

Budakeszi, Budakeszi kertváros

140 M Ft
2 szoba
55 m2
Eladó családi ház
Eladó családi ház

Kiskunlacháza

74.5 M Ft
2 szoba
90 m2
Eladó családi ház
Eladó családi ház

Tahitótfalu

188 M Ft
7 szoba
280 m2
Eladó családi ház
Eladó családi ház

Kiskunlacháza

72.5 M Ft
4 szoba
91 m2
Eladó családi ház
Eladó családi ház

Tápiószentmárton

7.9 M Ft
2 + 1 szoba
86 m2
Eladó családi ház
Eladó családi ház

Kiskunlacháza

450 M Ft
5 + 1 szoba
405 m2
Eladó családi ház
Eladó családi ház

Pécel, Reményik Sándor utca

296 M Ft
6 szoba
396 m2
Eladó családi ház
Eladó családi ház

Budakeszi

130 M Ft
5 szoba
30 m2
Eladó családi ház
Eladó családi ház

Budaörs, Városközpont utca

119.5 M Ft
5 + 1 szoba
140 m2
Eladó családi ház
Eladó családi ház

Kerepes

81.99 M Ft
5 szoba
102 m2
Eladó családi ház
Eladó családi ház

Kiskunlacháza

45.9 M Ft
3 + 1 szoba
156 m2
Eladó családi ház
Eladó családi ház

Kiskunlacháza

67 M Ft
4 szoba
106 m2
Eladó családi ház
Eladó családi ház

Kiskunlacháza

114.99 M Ft
5 szoba
359 m2
Eladó családi ház
Eladó családi ház

Kiskunlacháza

450 M Ft
5 + 1 szoba
405 m2
Eladó családi ház
Eladó családi ház

Dunavarsány

69.9 M Ft
3 + 1 szoba
140 m2
Eladó családi ház
Eladó családi ház

Budakeszi, Budakeszi kertváros

229 M Ft
10 szoba
450 m2
Eladó családi ház
Eladó családi ház

Tápiószele

32.9 M Ft
4 szoba
200 m2
Eladó családi ház
Eladó családi ház

Kiskunlacháza

65 M Ft
3 szoba
207 m2
Eladó családi ház
Eladó családi ház

Dunavarsány

46.9 M Ft
3 + 2 szoba
130 m2

Falusi CSOK ingatlanok

Eladó családi ház
Eladó családi ház

Orgovány, Mátyás király utca

16 M Ft
2 szoba
60 m2
Eladó családi ház
Eladó családi ház

Rábaszentmihály

65 M Ft
3 szoba
156 m2
Eladó családi ház
Eladó családi ház

Nemesszentandrás

75 M Ft
4 szoba
164 m2
Eladó családi ház
Eladó családi ház

Balatonkenese

98 M Ft
5 szoba
138 m2
Eladó ikerház
Eladó ikerház

Seregélyes

39.9 M Ft
4 szoba
150 m2
Eladó családi ház
Eladó családi ház

Vág

15 M Ft
2 szoba
85 m2
Eladó családi ház
Eladó családi ház

Ágasegyháza

29.7 M Ft
3 szoba
75 m2
Eladó családi ház
Eladó családi ház

Bugac

69.9 M Ft
4 szoba
130 m2