BAM Living

Eladó családi ház
Kiskunlacháza

+ 11 kép 1/14
75 000 000 Ft75 M Ft 576 923 Ft/m2
4 szoba
130 m2
építés éve:1970

Részletes adatok

Állapot: Átlagos
Telekméret: 993 m2
Fűtés: Gázkazán
Energetikai besorolás: Nem adta meg a hirdető

Az OTP Bank lakáshitel ajánlataFizetett hirdetés

+36 20 461
Dsugán Béla
Terc Kft.

Érdekel az OTP Bank kedvezményes lakáshitel ajánlata? *

* A kérdésre „Igen” válasz bejelölése esetén, az „Üzenet küldése” gombra kattintva kijelentem, hogy az OTP Bank Nyrt. Adatkezelési tájékoztatójának tartalmát megismertem és tudomásul vettem.

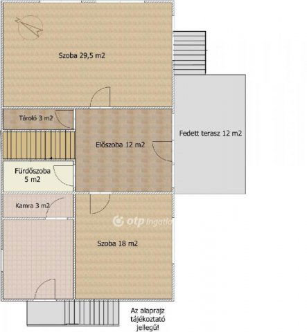
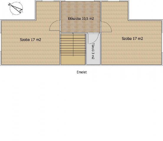
Eladó családi ház leírása

Figyelem!!! Kiskunlacházán 625.000,-Ft-s négyzetméter áron eladó egy családi ház.!!! Pest megyében, Kiskunlacháza centrumában eladó egy 1000m2-s telken lévő , 130 m2-s 3 szintes , 4 szobás, összkomfortos családi ház. Az ingatlan földszinti részén található 2 szoba, konyha, fürdőszoba, konyha, tároló és egy nagy előszoba. Innen jutunk ki a 12 m2-s fedett teraszra . Az emeleten kapott helyet kettő szoba valamint egy nagy előtér is. A pincében ( 84 m2 ) lett kiépítve a gépészet a gáz-cirkóval valamint a garázs rész is. Az ingatlan szerkezete nagyon jó állapotban van de belső terek kicsit retró kinézetűek. A szép nagy telken több gyümölcsfa és több külső tároló is található. Ezen a területen is több autó parkolására is van lehetőség. A környék infrastruktúrája kiváló! Minden ami fontos pár perc alatt elérhető bele értve a tömegközlekedést is. Az OTP Ingatlanpont teljes körű ügyintézéssel áll az eladók és a vevők rendelkezésére! A kínálatunkból választott ingatlan finanszírozásához kedvezményes hitel- konstrukciókat kínálunk. Az adásvételi szerződés megkötéséhez igény szerint megbízható ügyvédi közreműködést biztosítunk, és segítséget nyújtunk az adásvételhez kapcsolódó ügyek intézéséhez. Kérdés , mutatás esetén hívjon bizalommal! Ref. szám:M316673

Referencia szám: M316673

Hirdetés feltöltve: 2025. 11. 06. Utoljára módosítva: 2025. 11. 06.

4 szobás családi házak ára Kiskunlacházán

Ebből az összehasonlításból megtudhatod, hogyan viszonyul a lakás ára a környékbeli családi házak átlagos árához. Ez nem azt jelenti, hogy ennyivel olcsóbb vagy drágább, mint amennyit a lakás ér, hanem hogy ennyivel tér el a környékbeli átlagtól.

Ennek a m² ára
Kiskunlacháza m² ár
577 e Ft
793 e Ft 27%
Ennek az ára
Kiskunlacháza átlagár
75 M Ft m Ft
85.6 m Ft 12%

Az ingatlan elhelyezkedése

Cím: Kiskunlacháza

Eladó családi házak a környékről

Eladó családi ház
Eladó családi ház

Szigetszentmiklós, Tököli út közeli utca

120 M Ft
7 szoba
525 m2
Eladó családi ház
Eladó családi ház

Kiskunlacháza

130 M Ft
4 szoba
135 m2
Eladó családi ház
Eladó családi ház

Budakeszi, Makkosmária

100 M Ft
1 szoba
10 m2
Eladó családi ház
Eladó családi ház

Kiskunlacháza

450 M Ft
6 szoba
405 m2
Eladó családi ház
Eladó családi ház

Kiskunlacháza

32.5 M Ft
3 szoba
80 m2
Eladó családi ház
Eladó családi ház

Pécel, Reményik Sándor utca

296 M Ft
6 szoba
396 m2
Eladó családi ház
Eladó családi ház

Sződ, Rátóti utca

149.99 M Ft
11 szoba
270 m2
Eladó családi ház
Eladó családi ház

Kiskunlacháza

450 M Ft
4 + 2 szoba
405 m2
Eladó családi ház
Eladó családi ház

Budaörs, Bányász utca

385 M Ft
6 szoba
300 m2
Eladó családi ház
Eladó családi ház

Budakeszi

130 M Ft
5 szoba
30 m2
Eladó családi ház
Eladó családi ház

Kiskunlacháza

130 M Ft
4 szoba
135 m2
Eladó családi ház
Eladó családi ház

Kiskunlacháza

67 M Ft
4 szoba
106 m2
Eladó családi ház
Eladó családi ház

Kiskunlacháza

74.5 M Ft
2 szoba
90 m2
Eladó családi ház
Eladó családi ház

Remeteszőlős

399.9 M Ft
5 + 2 szoba
260 m2
Eladó családi ház
Eladó családi ház

Kiskunlacháza

89.1 M Ft
5 szoba
99 m2
Eladó családi ház
Eladó családi ház

Érd

164.9 M Ft
5 szoba
192 m2
Eladó családi ház
Eladó családi ház

Dunavarsány

69.9 M Ft
3 + 1 szoba
140 m2
Eladó családi ház
Eladó családi ház

Dunavarsány

46.9 M Ft
3 + 2 szoba
130 m2
Eladó családi ház
Eladó családi ház

Tahitótfalu

188 M Ft
7 szoba
280 m2
Eladó családi ház
Eladó családi ház

Kerepes

81.99 M Ft
5 szoba
102 m2
Eladó családi ház
Eladó családi ház

Kiskunlacháza

130 M Ft
4 szoba
135 m2
Eladó családi ház
Eladó családi ház

Dunakeszi

250 M Ft
4 szoba
180 m2
Eladó családi ház
Eladó családi ház

Budakeszi, Budakeszi kertváros

229 M Ft
10 szoba
450 m2
Eladó családi ház
Eladó családi ház

Tápiógyörgye

19.9 M Ft
3 szoba
65 m2

Falusi CSOK ingatlanok

Eladó családi ház
Eladó családi ház

Vácszentlászló

46 M Ft
41 + 1 szoba
100 m2
Eladó családi ház
Eladó családi ház

Vág

15 M Ft
2 szoba
85 m2
Eladó családi ház
Eladó családi ház

Csengőd, Tompa Mihály utca

34 M Ft
2 szoba
81 m2
Eladó családi ház
Eladó családi ház

Bakonycsernye

39 M Ft
3 szoba
350 m2
Eladó családi ház
Eladó családi ház

Nagybörzsöny

39.9 M Ft
2 + 1 szoba
74 m2
Eladó családi ház
Eladó családi ház

Iváncsa

73.9 M Ft
1 + 3 szoba
97 m2
Eladó családi ház
Eladó családi ház

Mályi

89.9 M Ft
4 szoba
100 m2
Eladó családi ház
Eladó családi ház

Bozsok

290 M Ft
6 szoba
370 m2