City Pearl

Eladó családi ház
Keszthely

+ 17 kép 1/20
79 900 000 Ft79.9 M Ft 859 140 Ft/m2
2 + 3 szoba
93 m2

Részletes adatok

Állapot: Felújított
Telekméret: 542 m2
Fűtés: Gázkazán
Energetikai besorolás: Nem adta meg a hirdető

Az OTP Bank lakáshitel ajánlataFizetett hirdetés

+36 70 467
Balaskóné Goldfinger Lívia
Openhouse Zalaegerszeg

Érdekel az OTP Bank kedvezményes lakáshitel ajánlata? *

* A kérdésre „Igen” válasz bejelölése esetén, az „Üzenet küldése” gombra kattintva kijelentem, hogy az OTP Bank Nyrt. Adatkezelési tájékoztatójának tartalmát megismertem és tudomásul vettem.

Eladó családi ház leírása

Az Openhouse Zalaegerszeg Ingatlaniroda kínálatában eladó a #178309 hivatkozási számú keszthelyi családi ház.

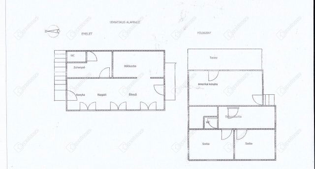
KÉTSZINTES CSALÁDI HÁZ ELADÓ KESZTHELY–KERTVÁROS RÉSZÉN

Irányár: 79,9 millió Ft

Keszthely kedvelt, csendes kertvárosi részén eladó egy 93 m²-es, tégla építésű családi ház, amely két külön bejáratának köszönhetően akár több generáció együttélésére is ideális választás lehet!

A ház 3 hálószobával és 2 nappalival rendelkezik, így bőven jut hely a család minden tagjának.
A földszinti és emeleti szint külön lakrészként is használható – praktikus megoldás, ha összeköltöznének, de mindenki szeretne egy kis saját teret is

Főbb jellemzők:

Tégla építés, cseréptető

2018-tól folyamatosan megújított műszaki állapot

Gáz cirkó fűtés, + a földszinten fa tüzelésű kandalló

3 rétegű nyílászárók, redőnnyel és szúnyoghálóval ellátva

Az épület 3 oldala hőszigetelt, a negyedik oldalt pedig az új tulajdonos alakíthatja kedvére

Teljes közművesítés

A házhoz tágas terasz és erkély, valamint garázs, műhely, tároló és mosóhelyiség is tartozik – minden adott a kényelmes mindennapokhoz vagy akár hobbi tevékenységekhez.

Az udvarban gyümölcsfák is várják új gazdájukat – a nyári pihenések és a házi lekvárkészítés helyszíne már adott

Ez a ház tökéletes választás, ha egy jó állapotú, tágas, több lehetőséget kínáló otthont keres. Keszthely nyugodt részén, de a Balaton közelsége is fontosaz ÖN számára.

Ne hagyja ki, nézze meg személyesen, és szeressen bele ebbe a hangulatos otthonba!

Segítek az álmai megvalósításába – hívjon, és nézzük meg személyesen!

Balaskóné Goldfinger Lívia
+36 30 533 5234
livia.balasko@oh.hu



Ha felkeltette érdeklődését ez az eladó keszthelyi családi ház, vagy bármely más családi ház és bővebb információt szeretne, keressen bizalommal.Hivatkozási szám: #178309

Az Openhouse Zalaegerszeg Ingatlaniroda tagjaként várom Önt az országos hálózatunk teljes kínálatával.

A családi ház vásárláshoz hitelt igényelne? Ingyenes hitelközvetítéssel segít Önnek bankfüggetlen hitelszakértőnk.

További szolgáltatásainkkal (pl. értékbecslés, energetikai tanúsítvány, jogi háttér) is segítjük Önt a vásárlásban.
Az otthon érték. Az ingatlan üzlet.

Hirdetés feltöltve: 2025. 11. 19. Utoljára módosítva: 2025. 12. 14.

5 szobás családi házak ára Keszthelyen

Ebből az összehasonlításból megtudhatod, hogyan viszonyul a lakás ára a környékbeli családi házak átlagos árához. Ez nem azt jelenti, hogy ennyivel olcsóbb vagy drágább, mint amennyit a lakás ér, hanem hogy ennyivel tér el a környékbeli átlagtól.

Ennek a m² ára
Keszthely m² ár
859 e Ft
622 e Ft -38%
Ennek az ára
Keszthely átlagár
79.9 M Ft m Ft
156.8 m Ft 49%

Az ingatlan elhelyezkedése

Cím: Keszthely

Eladó családi házak a környékről

Eladó családi ház
Eladó családi ház

Keszthely

126.88 M Ft
4 szoba
105 m2
Eladó családi ház
Eladó családi ház

Keszthely

129 M Ft
4 szoba
360 m2
Eladó családi ház
Eladó családi ház

Keszthely

119.5 M Ft
4 szoba
200 m2
Eladó családi ház
Eladó családi ház

Keszthely

139.9 M Ft
6 + 1 szoba
277 m2
Eladó családi ház
Eladó családi ház

Kehidakustány

124.443 M Ft
5 + 2 szoba
192 m2
Eladó családi ház
Eladó családi ház

Keszthely

59.99 M Ft
2 + 1 szoba
110 m2
Eladó családi ház
Eladó családi ház

Keszthely

54.9 M Ft
2 + 1 szoba
90 m2
Eladó családi ház
Eladó családi ház

Pacsa

54.9 M Ft
5 + 2 szoba
200 m2
Eladó családi ház
Eladó családi ház

Vindornyafok

38.9 M Ft
3 szoba
120 m2
Eladó családi ház
Eladó családi ház

Hévíz

225 M Ft
11 + 1 szoba
317 m2
Eladó családi ház
Eladó családi ház

Keszthely

145 M Ft
5 szoba
275 m2
Eladó családi ház
Eladó családi ház

Alsópáhok

64.9 M Ft
3 szoba
110 m2
Eladó családi ház
Eladó családi ház

Keszthely

126.88 M Ft
3 szoba
104 m2
Eladó családi ház
Eladó családi ház

Keszthely

290 M Ft
5 szoba
204 m2
Eladó családi ház
Eladó családi ház

Szentliszló

29.9 M Ft
2 + 2 szoba
170 m2
Eladó családi ház
Eladó családi ház

Keszthely

126.88 M Ft
3 szoba
104 m2
Eladó családi ház
Eladó családi ház

Keszthely

146 M Ft
6 szoba
224 m2
Eladó családi ház
Eladó családi ház

Zalaszántó

19.9 M Ft
2 szoba
66 m2
Eladó családi ház
Eladó családi ház

Keszthely

126.88 M Ft
4 szoba
105 m2
Eladó családi ház
Eladó családi ház

Keszthely

30.2 M Ft
1 szoba
52 m2
Eladó családi ház
Eladó családi ház

Hévíz

120 M Ft
5 szoba
215 m2
Eladó családi ház
Eladó családi ház

Keszthely

146 M Ft
6 szoba
224 m2
Eladó családi ház
Eladó családi ház

Zalaegerszeg

200 M Ft
7 szoba
355 m2
Eladó családi ház
Eladó családi ház

Letenye

24.9 M Ft
2 szoba
70 m2

Falusi CSOK ingatlanok

Eladó családi ház
Eladó családi ház

Jászalsószentgyörgy

39.9 M Ft
2 szoba
74 m2
Eladó családi ház
Eladó családi ház

Ősi

64.9 M Ft
4 szoba
181 m2
Eladó családi ház
Eladó családi ház

Devecser

62.49 M Ft
5 szoba
180 m2
Eladó családi ház
Eladó családi ház

Mikebuda

44.9 M Ft
3 szoba
93 m2
Eladó családi ház
Eladó családi ház

Balatonfenyves

430 M Ft
4 szoba
274 m2
Eladó családi ház
Eladó családi ház

Enese

82.9 M Ft
4 szoba
90 m2
Eladó családi ház
Eladó családi ház

Vácszentlászló

45 M Ft
4 szoba
100 m2
Eladó téglalakás
Eladó téglalakás

Balatonszemes

119.9 M Ft
2 szoba
81 m2