BAM Living

Eladó családi ház
Kecskemét

+ 5 kép 1/8
39 900 000 Ft39.9 M Ft 997 500 Ft/m2
2 szoba
40 m²
építés éve:1975

Részletes adatok

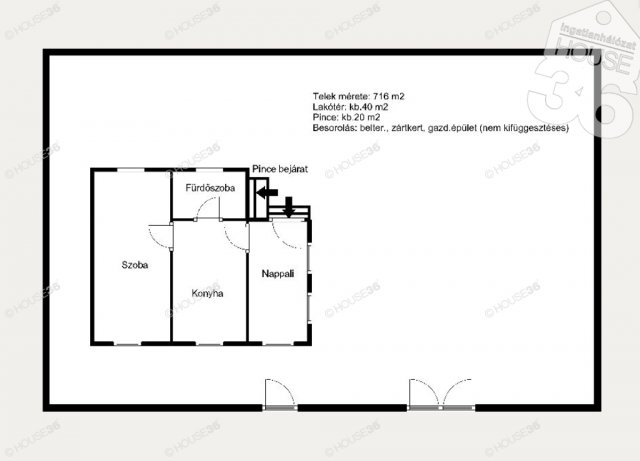
Telekméret: 716 m2
Fűtés: Egyéb
Energetikai besorolás: D

Az OTP Bank lakáshitel ajánlataFizetett hirdetés

+36 70 798
Berente Judit
HOUSE36 Ingatlanbázis Kft.

Érdekel az OTP Bank kedvezményes lakáshitel ajánlata? *

* A kérdésre „Igen” válasz bejelölése esetén, az „Üzenet küldése” gombra kattintva kijelentem, hogy az OTP Bank Nyrt. Adatkezelési tájékoztatójának tartalmát megismertem és tudomásul vettem.

Eladó családi ház leírása

Kecskemét kertvárosi részén, a Halasi úti hobbysoron eladóvá vált egy teljes körűen felújított kis házikó.

Jellemzői:
- Telek mérete: 716 m2
- Összközműves
- Besorolása: belterület, zártkert, gazdasági épület
- Lakótér: br.40 m2 : nappali, konyha, fürdőszoba, hálószoba
- Pince: 20 m2
- Teljeskörűen felújított (2020/2021: cserélt nyílászárók, burkolatok, konyhabútor, fürdőszoba, vezetékek, fűtéskorszerűsítés)
- Szigetelés, új külső színezés a házon (2023)

Figyelem az adatlap megbízónktól kapott adatok alapján készült, pontosságáért felelősséget nem tudunk vállalni!
Szolgáltatásaink Kereső ügyfeleink számára INGYENESEK!
Amennyiben eladó-kiadó ingatlana van vagy finanszírozási megoldást keres , hívjon, megtaláljuk a legjobb lehetőséget Önnek!
A HOUSE36 kínálatában található összes ingatlannal kapcsolatban tudok felvilágosítást nyújtani!
Hívjon bizalommal!
Az iroda legfrissebb, aktuális kínálatát a HOUSE36 saját weboldalán találja!

Hirdetés feltöltve: 2026. 04. 17. Utoljára módosítva: 2026. 05. 06.

2 szobás családi házak ára Kecskeméten

Ebből az összehasonlításból megtudhatod, hogyan viszonyul a lakás ára a környékbeli családi házak átlagos árához. Ez nem azt jelenti, hogy ennyivel olcsóbb vagy drágább, mint amennyit a lakás ér, hanem hogy ennyivel tér el a környékbeli átlagtól.

Ennek a m² ára
Kecskemét m² ár
998 e Ft
874 e Ft -14%
Ennek az ára
Kecskemét átlagár
39.9 M Ft m Ft
51.5 m Ft 23%

Az ingatlan elhelyezkedése

Cím: Kecskemét

Eladó családi házak a környékről

Kecskemét
Eladó családi ház

Kecskemét

135 M Ft
5 szoba
220 m²
Kiskunmajsa, 1
Eladó családi ház

Kiskunmajsa

60.9 M Ft
6 szoba
220 m²
Kecskemét
Eladó családi ház

Kecskemét

9.9 M Ft
2 szoba
30 m²
Kecskemét
Eladó családi ház

Kecskemét

93 M Ft
3 szoba
140 m²
Fülöpháza
Eladó családi ház

Fülöpháza

68 M Ft
6 szoba
250 m²
Kecskemét, Alsószéktó, Alsószéktó 138
Eladó családi ház

Kecskemét

58 M Ft
5 szoba
92 m²
Kunadacs
Eladó családi ház

Kunadacs

210 M Ft
14 szoba
920 m²
Kecskemét
Eladó családi ház

Kecskemét

135 M Ft
5 szoba
220 m²
Kecskemét, Alsószéktó, Alsószéktó 138
Eladó családi ház

Kecskemét

63 M Ft
5 szoba
91 m²
Bácsalmás
Eladó családi ház

Bácsalmás

25.5 M Ft
2 + 1 szoba
90 m²
Kiskunmajsa
Eladó családi ház

Kiskunmajsa

40 M Ft
5 szoba
95 m²
Kecskemét
Eladó családi ház

Kecskemét

24.9 M Ft
3 szoba
62 m²
Kecskemét
Eladó családi ház

Kecskemét

180 M Ft
8 szoba
689 m²
Kecskemét
Eladó családi ház

Kecskemét

42 M Ft
4 szoba
180 m²
Kecskemét
Eladó családi ház

Kecskemét

224.9 M Ft
5 szoba
330 m²
Kecskemét
Eladó családi ház

Kecskemét

480 M Ft
6 szoba
1150 m²
Kecskemét
Eladó családi ház

Kecskemét

93 M Ft
3 szoba
140 m²
Kecskemét
Eladó családi ház

Kecskemét

300 M Ft
19 szoba
1100 m²
Kecskemét
Eladó családi ház

Kecskemét

39.9 M Ft
2 szoba
110 m²
Kecskemét
Eladó családi ház

Kecskemét

6.9 M Ft
1 szoba
30 m²
Kecskemét
Eladó családi ház

Kecskemét

39.9 M Ft
2 szoba
110 m²
Dunapataj
Eladó családi ház

Dunapataj

15 M Ft
5 szoba
150 m²
Kecskemét, Alsószéktó, Alsószéktó 138
Eladó családi ház

Kecskemét

63 M Ft
5 szoba
91 m²
Kecskemét
Eladó családi ház

Kecskemét

259 M Ft
3 + 7 szoba
266 m²

Falusi CSOK ingatlanok

Zalalövő, Dózsa György utca
Eladó családi ház

Zalalövő

11.99 M Ft
1 szoba
35 m²
Érpatak
Eladó családi ház

Érpatak

35 M Ft
4 szoba
160 m²
Galgahévíz
Eladó családi ház

Galgahévíz

43 M Ft
3 szoba
115 m²
Jánosháza
Eladó családi ház

Jánosháza

32 M Ft
2 szoba
116 m²
Hegyeshalom, Margaréta utca 12
Eladó téglalakás

Hegyeshalom

32.89 M Ft
1 szoba
27 m²
Bag
Eladó családi ház

Bag

110 M Ft
5 szoba
320 m²
Táborfalva, Tarcsay út
Eladó téglalakás

Táborfalva

33 M Ft
2 + 1 szoba
68 m²
Nagykarácsony
Eladó családi ház

Nagykarácsony

34.9 M Ft
3 szoba
112 m²