Pesti Házak

Eladó családi ház
Kecskemét

+ 5 kép 1/8
39 900 000 Ft39.9 M Ft 997 500 Ft/m2
2 szoba
40 m2
építés éve:1975

Részletes adatok

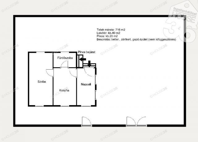
Telekméret: 716 m2
Fűtés: Egyéb
Energetikai besorolás: Nem adta meg a hirdető

Az OTP Bank lakáshitel ajánlataFizetett hirdetés

+36 70 418
Berente Imre
HOUSE36 Ingatlanbázis Kft.

Érdekel az OTP Bank kedvezményes lakáshitel ajánlata? *

* A kérdésre „Igen” válasz bejelölése esetén, az „Üzenet küldése” gombra kattintva kijelentem, hogy az OTP Bank Nyrt. Adatkezelési tájékoztatójának tartalmát megismertem és tudomásul vettem.

Eladó családi ház leírása

Kecskemét kertvárosi részén, a Halasi úti hobbysoron eladóvá vált egy teljes körűen felújított kis házikó.

Jellemzői:
- Telek mérete: 716 m2
- Összközműves
- Besorolása: belterület, zártkert, gazdasági épület
- Lakótér: br.40 m2 : nappali, konyha, fürdőszoba, hálószoba
- Pince: 20 m2
- Teljeskörűen felújított (2020/2021: cserélt nyílászárók, burkolatok, konyhabútor, fürdőszoba, vezetékek, fűtéskorszerűsítés)
- Szigetelés, új külső színezés a házon (2023)

Figyelem az adatlap megbízónktól kapott adatok alapján készült, pontosságáért felelősséget nem tudunk vállalni!
Szolgáltatásaink Kereső ügyfeleink számára INGYENESEK!
Amennyiben eladó-kiadó ingatlana van vagy finanszírozási megoldást keres , hívjon, megtaláljuk a legjobb lehetőséget Önnek!
A HOUSE36 kínálatában található összes ingatlannal kapcsolatban tudok felvilágosítást nyújtani!
Hívjon bizalommal!
Az iroda legfrissebb, aktuális kínálatát a HOUSE36 saját weboldalán találj

Hirdetés feltöltve: 2025. 11. 09. Utoljára módosítva: 2026. 01. 24.

2 szobás családi házak ára Kecskeméten

Ebből az összehasonlításból megtudhatod, hogyan viszonyul a lakás ára a környékbeli családi házak átlagos árához. Ez nem azt jelenti, hogy ennyivel olcsóbb vagy drágább, mint amennyit a lakás ér, hanem hogy ennyivel tér el a környékbeli átlagtól.

Ennek a m² ára
Kecskemét m² ár
998 e Ft
5 e Ft -20,909%
Ennek az ára
Kecskemét átlagár
39.9 M Ft m Ft
0.3 m Ft -13,001%

Az ingatlan elhelyezkedése

Cím: Kecskemét

Eladó családi házak a környékről

Eladó családi ház
Eladó családi ház

Kiskunmajsa, Kiskunmajsa - Birtok

91.8 M Ft
5 szoba
170 m2
Eladó családi ház
Eladó családi ház

Kecskemét, Alsószéktó, Alsószéktó 138

65 M Ft
5 szoba
98 m2
Eladó családi ház
Eladó családi ház

Kecskemét

185 M Ft
3 szoba
140 m2
Eladó családi ház
Eladó családi ház

Kecskemét

119.8 M Ft
5 szoba
138 m2
Eladó családi ház
Eladó családi ház

Kecskemét

24.9 M Ft
3 szoba
62 m2
Eladó családi ház
Eladó családi ház

Bugac

9.8 M Ft
4 szoba
67 m2
Eladó családi ház
Eladó családi ház

Kecskemét

199 M Ft
5 szoba
350 m2
Eladó családi ház
Eladó családi ház

Fajsz

12 M Ft
4 szoba
129 m2
Eladó családi ház
Eladó családi ház

Kecskemét

119.8 M Ft
5 szoba
138 m2
Eladó családi ház
Eladó családi ház

Kecskemét

199 M Ft
5 szoba
350 m2
Eladó családi ház
Eladó családi ház

Kecskemét

39.9 M Ft
2 szoba
110 m2
Eladó családi ház
Eladó családi ház

Kecskemét

120 M Ft
6 szoba
215 m2
Eladó családi ház
Eladó családi ház

Kecskemét, Alsószéktó, Alsószéktó 138

65 M Ft
5 szoba
98 m2
Eladó családi ház
Eladó családi ház

Kecskemét

300 M Ft
19 szoba
1100 m2
Eladó családi ház
Eladó családi ház

Kecskemét, Alsószéktó, Alsószéktó 138

58 M Ft
5 szoba
92 m2
Eladó családi ház
Eladó családi ház

Kecskemét

175.2 M Ft
5 szoba
218 m2
Eladó családi ház
Eladó családi ház

Dunavecse

88.49 M Ft
8 szoba
378 m2
Eladó családi ház
Eladó családi ház

Kecskemét

93 M Ft
3 szoba
140 m2
Eladó családi ház
Eladó családi ház

Kecskemét

259 M Ft
3 + 7 szoba
266 m2
Eladó családi ház
Eladó családi ház

Kecskemét, Alsószéktó, Alsószéktó 138

55 M Ft
5 szoba
91 m2
Eladó családi ház
Eladó családi ház

Kecskemét

480 M Ft
6 szoba
1150 m2
Eladó családi ház
Eladó családi ház

Kecskemét

135 M Ft
5 szoba
220 m2
Eladó családi ház
Eladó családi ház

Tiszakécske, Kolozsvári utca

17.9 M Ft
3 szoba
95 m2
Eladó családi ház
Eladó családi ház

Kecskemét, Alsószéktó, Alsószéktó 138

55 M Ft
5 szoba
91 m2

Falusi CSOK ingatlanok

Eladó családi ház
Eladó családi ház

Háromfa, Kossuth

22.4 M Ft
139 m2
Eladó családi ház
Eladó családi ház

Elek

18 M Ft
4 szoba
180 m2
Eladó családi ház
Eladó családi ház

Szentbékkálla, Szentbékkálla

63.9 M Ft
2 szoba
143 m2
Eladó családi ház
Eladó családi ház

Gégény, Kossuth

15 M Ft
4 szoba
135 m2
Eladó családi ház
Eladó családi ház

Törtel

32.9 M Ft
3 szoba
68 m2
Eladó családi ház
Eladó családi ház

Darnózseli

79.9 M Ft
4 szoba
104 m2
Eladó családi ház
Eladó családi ház

Szőlősgyörök

85 M Ft
6 szoba
243 m2
Eladó családi ház
Eladó családi ház

Újszilvás

5.9 M Ft
1 szoba
31 m2