River Life

Eladó családi ház
Kecskemét

+ 2 kép 1/5
43 000 000 Ft43 M Ft 286 667 Ft/m2
4 szoba
150 m2
építés éve:1950

Részletes adatok

Állapot: Felújítandó
Telekméret: 520 m2
Fűtés: Gázkonvektor
Parkolás: Garázs
Közmű: Víz, Gáz, Villany, Csatorna
Energetikai besorolás: Nem adta meg a hirdető

Az OTP Bank lakáshitel ajánlataFizetett hirdetés

+36 20 914
ArtDome
ArtDome

Érdekel az OTP Bank kedvezményes lakáshitel ajánlata? *

* A kérdésre „Igen” válasz bejelölése esetén, az „Üzenet küldése” gombra kattintva kijelentem, hogy az OTP Bank Nyrt. Adatkezelési tájékoztatójának tartalmát megismertem és tudomásul vettem.

Eladó családi ház leírása

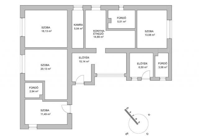
Kecskemét Belvárosának peremén FELÚJÍTANDÓ 3 lakrészből álló HÁZ ELADÓ!

Eladásra kínálunk egy 150 m²-es családi házat, amely egy 520 m²-es telken helyezkedik el. Az ingatlan számos szobával rendelkezik, így ideális lehet nagyobb családoknak vagy akár 3 APARTMAN KIALAKÍTÁSÁRA IS.

A ház állapota felújítandó, ami remek lehetőséget nyújt új tulajdonosának, hogy saját igényei szerint alakítsa át. Az épülethez tartozik egy garázs, valamint a telek mérete miatt további bővítési vagy kertészkedési lehetőségek is adottak.

Főbb jellemzők:

- 150 m² hasznos alapterület

- 520 m² telek

- gáz - fűtés, akár külön leválasztható almérőkkel

- 3 külön berjáratú lakrész vizesblokkal felszerelve

- Garázs és gazdasági épületek

- FIX ÁR

- Távolsági busz-, és vonat állomás gyalog is könnyen megközelíthető (Budapest 50-60 perc utazási időre)

Felújítandó állapot – nagy átalakítási potenciál.

Ez az ingatlan remek választás lehet befektetőknek, építkezőknek vagy családoknak, akik saját otthonukat szeretnék kialakítani.

Hirdetés feltöltve: 2025. 09. 17. Utoljára módosítva: 2025. 11. 25.

4 szobás családi házak ára Kecskeméten

Ebből az összehasonlításból megtudhatod, hogyan viszonyul a lakás ára a környékbeli családi házak átlagos árához. Ez nem azt jelenti, hogy ennyivel olcsóbb vagy drágább, mint amennyit a lakás ér, hanem hogy ennyivel tér el a környékbeli átlagtól.

Ennek a m² ára
Kecskemét m² ár
287 e Ft
812 e Ft 65%
Ennek az ára
Kecskemét átlagár
43 M Ft m Ft
107.8 m Ft 60%

Az ingatlan elhelyezkedése

Cím: Kecskemét

Eladó családi házak a környékről

Eladó családi ház
Eladó családi ház

Kecskemét

150 M Ft
4 szoba
145 m2
Eladó családi ház
Eladó családi ház

Kecskemét

199 M Ft
5 szoba
350 m2
Eladó családi ház
Eladó családi ház

Kecskemét

9.9 M Ft
2 szoba
30 m2
Eladó családi ház
Eladó családi ház

Kecskemét

129.8 M Ft
5 szoba
138 m2
Eladó családi ház
Eladó családi ház

Kecskemét

26 M Ft
3 szoba
110 m2
Eladó családi ház
Eladó családi ház

Kecskemét

129.8 M Ft
5 szoba
138 m2
Eladó családi ház
Eladó családi ház

Kecskemét, Alsószéktó, Alsószéktó 138

63 M Ft
5 szoba
91 m2
Eladó családi ház
Eladó családi ház

Kecskemét

259 M Ft
3 + 7 szoba
266 m2
Eladó családi ház
Eladó családi ház

Kecskemét

6.9 M Ft
1 szoba
30 m2
Eladó családi ház
Eladó családi ház

Kiskunmajsa, Kiskunmajsa - Birtok

91.8 M Ft
5 szoba
170 m2
Eladó családi ház
Eladó családi ház

Kecskemét, Alsószéktó, Alsószéktó 138

65 M Ft
5 szoba
98 m2
Eladó családi ház
Eladó családi ház

Kecskemét

93 M Ft
3 szoba
140 m2
Eladó családi ház
Eladó családi ház

Bugac

9.8 M Ft
4 szoba
67 m2
Eladó családi ház
Eladó családi ház

Kecskemét, Alsószéktó, Alsószéktó 138

65 M Ft
5 szoba
98 m2
Eladó családi ház
Eladó családi ház

Kecskemét

199 M Ft
5 szoba
350 m2
Eladó családi ház
Eladó családi ház

Kecskemét

120 M Ft
6 szoba
215 m2
Eladó családi ház
Eladó családi ház

Kecskemét

219 M Ft
5 szoba
190 m2
Eladó családi ház
Eladó családi ház

Kiskunhalas

47 M Ft
12428 m²
183 m2
Eladó családi ház
Eladó családi ház

Kecskemét, Alsószéktó, Alsószéktó 138

55 M Ft
5 szoba
91 m2
Eladó családi ház
Eladó családi ház

Bácsalmás

46.5 M Ft
5 szoba
232 m2
Eladó családi ház
Eladó családi ház

Kiskunmajsa, 1

60.9 M Ft
6 szoba
220 m2
Eladó családi ház
Eladó családi ház

Kecskemét

135 M Ft
5 szoba
220 m2
Eladó családi ház
Eladó családi ház

Kecskemét, Alsószéktó, Alsószéktó 138

55 M Ft
5 szoba
91 m2
Eladó családi ház
Eladó családi ház

Kecskemét

39.9 M Ft
2 szoba
110 m2

Falusi CSOK ingatlanok

Eladó családi ház
Eladó családi ház

Balatonszárszó

185 M Ft
6 szoba
260 m2
Eladó családi ház
Eladó családi ház

Gönyű

111.951 M Ft
4 szoba
105 m2
Eladó családi ház
Eladó családi ház

Ceglédbercel, Iskola utca

99.99 M Ft
5 szoba
128 m2
Eladó téglalakás
Eladó téglalakás

Balatonszemes

546 M Ft
4 szoba
136 m2
Eladó családi ház
Eladó családi ház

Bakonyszentkirály

99.99 M Ft
5 szoba
126 m2
Eladó családi ház
Eladó családi ház

Törtel

18 M Ft
6 szoba
188 m2
Eladó családi ház
Eladó családi ház

Vaskút

64 M Ft
5 szoba
180 m2
Eladó családi ház
Eladó családi ház

Örkény

36.5 M Ft
2 szoba
56 m2