BAM Living

Eladó családi ház
Kartal

+ 17 kép 1/20
84 900 000 Ft84.9 M Ft 312 132 Ft/m2
7 szoba
272 m²
építés éve:2000

Részletes adatok

Állapot: Átlagos
Telekméret: 827 m2
Fűtés: Gázkazán
Komfort: Összkomfortos
Energetikai besorolás: Nem adta meg a hirdető

Az OTP Bank lakáshitel ajánlataFizetett hirdetés

+36 20 220
Szabó Sándor
Budapest XIII. kerület Pannónia utca 25 - OTP Ingatlanpont Iroda

Érdekel az OTP Bank kedvezményes lakáshitel ajánlata? *

* A kérdésre „Igen” válasz bejelölése esetén, az „Üzenet küldése” gombra kattintva kijelentem, hogy az OTP Bank Nyrt. Adatkezelési tájékoztatójának tartalmát megismertem és tudomásul vettem.

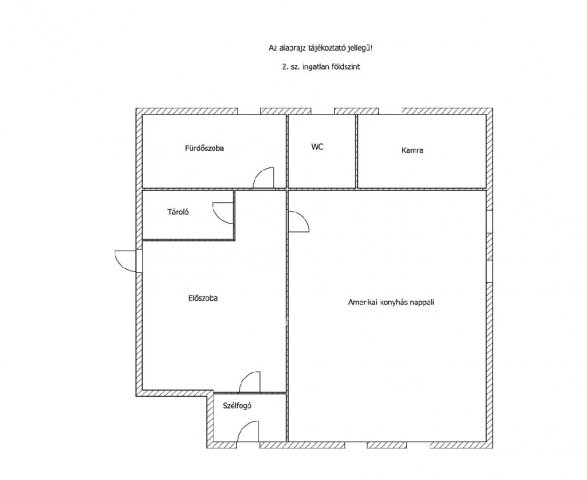
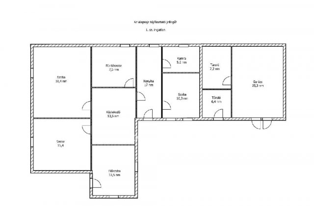
Eladó családi ház leírása

RITKA LEHETŐSÉG KARTAL KÖZPONTJÁBAN - KÉTGENERÁCIÓS CSALÁDI HÁZ, KIVÁLÓ ADOTTSÁGOKKAL!

Kartal egyik legkedveltebb részén, központi elhelyezkedéssel, mégis csendes mellékutcában kínálunk megvételre egy 827 nm-es telken elhelyezkedő, összesen 235 nm-es, két különálló házból álló ingatlant.
Az ilyen adottságú ingatlan ritkán kerül piacra - tökéletes választás összeköltözőknek, nagycsaládosoknak vagy akár befektetőknek, akik több lehetőséget látnak egy helyen.

Két ház - számtalan lehetőség:

1. ház (földszintes):
- 3 kényelmes méretű hálószoba
- konyha, fürdőszoba, kamra
- gyorsan költözhető, minimális ráfordítással

2. ház (emeletes, tágas kialakítás):
- világos, amerikai konyhás nappali szinteltolással
- praktikus elrendezés, több generáció számára is ideális
- 3 hálószoba + 2 fürdőszoba
- jó állapot, külső szigeteléssel ellátva

Ami igazán kiemeli:
- két külön lakóegység egy telken - külön élettér, mégis együtt
- megbízható műszaki állapot
- kiváló lokáció: nyugalom és központ közelsége egyszerre

Kartal egy dinamikusan fejlődő, élhető település Budapest vonzáskörzetében, ahol adott a nyugodt, zöld környezet és a gyors bejutás a fővárosba - ideális választás mindazoknak, akik nem szeretnének kompromisszumot kötni a kényelem és a nyugalom között.
Ne hagyja ki ezt a sokoldalú lehetőséget - ilyen adottságú ingatlan ritkán elérhető a piacon!

Az ingatlan energetikai besorolása "F"

Kérdés, megtekintés esetén keressen bizalommal, akár hétvégén is!

Hirdetés feltöltve: 2026. 04. 17. Utoljára módosítva: 2026. 05. 11.

Az ingatlan elhelyezkedése

Cím: Kartal

Eladó családi házak a környékről

Kartal
Eladó családi ház

Kartal

85 M Ft
5 szoba
180 m²
Kerepes
Eladó családi ház

Kerepes

81.99 M Ft
5 szoba
102 m²
Budakeszi, Makkosmária
Eladó családi ház

Budakeszi

100 M Ft
1 szoba
10 m²
Tápiószele
Eladó családi ház

Tápiószele

37.9 M Ft
4 szoba
141 m²
Kartal, Nincs utca
Eladó családi ház

Kartal

119.5 M Ft
4 szoba
121 m²
Kartal
Eladó családi ház

Kartal

79.9 M Ft
3 szoba
60 m²
Budaörs
Eladó családi ház

Budaörs

400 M Ft
12 szoba
583 m²
Tápiószele
Eladó családi ház

Tápiószele

11.9 M Ft
3 szoba
62 m²
Tápiószőlős
Eladó családi ház

Tápiószőlős

34.9 M Ft
5 szoba
210 m²
Kartal
Eladó családi ház

Kartal

59.99 M Ft
2 + 1 szoba
130 m²
Kerepes
Eladó családi ház

Kerepes

199 M Ft
6 szoba
360 m²
Zebegény
Eladó családi ház

Zebegény

69.9 M Ft
6 szoba
245 m²
Kartal
Eladó családi ház

Kartal

61.99 M Ft
2 + 1 szoba
105 m²
Kartal
Eladó családi ház

Kartal

289.9 M Ft
4 szoba
270 m²
Tápiószele
Eladó családi ház

Tápiószele

32.9 M Ft
4 szoba
200 m²
Budakeszi, Budakeszi kertváros
Eladó családi ház

Budakeszi

229 M Ft
10 szoba
450 m²
Kartal
Eladó családi ház

Kartal

120 M Ft
3 szoba
141 m²
Őrbottyán
Eladó családi ház

Őrbottyán

154 M Ft
4 + 1 szoba
115 m²
Kartal
Eladó családi ház

Kartal

59.9 M Ft
4 szoba
130 m²
Kartal
Eladó családi ház

Kartal

84.9 M Ft
7 szoba
272 m²
Kartal, Orgona utca
Eladó családi ház

Kartal

191 M Ft
8 szoba
226 m²
Budakeszi
Eladó családi ház

Budakeszi

130 M Ft
5 szoba
30 m²
Kartal
Eladó családi ház

Kartal

119.5 M Ft
4 szoba
121 m²
Érd
Eladó családi ház

Érd

164.9 M Ft
5 szoba
192 m²

Falusi CSOK ingatlanok

Balatonfenyves, Örvös utca
Eladó családi ház

Balatonfenyves

426 M Ft
4 szoba
330 m²
Kisapáti
Eladó családi ház

Kisapáti

53 M Ft
1 szoba
65 m²
Tápióság
Eladó családi ház

Tápióság

71.5 M Ft
4 szoba
72 m²
Zsámbok
Eladó családi ház

Zsámbok

35 M Ft
2 szoba
68 m²
Mesteri
Eladó családi ház

Mesteri

29.7 M Ft
4 szoba
140 m²
Porva
Eladó családi ház

Porva

74.6 M Ft
3 szoba
115 m²
Nyáregyháza
Eladó ikerház

Nyáregyháza

75.9 M Ft
4 szoba
0 m²
Kislippó
Eladó családi ház

Kislippó

17.99 M Ft
3 szoba
100 m²