Eladó családi ház
Kaba

+ 11 kép 1/14
7 500 000 Ft7.5 M Ft 75 758 Ft/m2
2 szoba
99 m2
építés éve:1955

Részletes adatok

Állapot: Felújítandó
Telekméret: 2345 m2
Fűtés: Egyéb
Energetikai besorolás: Nem adta meg a hirdető

Az OTP Bank lakáshitel ajánlataFizetett hirdetés

Hitelösszeg 10 millió Ft
Futamidő 20 év
Induló törlesztőrészlet 67 508 Ft
Törlesztőrészlet a 13. hónaptól 86 071 Ft
THM 8,7 %

A tájékoztatás nem teljes körű és nem minősül ajánlattételnek. Az OTP Évnyerő Lakáshitelei 1 éves türelmi idős kölcsönök, amellyel az első 12 hónapban alacsonyabb a havi törlesztőrészlet. A tőke törlesztését a 13. hónaptól kell megkezdeni.

    Részletes kalkuláció
    +36 70 637
    Nagy Enikő Judit
    referens

    Érdekel az OTP Bank kedvezményes lakáshitel ajánlata? *

    * A kérdésre „Igen” válasz bejelölése esetén, az „Üzenet küldése” gombra kattintva kijelentem, hogy az OTP Bank Nyrt. Adatkezelési tájékoztatójának tartalmát megismertem és tudomásul vettem.

    Eladó családi ház leírása

    Kaba, fürdő közeli teljes felújításra váró ház eladó!
    Az ingatlan szépen rendben tartott széles utcában található, a fürdő vonzáskörzetében. A ház hasznos alapterülete 99,7 m2, amely 2345 m2-es telken kapott helyet. Az udvaron gazdasági épületek is vannak, melyek az ingatlan tulajdoni lapján is szerepelnek. A telek nem szabályos alakú, azonban alkalmas lehet gazdálkodásra és egyéb gazdasági tevékenységre, illetve átalakítással és újabb épületek felépítésével szállásadásra is.
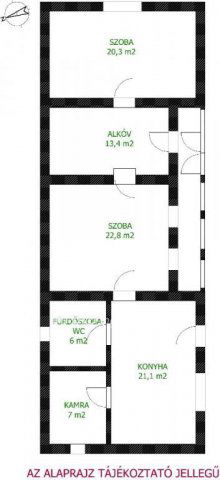
    Felosztását tekintve a következőkből áll:
    - szoba 20,3 m2,
    - alkóv 13,4 m2,
    - közlekedő 9,1 m2,
    - szoba 22,8 m2,
    - konyha 21,1 m2,
    - kamra 7 m2,
    - fürdőszoba-WC 6 m2.
    Az OTP bankcsoport hátterével állunk ügyfeleink rendelkezésére egyénre szabott kedvező kamatozású hitelekkel, CSOK és babaváró hitel ügyintézésével, illetve megbízható ügyvédi közreműködéssel is!
    Amennyiben hirdetésem felkeltette érdeklődését, az alábbi referenciaszámra hivatkozva keressen akár hétvégén is!
    Referenciaszám: M281749
    Érd.: OTP Ingatlanpont Debrecen +36-70-708-2396

    Referencia szám: M281749

    Hirdetés feltöltve: 2025. 10. 01.

    2 szobás családi házak ára Kabán

    Ebből az összehasonlításból megtudhatod, hogyan viszonyul a lakás ára a környékbeli családi házak átlagos árához. Ez nem azt jelenti, hogy ennyivel olcsóbb vagy drágább, mint amennyit a lakás ér, hanem hogy ennyivel tér el a környékbeli átlagtól.

    Ennek a m² ára
    Kaba m² ár
    76 e Ft
    257 e Ft 71%
    Ennek az ára
    Kaba átlagár
    7.5 M Ft m Ft
    17.8 m Ft 58%

    Az ingatlan elhelyezkedése

    Cím: Kaba

    Eladó családi házak a környékről

    Eladó családi ház
    Eladó családi ház

    Kaba

    24.5 M Ft
    2 szoba
    56 m2
    Eladó családi ház
    Eladó családi ház

    Hajdúszoboszló

    49.9 M Ft
    5 szoba
    160 m2
    Eladó családi ház
    Eladó családi ház

    Hajdúszoboszló

    8.49 M Ft
    1 szoba
    24 m2
    Eladó családi ház
    Eladó családi ház

    Kaba

    39.9 M Ft
    4 szoba
    120 m2
    Eladó családi ház
    Eladó családi ház

    Kaba

    27 M Ft
    3 szoba
    97 m2
    Eladó családi ház
    Eladó családi ház

    Kaba

    27 M Ft
    3 szoba
    97 m2
    Eladó családi ház
    Eladó családi ház

    Kaba

    18 M Ft
    2 szoba
    68 m2
    Eladó családi ház
    Eladó családi ház

    Püspökladány, Kiss Ferenc utca

    49.8 M Ft
    5 szoba
    150 m2
    Eladó családi ház
    Eladó családi ház

    Debrecen

    590 M Ft
    8 szoba
    740 m2
    Eladó családi ház
    Eladó családi ház

    Kaba

    27 M Ft
    3 szoba
    97 m2
    Eladó családi ház
    Eladó családi ház

    Kaba

    11.7 M Ft
    2 szoba
    72 m2
    Eladó családi ház
    Eladó családi ház

    Debrecen

    39 M Ft
    2 + 1 szoba
    85 m2
    Eladó családi ház
    Eladó családi ház

    Kaba

    32 M Ft
    3 szoba
    97 m2
    Eladó családi ház
    Eladó családi ház

    Püspökladány

    25.8 M Ft
    2 + 1 szoba
    70 m2
    Eladó családi ház
    Eladó családi ház

    Hajdúböszörmény

    15.5 M Ft
    2 szoba
    45 m2
    Eladó családi ház
    Eladó családi ház

    Püspökladány

    89.999 M Ft
    4 + 2 szoba
    264 m2
    Eladó családi ház
    Eladó családi ház

    Kaba

    18 M Ft
    2 szoba
    68 m2
    Eladó családi ház
    Eladó családi ház

    Kaba

    9.2 M Ft
    2 szoba
    60 m2
    Eladó családi ház
    Eladó családi ház

    Kaba

    8.9 M Ft
    2 szoba
    52 m2
    Eladó családi ház
    Eladó családi ház

    Kaba

    49.5 M Ft
    3 szoba
    112 m2
    Eladó családi ház
    Eladó családi ház

    Kaba

    27 M Ft
    3 szoba
    97 m2
    Eladó családi ház
    Eladó családi ház

    Sáránd

    52.9 M Ft
    3 szoba
    150 m2
    Eladó családi ház
    Eladó családi ház

    Hajdúszoboszló

    99 M Ft
    5 + 1 szoba
    160 m2
    Eladó családi ház
    Eladó családi ház

    Debrecen, Haláp Tanya

    371.45 M Ft
    10 szoba
    500 m2

    Falusi CSOK ingatlanok

    Eladó családi ház
    Eladó családi ház

    Törtel

    20 M Ft
    3 szoba
    76 m2
    Eladó családi ház
    Eladó családi ház

    Mezőzombor

    19.99 M Ft
    3 szoba
    91 m2
    Eladó családi ház
    Eladó családi ház

    Andornaktálya

    65 M Ft
    3 szoba
    80 m2
    Eladó családi ház
    Eladó családi ház

    Orci

    39.9 M Ft
    3 szoba
    80 m2
    Eladó családi ház
    Eladó családi ház

    Hajós

    63 M Ft
    3 szoba
    210 m2
    Eladó családi ház
    Eladó családi ház

    Kaszaper

    14.5 M Ft
    3 szoba
    63 m2
    Eladó családi ház
    Eladó családi ház

    Örkény

    29.9 M Ft
    3 szoba
    106 m2
    Eladó családi ház
    Eladó családi ház

    Bag

    64.5 M Ft
    3 szoba
    95 m2