Astora Márvány8

Eladó családi ház
Jászfényszaru

+ 14 kép 1/17
64 900 000 Ft64.9 M Ft 295 000 Ft/m2
3 szoba
220 m2
építés éve:1980

Részletes adatok

Telekméret: 840 m2
Fűtés: Gázkazán
Energetikai besorolás: Nem adta meg a hirdető

Az OTP Bank lakáshitel ajánlataFizetett hirdetés

+36 70 600
Törökné Gazsi Ivett
Jászberény. OTPIP SzeMi

Érdekel az OTP Bank kedvezményes lakáshitel ajánlata? *

* A kérdésre „Igen” válasz bejelölése esetén, az „Üzenet küldése” gombra kattintva kijelentem, hogy az OTP Bank Nyrt. Adatkezelési tájékoztatójának tartalmát megismertem és tudomásul vettem.

Eladó családi ház leírása

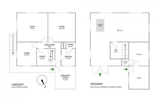
Jász-Nagykun-Szolnok vármegye, Jászfényszaru - kétszintes, részben felújított családi ház eladó!

Jászfényszaru központi, mégis csendes utcájában kínálok megvételre egy 110 nm-es, kétszintes, tégla építésű családi házat, amely rengeteg lehetőséget rejt magában. Az emeleti lakótérben három kényelmes szoba, konyha, kamra, fürdőszoba, közlekedő és egy hangulatos fedett terasz található. A földszinti rész jelenleg műhelyként és garázsként funkcionál, azonban kialakításának köszönhetően könnyedén átalakítható külön bejáratú lakássá, irodává vagy akár üzlethelyiséggé is.

Az ingatlan 10 cm-es hőszigeteléssel rendelkezik, tetőszerkezete cserép borítású. Az elmúlt években több ponton megújult: új tetőszerkezetet, külső szigetelést és modern nyílászárókat kapott, továbbá új villamos hálózat, ipari áram és térkövezett udvar is növeli értékét. A fűtésről gázkazán, vegyestüzelésű kazán és hűtő-fűtő klíma gondoskodik, így az otthon minden évszakban kellemes hőmérsékletet biztosít.

Ez a ház tökéletes választás mindazoknak, akik tágas, jól alakítható otthont keresnek nyugodt környezetben, ugyanakkor céges hasznosításra is kiválóan alkalmas.

Ingatlanvásárláshoz az OTP Bank kedvező hitelkonstrukcióit ajánlom.
Kérem, hívjon bizalommal - készséggel tájékoztatom a részletekről!

Hirdetés feltöltve: 2026. 01. 15. Utoljára módosítva: 2026. 01. 31.

3 szobás családi házak ára Jászfényszarun

Ebből az összehasonlításból megtudhatod, hogyan viszonyul a lakás ára a környékbeli családi házak átlagos árához. Ez nem azt jelenti, hogy ennyivel olcsóbb vagy drágább, mint amennyit a lakás ér, hanem hogy ennyivel tér el a környékbeli átlagtól.

Ennek a m² ára
Jászfényszaru m² ár
295 e Ft
373 e Ft 21%
Ennek az ára
Jászfényszaru átlagár
64.9 M Ft m Ft
44 m Ft -47%

Az ingatlan elhelyezkedése

Cím: Jászfényszaru

Eladó családi házak a környékről

Eladó családi ház
Eladó családi ház

Jászfényszaru

13.9 M Ft
2 szoba
52 m2
Eladó családi ház
Eladó családi ház

Jászjákóhalma

25 M Ft
4 + 1 szoba
200 m2
Eladó családi ház
Eladó családi ház

Szolnok

20.5 M Ft
2 szoba
78 m2
Eladó családi ház
Eladó családi ház

Abádszalók

16 M Ft
4 szoba
110 m2
Eladó családi ház
Eladó családi ház

Jászfényszaru

16.7 M Ft
2 szoba
53 m2
Eladó családi ház
Eladó családi ház

Jászárokszállás

21.5 M Ft
2 szoba
45 m2
Eladó családi ház
Eladó családi ház

Jászfényszaru

59.9 M Ft
3 szoba
107 m2
Eladó családi ház
Eladó családi ház

Jászfényszaru

49.5 M Ft
3 szoba
120 m2
Eladó családi ház
Eladó családi ház

Jászfényszaru

55 M Ft
4 szoba
140 m2
Eladó családi ház
Eladó családi ház

Jászfényszaru

49.5 M Ft
3 szoba
120 m2
Eladó családi ház
Eladó családi ház

Jászberény

75 M Ft
3 szoba
168 m2
Eladó családi ház
Eladó családi ház

Jászfényszaru

27.9 M Ft
2 + 1 szoba
83 m2
Eladó családi ház
Eladó családi ház

Szolnok

120 M Ft
3 + 4 szoba
296 m2
Eladó családi ház
Eladó családi ház

Kisújszállás

119 M Ft
6 szoba
464 m2
Eladó családi ház
Eladó családi ház

Jászfényszaru

49.5 M Ft
3 szoba
120 m2
Eladó családi ház
Eladó családi ház

Jászfényszaru

25 M Ft
3 szoba
84 m2
Eladó családi ház
Eladó családi ház

Jászfényszaru

64.9 M Ft
5 szoba
95 m2
Eladó családi ház
Eladó családi ház

Szolnok

30 M Ft
2 szoba
70 m2
Eladó családi ház
Eladó családi ház

Jászfényszaru

15.5 M Ft
2 szoba
46 m2
Eladó családi ház
Eladó családi ház

Jászberény

39.9 M Ft
5 szoba
160 m2
Eladó családi ház
Eladó családi ház

Jászfényszaru

16.7 M Ft
2 szoba
53 m2
Eladó családi ház
Eladó családi ház

Jászfényszaru

55 M Ft
4 szoba
140 m2
Eladó családi ház
Eladó családi ház

Abádszalók

16 M Ft
4 szoba
110 m2
Eladó családi ház
Eladó családi ház

Jászfényszaru

13.9 M Ft
2 szoba
52 m2

Falusi CSOK ingatlanok

Eladó családi ház
Eladó családi ház

Nyírtura

69.9 M Ft
4 szoba
120 m2
Eladó családi ház
Eladó családi ház

Szilvásvárad

50 M Ft
3 szoba
69 m2
Eladó családi ház
Eladó családi ház

Gönyű

111.951 M Ft
5 szoba
105 m2
Eladó családi ház
Eladó családi ház

Csátalja, Dózsa György utca

36 M Ft
3 szoba
110 m2
Eladó családi ház
Eladó családi ház

Szederkény

107.9 M Ft
6 szoba
224 m2
Eladó családi ház
Eladó családi ház

Pétfürdő

74.9 M Ft
3 szoba
89 m2
Eladó családi ház
Eladó családi ház

Drágszél, Petőfi utca 12

5.58 M Ft
1 + 1 szoba
106 m2
Eladó családi ház
Eladó családi ház

Alattyán

45 M Ft
4 + 1 szoba
186 m2