NapForrás 20 - Buda

Eladó családi ház
Jászfényszaru

+ 14 kép 1/17
25 000 000 Ft25 M Ft 297 619 Ft/m2
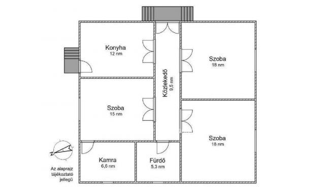
3 szoba
84 m2
építés éve:1970

Részletes adatok

Állapot: Felújítandó
Telekméret: 2131 m2
Fűtés: Gázkonvektor
Energetikai besorolás: Nem adta meg a hirdető

Az OTP Bank lakáshitel ajánlataFizetett hirdetés

+36 70 360
Takács Andrea
THN-TAMUS Kft.

Érdekel az OTP Bank kedvezményes lakáshitel ajánlata? *

* A kérdésre „Igen” válasz bejelölése esetén, az „Üzenet küldése” gombra kattintva kijelentem, hogy az OTP Bank Nyrt. Adatkezelési tájékoztatójának tartalmát megismertem és tudomásul vettem.

Eladó családi ház leírása

Jász-Nagykun-Szolnok vármegyében, Jászfényszaru óvárosi részén eladó egy 3 szobás, 84 nm-es családi ház, amelyhez egy tágas, 2131 nm-es telek tartozik. Az ingatlan 1970-ben épült beton alapra, tégla falazattal, a tető cserép borítást kapott. A ház klasszikus kockaház jellegű, két bejárattal rendelkezik, minden közművel ellátott, ugyanakkor felújítást igényel, így remek lehetőséget kínál új tulajdonosa számára, hogy saját ízlése és igényei szerint alakítsa ki otthonát. A telek mérete és adottságai bőven biztosítanak helyet kertészkedéshez, pihenőkert kialakításához vagy akár további építmények elhelyezéséhez is.

Jászfényszaru város Önkormányzata a letelepedni kívánó fiatalokat a feltételek megléte esetén otthonteremtési támogatással segíti, így az ingatlan fiatal családok számára különösen vonzó választás lehet. Ingatlanvásárláshoz az OTP Bank kedvező hitelkonstrukcióit ajánlom. Kérem, hívjon bizalommal, készséggel tájékoztatom a részletekről.
Takács Andrea +36703603878

Hirdetés feltöltve: 2025. 10. 03. Utoljára módosítva: 2025. 11. 03.

3 szobás családi házak ára Jászfényszarun

Ebből az összehasonlításból megtudhatod, hogyan viszonyul a lakás ára a környékbeli családi házak átlagos árához. Ez nem azt jelenti, hogy ennyivel olcsóbb vagy drágább, mint amennyit a lakás ér, hanem hogy ennyivel tér el a környékbeli átlagtól.

Ennek a m² ára
Jászfényszaru m² ár
298 e Ft
377 e Ft 21%
Ennek az ára
Jászfényszaru átlagár
25 M Ft m Ft
43.3 m Ft 42%

Az ingatlan elhelyezkedése

Cím: Jászfényszaru

Eladó családi házak a környékről

Eladó családi ház
Eladó családi ház

Szászberek

88 M Ft
5 szoba
150 m2
Eladó családi ház
Eladó családi ház

Tiszakürt

2.6 M Ft
929 m²
80 m2
Eladó családi ház
Eladó családi ház

Szolnok

65 M Ft
4 + 1 szoba
102 m2
Eladó családi ház
Eladó családi ház

Jászfényszaru

64.9 M Ft
5 szoba
95 m2
Eladó családi ház
Eladó családi ház

Cibakháza

12.9 M Ft
4 szoba
111 m2
Eladó családi ház
Eladó családi ház

Jászfényszaru

45.9 M Ft
5 szoba
140 m2
Eladó családi ház
Eladó családi ház

Jászfényszaru

49.7 M Ft
5 szoba
195 m2
Eladó családi ház
Eladó családi ház

Mezőtúr, Tündér

25 M Ft
1 szoba
85 m2
Eladó családi ház
Eladó családi ház

Kunszentmárton

15.7 M Ft
3 szoba
84 m2
Eladó családi ház
Eladó családi ház

Jászfényszaru

27.9 M Ft
2 + 1 szoba
83 m2
Eladó családi ház
Eladó családi ház

Szolnok

30 M Ft
2 szoba
70 m2
Eladó családi ház
Eladó családi ház

Jászfényszaru

50 M Ft
5 szoba
150 m2
Eladó családi ház
Eladó családi ház

Jászfényszaru

27.9 M Ft
2 + 1 szoba
83 m2
Eladó családi ház
Eladó családi ház

Zagyvarékas

18.99 M Ft
2 szoba
73 m2
Eladó családi ház
Eladó családi ház

Jászfényszaru

36.2 M Ft
3 szoba
100 m2
Eladó családi ház
Eladó családi ház

Jászfényszaru

19.9 M Ft
2 + 1 szoba
90 m2
Eladó családi ház
Eladó családi ház

Szolnok

35.8 M Ft
2 szoba
70 m2
Eladó családi ház
Eladó családi ház

Jászfényszaru

45.9 M Ft
5 szoba
140 m2
Eladó családi ház
Eladó családi ház

Karcag, József Attila utca

49.9 M Ft
3 szoba
166 m2
Eladó családi ház
Eladó családi ház

Jászfényszaru

55 M Ft
4 szoba
140 m2
Eladó családi ház
Eladó családi ház

Jászfényszaru

47.9 M Ft
3 szoba
120 m2
Eladó családi ház
Eladó családi ház

Szolnok

120 M Ft
3 + 4 szoba
296 m2
Eladó családi ház
Eladó családi ház

Zagyvarékas

19.5 M Ft
2 + 1 szoba
73 m2
Eladó családi ház
Eladó családi ház

Jászladány, Liszt Ferenc utca

35 M Ft
2 + 2 szoba
120 m2

Falusi CSOK ingatlanok

Eladó családi ház
Eladó családi ház

Muhi, Kossuth Lajos utca 5

6.499 M Ft
3 szoba
60 m2
Eladó családi ház
Eladó családi ház

Tab

46.9 M Ft
4 szoba
173 m2
Eladó családi ház
Eladó családi ház

Tiszaalpár

39.5 M Ft
2 szoba
67 m2
Eladó családi ház
Eladó családi ház

Recsk

21 M Ft
4 szoba
220 m2
Eladó családi ház
Eladó családi ház

Bátya

52.9 M Ft
3 szoba
160 m2
Eladó családi ház
Eladó családi ház

Tiszaroff

15.5 M Ft
2 szoba
63 m2
Eladó családi ház
Eladó családi ház

Tápiószőlős

17 M Ft
2 szoba
60 m2
Eladó családi ház
Eladó családi ház

Tiszaroff

12.9 M Ft
3 szoba
87 m2