Eladó családi ház
Jakabszállás

Figyelem!

Ez az ingatlan a 2019.07.01-től induló falusi CSOK által támogatott településen található

+ 9 kép 1/12
53 990 000 Ft53.99 M Ft 425 118 Ft/m2
3 szoba
127 m2
építés éve:1975

Részletes adatok

Állapot: Átlagos
Telekméret: 1299 m2
Fűtés: Gázkazán
Energetikai besorolás: Nem adta meg a hirdető

Az OTP Bank lakáshitel ajánlataFizetett hirdetés

+36 70 660
Mohácsi Mária
HOUSE36 Ingatlanbázis Kft.

Érdekel az OTP Bank kedvezményes lakáshitel ajánlata? *

* A kérdésre „Igen” válasz bejelölése esetén, az „Üzenet küldése” gombra kattintva kijelentem, hogy az OTP Bank Nyrt. Adatkezelési tájékoztatójának tartalmát megismertem és tudomásul vettem.

Eladó családi ház leírása

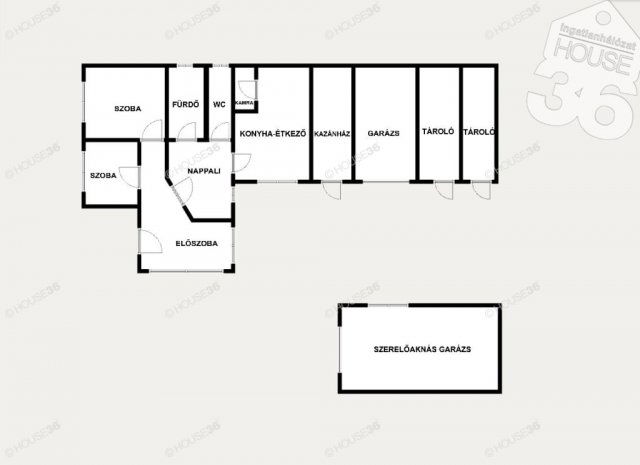
Eladó 127 m2-es családi ház 1299 m2-es telken Jakabszálláson!

127 m2 lakótér
1299 m2 telek
8 m2 terasz
14,42 m2 pince
melléképületek, dupla, szerelőaknás garázs
+ szimpla garázs, gépkocsi beálló

Gondozott kert, sok melléképület és termő gyümölcsfák teszik teljessé az ingatlant!

Főbb jellemzők:

B30-as tégla épület
Gázfűtés + vegyes tüzelésű kazán
Melegvíz: villanybojler
Nyílászárók: fa ablakok redőnnyel, műanyag bejárati ajtók
Burkolatok: kő és laminált parketta (2024-ben szobák burkolatcseréje és az ingatlan festése megtörtént)
Fúrt kút
3 fázisú áram
cserép fedésű tető

Buszmegállóbolt 500, iskola 800, óvoda 300 méterre található.

Ez az ingatlan ideális választás nagycsaládosoknak vagy azoknak, akik szeretnének nagy telken, jó elosztású, stabil szerkezetű házban élni.

Figyelem, az adatlap kapott adatok alapján készült, pontosságáért felelősséget nem tudunk vállalni.
A tulajdonos kérésére az ingatlan bemutatása egy személyes konzultáció után történik, ahol részletes tájékoztatást kaphat az ingatlan paramétereiről és egyéb kényelmi szolgáltatásairól.
Amennyiben vásárlásához el kell adnia saját ingatlanát, szívesen segítek, forduljon hozzám bizalommal!
Az iroda legfrissebb, aktuális kínálatát a HOUSE36 saját weboldalán találja!

Hirdetés feltöltve: 2025. 10. 04. Utoljára módosítva: 2025. 10. 04.

Az ingatlan elhelyezkedése

Cím: Jakabszállás

Eladó családi házak a környékről

Eladó családi ház
Eladó családi ház

Jakabszállás

74.9 M Ft
4 szoba
101 m2
Eladó családi ház
Eladó családi ház

Jakabszállás

320 M Ft
15 szoba
665 m2
Eladó családi ház
Eladó családi ház

Kecskemét

24.9 M Ft
3 szoba
62 m2
Eladó családi ház
Eladó családi ház

Kelebia, Kossuth

29.5 M Ft
5 szoba
160 m2
Eladó családi ház
Eladó családi ház

Jakabszállás

320 M Ft
15 szoba
665 m2
Eladó családi ház
Eladó családi ház

Fajsz

12 M Ft
4 szoba
129 m2
Eladó családi ház
Eladó családi ház

Ballószög

75 M Ft
5 szoba
180 m2
Eladó családi ház
Eladó családi ház

Jakabszállás

53.99 M Ft
3 szoba
127 m2
Eladó családi ház
Eladó családi ház

Jakabszállás, Jakabszállás

56.1 M Ft
3 szoba
80 m2
Eladó családi ház
Eladó családi ház

Jakabszállás

320 M Ft
15 szoba
665 m2
Eladó családi ház
Eladó családi ház

Kecskemét, Alsószéktó, Alsószéktó 138

58 M Ft
5 szoba
92 m2
Eladó családi ház
Eladó családi ház

Kecskemét

199 M Ft
5 szoba
350 m2
Eladó családi ház
Eladó családi ház

Fajsz

12 M Ft
3 szoba
128 m2
Eladó családi ház
Eladó családi ház

Jakabszállás

99.8 M Ft
4 szoba
128 m2
Eladó családi ház
Eladó családi ház

Jakabszállás

69.99 M Ft
1 + 4 szoba
91 m2
Eladó családi ház
Eladó családi ház

Jakabszállás

74.9 M Ft
4 szoba
101 m2
Eladó családi ház
Eladó családi ház

Tiszakécske, Bajza utca

52.5 M Ft
3 szoba
110 m2
Eladó családi ház
Eladó családi ház

Kecskemét, Alsószéktó, Alsószéktó 138

55 M Ft
5 szoba
91 m2
Eladó családi ház
Eladó családi ház

Jakabszállás

320 M Ft
15 szoba
665 m2
Eladó családi ház
Eladó családi ház

Kecskemét, Alsószéktó, Alsószéktó 138

63 M Ft
5 szoba
91 m2
Eladó családi ház
Eladó családi ház

Jakabszállás

39.9 M Ft
3 szoba
105 m2
Eladó családi ház
Eladó családi ház

Jakabszállás, Diófa utca

74.9 M Ft
3 + 1 szoba
115 m2
Eladó családi ház
Eladó családi ház

Kecskemét

9.9 M Ft
2 szoba
30 m2
Eladó családi ház
Eladó családi ház

Kiskunmajsa, Kiskunmajsa - Birtok

91.8 M Ft
5 szoba
170 m2

Falusi CSOK ingatlanok

Eladó családi ház
Eladó családi ház

Kaposgyarmat

695 M Ft
6 szoba
610 m2
Eladó családi ház
Eladó családi ház

Tápióbicske

24.9 M Ft
4 szoba
83 m2
Eladó családi ház
Eladó családi ház

Galgahévíz

52 M Ft
3 + 1 szoba
108 m2
Eladó családi ház
Eladó családi ház

Miháld

39.9 M Ft
5 szoba
101 m2
Eladó családi ház
Eladó családi ház

Szőlősgyörök, Arany János utca

89.9 M Ft
3 szoba
130 m2
Eladó családi ház
Eladó családi ház

Csokonyavisonta

22.9 M Ft
3 szoba
90 m2
Eladó családi ház
Eladó családi ház

Badacsonytomaj

199.8 M Ft
3 szoba
166 m2
Eladó családi ház
Eladó családi ház

Koppányszántó, Fő u 211

9.9 M Ft
2 szoba
55 m2

Falusi CSOK ingatlanok

Eladó ikerház
Eladó ikerház

Győrság

54.95 M Ft
3 szoba
72 m2
Eladó családi ház
Eladó családi ház

Ceglédbercel

95 M Ft
6 szoba
220 m2
Eladó családi ház
Eladó családi ház

Nádasdladány

45.9 M Ft
1 + 1 szoba
50 m2
Eladó családi ház
Eladó családi ház

Törtel

39 M Ft
1 + 1 szoba
118 m2
Eladó családi ház
Eladó családi ház

Törtel

34.9 M Ft
4 szoba
102 m2
Eladó ikerház
Eladó ikerház

Balatonkenese

84.99 M Ft
3 szoba
76 m2
Eladó családi ház
Eladó családi ház

Cece

23.5 M Ft
2 szoba
56 m2
Eladó családi ház
Eladó családi ház

Sávoly

12.9 M Ft
3 szoba
84 m2