Oasis Residence

Eladó családi ház
Isaszeg

+ 17 kép 1/20
70 000 000 Ft70 M Ft 301 724 Ft/m2
4 szoba
232 m2
építés éve:1987

Részletes adatok

Állapot: Átlagos
Telekméret: 600 m2
Fűtés: Gázkazán
Energetikai besorolás: Nem adta meg a hirdető

Az OTP Bank lakáshitel ajánlataFizetett hirdetés

+36 30 439
Szilveszter Noémi
Szigetszentmiklós OTP Ip

Érdekel az OTP Bank kedvezményes lakáshitel ajánlata? *

* A kérdésre „Igen” válasz bejelölése esetén, az „Üzenet küldése” gombra kattintva kijelentem, hogy az OTP Bank Nyrt. Adatkezelési tájékoztatójának tartalmát megismertem és tudomásul vettem.

Eladó családi ház leírása

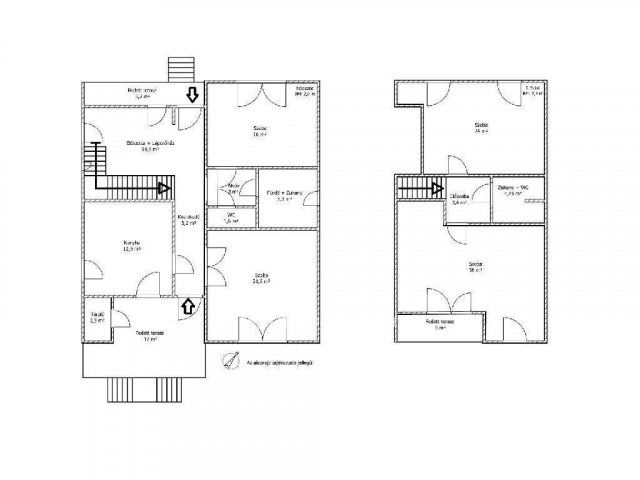
Eladó 4 szobás 232 négyzetméteres családi ház Isaszegen! Csendes utcában, rendezett szomszédokkal! Ez a négy szobás tágas otthon téglából épült és öt éve a teljes tetőhéjazat felújítása megtörtént. Fűtése gázkazánnal és vegyes tüzelésű kazánnal is megoldható. Pár éve jó minőségű thermo üvegezésű borovi fenyő ablakokra cserélték a régieket. Az épület teljes egészében alá van pincézve aminek külön bejárata van, a garázs is itt kapott helyet de a kertben is van egy 6 méter * 4 méteres garázs is. Ajánlom családosoknak és több generációs családoknak is. Az épületben akár saját vállalkozás indítására is van hely mivel a pincében iroda és raktár is könnyen kialakítható! A házat könnyen két lakrészre lehet osztani az emeleten egy konyha kialakításához minden adott. Jöjjön el és tekintse meg ezt a remek lehetőséget! Hívjon és egyeztessünk időpontot a megtekintéshez! Kérdéseire az esti órákban és hétvégén is szívesen válaszolok! Ha az új ingatlana megvásárlásához a jelenlegi ingatlanát el kell adnia, abban is szívesen segítünk.

Teljes körű ügyintézéssel állunk az eladók és a vevők rendelkezésére! A kínálatunkból választott ingatlan finanszírozásához minősített fogyasztóbarát, piaci és kedvezményes hitel- és lízingkonstrukciókat kínálunk (Otthon Start Hitelprogram, lakásvásárlási hitel, szabad felhasználású hitel, babaváró hitel, CSOK Plusz intézés, Otthonfelújítási Támogatás, egyéb felújítási hitelek). Az adásvételi szerződés megkötéséhez igény szerint megbízható ügyvédi közreműködést biztosítunk, és segítséget nyújtunk az adásvételhez kapcsolódó egyéb ügyek intézéséhez.

Hirdetés feltöltve: 2025. 10. 12. Utoljára módosítva: 2025. 11. 26.

4 szobás családi házak ára Isaszegen

Ebből az összehasonlításból megtudhatod, hogyan viszonyul a lakás ára a környékbeli családi házak átlagos árához. Ez nem azt jelenti, hogy ennyivel olcsóbb vagy drágább, mint amennyit a lakás ér, hanem hogy ennyivel tér el a környékbeli átlagtól.

Ennek a m² ára
Isaszeg m² ár
302 e Ft
599 e Ft 50%
Ennek az ára
Isaszeg átlagár
70 M Ft m Ft
76 m Ft 8%

Az ingatlan elhelyezkedése

Cím: Isaszeg

Eladó családi házak a környékről

Eladó családi ház
Eladó családi ház

Dunavarsány

69.9 M Ft
3 + 1 szoba
140 m2
Eladó családi ház
Eladó családi ház

Érd

164.9 M Ft
5 szoba
192 m2
Eladó családi ház
Eladó családi ház

Isaszeg

34.9 M Ft
1 + 1 szoba
31 m2
Eladó családi ház
Eladó családi ház

Budakeszi

130 M Ft
5 szoba
30 m2
Eladó családi ház
Eladó családi ház

Budakeszi, Budakeszi kertváros

140 M Ft
2 szoba
55 m2
Eladó családi ház
Eladó családi ház

Isaszeg

87.99 M Ft
5 + 1 szoba
200 m2
Eladó családi ház
Eladó családi ház

Isaszeg

61.5 M Ft
3 + 1 szoba
110 m2
Eladó családi ház
Eladó családi ház

Isaszeg

59.9 M Ft
4 + 1 szoba
161 m2
Eladó családi ház
Eladó családi ház

Isaszeg

135 M Ft
4 szoba
300 m2
Eladó családi ház
Eladó családi ház

Tápiószentmárton

7.9 M Ft
2 + 1 szoba
86 m2
Eladó családi ház
Eladó családi ház

Isaszeg

80 M Ft
4 + 2 szoba
215 m2
Eladó családi ház
Eladó családi ház

Budakeszi, Budakeszi kertváros

229 M Ft
10 szoba
450 m2
Eladó családi ház
Eladó családi ház

Isaszeg

74.9 M Ft
5 + 1 szoba
197 m2
Eladó családi ház
Eladó családi ház

Isaszeg

43.5 M Ft
2 szoba
48 m2
Eladó családi ház
Eladó családi ház

Dunavarsány

49.9 M Ft
3 + 2 szoba
130 m2
Eladó családi ház
Eladó családi ház

Isaszeg

43.5 M Ft
2 szoba
48 m2
Eladó családi ház
Eladó családi ház

Gyál, Gyál út

169.9 M Ft
2 szoba
90 m2
Eladó családi ház
Eladó családi ház

Sződ, Rátóti utca

149.99 M Ft
11 szoba
270 m2
Eladó családi ház
Eladó családi ház

Isaszeg

65 M Ft
4 szoba
119 m2
Eladó családi ház
Eladó családi ház

Budaörs, Városközpont utca

119.5 M Ft
5 + 1 szoba
140 m2
Eladó családi ház
Eladó családi ház

Budaörs, Odvshegy utca

268.9 M Ft
5 szoba
235 m2
Eladó családi ház
Eladó családi ház

Tahitótfalu

188 M Ft
7 szoba
280 m2
Eladó családi ház
Eladó családi ház

Isaszeg

48 M Ft
3 szoba
48 m2
Eladó családi ház
Eladó családi ház

Isaszeg

65 M Ft
4 szoba
119 m2

Falusi CSOK ingatlanok

Eladó családi ház
Eladó családi ház

Kenyeri

39.9 M Ft
3 szoba
94 m2
Eladó családi ház
Eladó családi ház

Besnyő

149 M Ft
6 szoba
285 m2
Eladó családi ház
Eladó családi ház

Tápiógyörgye

32 M Ft
3 szoba
86 m2
Eladó családi ház
Eladó családi ház

Ónod, Barátság 9

31.999 M Ft
3 szoba
150 m2
Eladó családi ház
Eladó családi ház

Seregélyes

75 M Ft
6 szoba
160 m2
Eladó családi ház
Eladó családi ház

Ceglédbercel

95 M Ft
6 szoba
220 m2
Eladó családi ház
Eladó családi ház

Pórszombat

20.5 M Ft
3 szoba
88 m2
Eladó családi ház
Eladó családi ház

Orci

119.9 M Ft
6 szoba
200 m2