Astora Olive Club House

Eladó családi ház
Ibrány, Belváros

+ 12 kép 1/15
31 900 000 Ft31.9 M Ft 328 866 Ft/m2
2 + 1 szoba
97 m²
építés éve:1980

Részletes adatok

Telekméret: 1083 m2
Fűtés: Gázkonvektor
Parkolás: Garázs
Közmű: Víz, Gáz, Villany, Csatorna, Szélessáv, KábelTV
Energetikai besorolás: C

Az OTP Bank lakáshitel ajánlataFizetett hirdetés

+36 30 459
Némethné Judit
Judit Ingatlanház

Érdekel az OTP Bank kedvezményes lakáshitel ajánlata? *

* A kérdésre „Igen” válasz bejelölése esetén, az „Üzenet küldése” gombra kattintva kijelentem, hogy az OTP Bank Nyrt. Adatkezelési tájékoztatójának tartalmát megismertem és tudomásul vettem.

Eladó családi ház leírása

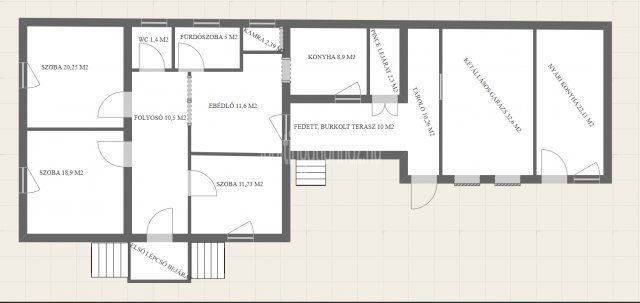
Ibrány csendes aszfaltozott utcájában eladó nettó 97 m2-s fűtött alapterületű három különnyíló szobás, konyha+étkezős, fürdőszoba és wc külön, kamra, gázkonvektor és kandalló fűtésű, műanyag és fa hőszigetelt nyílászárós tufa építésű, pala tetős jó állapotú családi ház mely külsőleg 5 cm-s szigetelést kapott a födémen 15 cm-s üveggyapottal borított. Az 1083 m2-s rendezett portán található 30-s téglából épült tároló, kétállásos garázs melynek automata garázskapuja van és nyári konyha, továbbá 9 m2-s pince mely a konyha alatt helyezkedik el, fedett terasz, térkövezett udvar, fúrott kút és ipari áram. Az ingatlan tehermentes a térképen minden épület fel van tüntetve, birtokba vétel akár azonnal. Amennyiben felkeltette az érdeklődését keressen, hiteligénylésben is tudok segíteni, VEVŐK RÉSZÉRE A KÖZVETÍTÉS DÍJTALAN!

Hirdetés feltöltve: 2026. 03. 14. Utoljára módosítva: 2026. 03. 14.

3 szobás családi házak ára Ibrányban

Ebből az összehasonlításból megtudhatod, hogyan viszonyul a lakás ára a környékbeli családi házak átlagos árához. Ez nem azt jelenti, hogy ennyivel olcsóbb vagy drágább, mint amennyit a lakás ér, hanem hogy ennyivel tér el a környékbeli átlagtól.

Ennek a m² ára
Ibrány m² ár
329 e Ft
286 e Ft -15%
Ennek az ára
Ibrány átlagár
31.9 M Ft m Ft
29.3 m Ft -9%

Az ingatlan elhelyezkedése

Cím: Ibrány, Belváros

Eladó családi házak a környékről

Nyíregyháza
Eladó családi ház

Nyíregyháza

98 M Ft
4 szoba
125 m²
Ibrány
Eladó családi ház

Ibrány

24.9 M Ft
3 szoba
90 m²
Ibrány
Eladó családi ház

Ibrány

24.9 M Ft
3 szoba
90 m²
Nyíregyháza
Eladó családi ház

Nyíregyháza

250 M Ft
4 szoba
440 m²
Ibrány
Eladó családi ház

Ibrány

22 M Ft
3 szoba
75 m²
Ibrány
Eladó családi ház

Ibrány

27.5 M Ft
2 szoba
70 m²
Nyíregyháza
Eladó családi ház

Nyíregyháza

92 M Ft
3 szoba
161 m²
Nyíregyháza
Eladó családi ház

Nyíregyháza

190 M Ft
4 szoba
230 m²
Nyíregyháza
Eladó családi ház

Nyíregyháza

250 M Ft
3 szoba
440 m²
Nyíregyháza
Eladó családi ház

Nyíregyháza

240 M Ft
3 szoba
204 m²
Nyíregyháza
Eladó családi ház

Nyíregyháza

64.9 M Ft
3 szoba
140 m²
Nyíregyháza
Eladó családi ház

Nyíregyháza

79 M Ft
4 szoba
140 m²
Ibrány
Eladó családi ház

Ibrány

24.9 M Ft
3 szoba
90 m²
Nyíregyháza
Eladó családi ház

Nyíregyháza

90 M Ft
5 szoba
210 m²
Ibrány
Eladó családi ház

Ibrány

43.9 M Ft
3 szoba
130 m²
Ibrány
Eladó családi ház

Ibrány

24.9 M Ft
3 szoba
90 m²
Napkor
Eladó családi ház

Napkor

115 M Ft
5 szoba
292 m²
Nyíregyháza
Eladó családi ház

Nyíregyháza

100 M Ft
4 szoba
220 m²
Ibrány, Nagy Imre utca
Eladó családi ház

Ibrány

7.99 M Ft
2 szoba
50 m²
Ibrány
Eladó családi ház

Ibrány

24.5 M Ft
3 szoba
81 m²
Ibrány
Eladó családi ház

Ibrány

14.9 M Ft
3 szoba
102 m²
Ibrány
Eladó családi ház

Ibrány

17 M Ft
2 + 1 szoba
80 m²
Ibrány
Eladó családi ház

Ibrány

24.5 M Ft
3 szoba
81 m²
Ibrány
Eladó családi ház

Ibrány

24.9 M Ft
3 szoba
90 m²

Falusi CSOK ingatlanok

Balatonszemes
Eladó téglalakás

Balatonszemes

123.3 M Ft
2 szoba
70 m²
Mesztegnyő
Eladó családi ház

Mesztegnyő

23.8 M Ft
2 szoba
72 m²
Kőtelek
Eladó családi ház

Kőtelek

25 M Ft
2 szoba
90 m²
Bakonyszentkirály
Eladó családi ház

Bakonyszentkirály

99.99 M Ft
5 szoba
126 m²
Kőtelek
Eladó családi ház

Kőtelek

14.5 M Ft
1 + 1 szoba
70 m²
Magyarszék
Eladó családi ház

Magyarszék

48.5 M Ft
3 + 1 szoba
86 m²
Váckisújfalu, Petőfi Sándor utca
Eladó családi ház

Váckisújfalu

84.77 M Ft
4 szoba
166 m²
Kisnémedi
Eladó családi ház

Kisnémedi

59.9 M Ft
5 szoba
250 m²