Eladó családi ház
Gyóró

Figyelem!

Ez az ingatlan a 2019.07.01-től induló falusi CSOK által támogatott településen található

+ 17 kép 1/20
33 900 000 Ft33.9 M Ft 339 000 Ft/m2
2 szoba
100 m2
építés éve:1960

Részletes adatok

Telekméret: 2432 m2
Fűtés: Gázkonvektor
Energetikai besorolás: Nem adta meg a hirdető
Zenga Premier

Friss hirdetések, amiket nem találsz meg más ingatlankereső portálon.

Fedezd fel elsőként a Zenga Premier címkés eladó ingatlanokat!

További részletek a zenga.hu-n

Az OTP Bank lakáshitel ajánlataFizetett hirdetés

3699815017
Hetes Boglárka Csenge
referens

Érdekel az OTP Bank kedvezményes lakáshitel ajánlata? *

* A kérdésre „Igen” válasz bejelölése esetén, az „Üzenet küldése” gombra kattintva kijelentem, hogy az OTP Bank Nyrt. Adatkezelési tájékoztatójának tartalmát megismertem és tudomásul vettem.

Eladó családi ház leírása

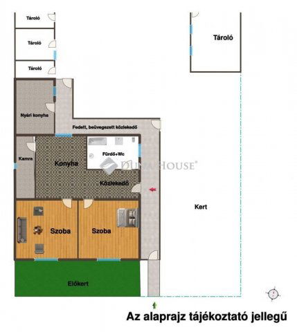
Családi ház eladó Gyórón tágas telek, gazdálkodásra is alkalmas melléképületekkel!

Gyóró településén, nyugodt, vidéki környezetben kínálunk megvételre egy klasszikus Kádár-kocka típusú családi házat, mely egy 2.436 m²-es, gondozott telken helyezkedik el, előkert kialakítással, telekhatárra építve.

A lakóépület 2 szobából, konyhából, fürdőszoba + WC-ből, közlekedőből és kamrából áll. A házba egy beüvegezett szélfogón keresztül juthatunk be, amely nemcsak praktikus, de kellemes fogadótere is az otthonnak.

A ház gázkonvektoros fűtéssel ellátott, közművek közül víz, villany, gáz rendelkezésre áll, a szennyvízelvezetés emésztőn keresztül történik.
Az ingatlan különlegessége a közvetlenül a házhoz kapcsolódó, több bejárattal rendelkező melléképület-rendszer, melynek helyiségei között megtalálható:

- nyári konyha
- csűr- akol
- ól
- műhely

Ezek a melléképületek remek lehetőséget kínálnak háztáji gazdálkodásra, állattartásra, barkácsolásra, vagy akár tárolási célokra is.

Az ingatlan ideális választás lehet mindazoknak, akik csendre, térre és egy önfenntartásra is alkalmas vidéki otthonra vágynak, miközben elérhető közelségben maradnak a környező nagyobb településekhez.

Ne hagyja ki ezt a sok lehetőséget rejtő ingatlant jöjjön el, nézze meg, és találja meg benne új otthonát vagy vidéki nyugalmát!

Hirdetés feltöltve: 2025. 10. 08. Utoljára módosítva: 2025. 10. 08.

Az ingatlan elhelyezkedése

Cím: Gyóró

Eladó ingatlanok a környékről

Eladó téglalakás
Eladó téglalakás

Győr

72.5 M Ft
2 szoba
81 m2
Eladó panellakás
Eladó panellakás

Győr

43 M Ft
2 szoba
44 m2
Eladó családi ház
Eladó családi ház

Rábatamási

36.8 M Ft
3 szoba
87 m2
Eladó téglalakás
Eladó téglalakás

Győr

53.75 M Ft
2 szoba
65 m2
Eladó családi ház
Eladó családi ház

Jánossomorja

617.747 M Ft
12 szoba
405 m2
Eladó családi ház
Eladó családi ház

Nagycenk

64.8 M Ft
3 + 1 szoba
76 m2
Eladó téglalakás
Eladó téglalakás

Mosonmagyaróvár

73 M Ft
3 szoba
62 m2
Eladó családi ház
Eladó családi ház

Győr

325 M Ft
6 szoba
365 m2
Eladó téglalakás
Eladó téglalakás

Hegyeshalom

63.5 M Ft
4 szoba
69 m2
Eladó téglalakás
Eladó téglalakás

Győr

47 M Ft
1 szoba
28 m2
Eladó családi ház
Eladó családi ház

Győrság

93.45 M Ft
4 szoba
96 m2
Eladó téglalakás
Eladó téglalakás

Levél

48.99 M Ft
2 szoba
44 m2
Eladó családi ház
Eladó családi ház

Lébény

39.9 M Ft
4 szoba
90 m2
Eladó családi ház
Eladó családi ház

Sopron

170 M Ft
4 szoba
122 m2
Eladó családi ház
Eladó családi ház

Tét

9.9 M Ft
2 szoba
50 m2
Eladó családi ház
Eladó családi ház

Mosonmagyaróvár

66.9 M Ft
4 szoba
192 m2
Eladó ikerház
Eladó ikerház

Győrság

78 M Ft
4 szoba
91 m2
Eladó családi ház
Eladó családi ház

Mosonszolnok

56 M Ft
3 + 1 szoba
110 m2
Eladó családi ház
Eladó családi ház

Lébény

62.99 M Ft
4 szoba
90 m2
Eladó családi ház
Eladó családi ház

Győrszemere

75.034 M Ft
5 szoba
95 m2
Eladó családi ház
Eladó családi ház

Győr

365 M Ft
3 + 2 szoba
478 m2
Eladó téglalakás
Eladó téglalakás

Győr

43.9 M Ft
2 szoba
45 m2
Eladó családi ház
Eladó családi ház

Nagycenk

80.6 M Ft
4 szoba
106 m2
Eladó panellakás
Eladó panellakás

Győr, Adyváros, Földes Gábor utca

55.5 M Ft
2 szoba
55 m2

Falusi CSOK ingatlanok

Eladó családi ház
Eladó családi ház

Zsámbok, Szent László utca

38 M Ft
2 szoba
75 m2
Eladó családi ház
Eladó családi ház

Fonyód

79.9 M Ft
7 szoba
149 m2
Eladó családi ház
Eladó családi ház

Nagybaracska, Mohácsi utca

18 M Ft
4 szoba
140 m2
Eladó családi ház
Eladó családi ház

Szalánta, Hunyadi

41.9 M Ft
3 + 1 szoba
120 m2
Eladó családi ház
Eladó családi ház

Bezenye

84.9 M Ft
4 + 1 szoba
145 m2
Eladó családi ház
Eladó családi ház

Ceglédbercel

63 M Ft
3 szoba
70 m2
Eladó családi ház
Eladó családi ház

Szalkszentmárton

49.3 M Ft
4 szoba
150 m2
Eladó családi ház
Eladó családi ház

Csátalja, Kossuth Lajos utca

41.9 M Ft
3 szoba
90 m2

Falusi CSOK ingatlanok

Eladó családi ház
Eladó családi ház

Úrkút, Temető utca

99 M Ft
7 szoba
540 m2
Eladó családi ház
Eladó családi ház

Fonyód

495 M Ft
5 szoba
149 m2
Eladó családi ház
Eladó családi ház

Magyarszék

89.9 M Ft
5 szoba
130 m2
Eladó családi ház
Eladó családi ház

Gáborjánháza

23 M Ft
2 szoba
117 m2
Eladó családi ház
Eladó családi ház

Nemesbőd

87 M Ft
5 szoba
120 m2
Eladó családi ház
Eladó családi ház

Galgahévíz

49 M Ft
3 + 1 szoba
108 m2
Eladó családi ház
Eladó családi ház

Mezőfalva

39 M Ft
3 szoba
77 m2
Eladó családi ház
Eladó családi ház

Fonyód

79.9 M Ft
7 szoba
149 m2