Seven Pearl

Eladó családi ház
Gyenesdiás

+ 13 kép 1/16
135 000 000 Ft135 M Ft 1 038 462 Ft/m2
4 szoba
130 m2
építés éve:2025

Részletes adatok

Telekméret: 760 m2
Fűtés: Egyéb
Energetikai besorolás: Nem adta meg a hirdető

Az OTP Bank lakáshitel ajánlataFizetett hirdetés

+36 70 334
Pál Miklós
referens

Érdekel az OTP Bank kedvezményes lakáshitel ajánlata? *

* A kérdésre „Igen” válasz bejelölése esetén, az „Üzenet küldése” gombra kattintva kijelentem, hogy az OTP Bank Nyrt. Adatkezelési tájékoztatójának tartalmát megismertem és tudomásul vettem.

Eladó családi ház leírása

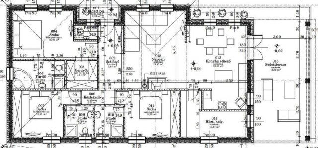
Gyenesdiás nyugodt, csendes részén újépítésű családiház eladó.
A 760nm telken épülő ház nagyon jó elosztású, egy szintes épület.
Az elosztása: nagy méretű nappali-konyha-étkező, 3 hálószoba és fürdőszoba.
A nappaliból nyílik a 45 nm terasz.
A ház mérete 130 nm ehhez jön még a terasz.
Az építkezés folyamatosan zajlik, a burkolatok már a képeken látszanak.
Igényes, jó minőségű kivitelezés jellemzi az egész épületet.
A külső nyílászárókon elektromos alumínium redőnyök lesznek.
A ház B energetikai besorolású lesz.
Bár még nincs kész, de jelenleg is megtekinthető az épület személyesen is.
Amennyiben felkeltette érdeklődését vagy további informácókra lenne szüksége, vagy kérdések merülnek fel Önben, várom hívását. Időpont egyeztetése után megtekinthető az ingatlan.
A kínálatunkból választott ingatlan finanszírozásához szükség esetén kedvezményes hitelkonstrukciót ajánlunk.
Az adásvételi szerződés megkötéséhez igény szerint megbízható ügyvédi közreműködést biztosítunk és segítséget nyújtunk az adásvételhez kapcsolódó ügyintézéshez.
Érdeklődni: Otp Ingatlanpont Kft. Pál Miklós 70 3341099

Referencia szám: M299129-ZE

Hirdetés feltöltve: 2025. 08. 20. Utoljára módosítva: 2025. 12. 17.

4 szobás családi házak ára Gyenesdiáson

Ebből az összehasonlításból megtudhatod, hogyan viszonyul a lakás ára a környékbeli családi házak átlagos árához. Ez nem azt jelenti, hogy ennyivel olcsóbb vagy drágább, mint amennyit a lakás ér, hanem hogy ennyivel tér el a környékbeli átlagtól.

Ennek a m² ára
Gyenesdiás m² ár
1038 e Ft
1043 e Ft 0%
Ennek az ára
Gyenesdiás átlagár
135 M Ft m Ft
169.7 m Ft 20%

Az ingatlan elhelyezkedése

Cím: Gyenesdiás

Eladó családi házak a környékről

Eladó családi ház
Eladó családi ház

Pacsa

54.9 M Ft
5 + 2 szoba
200 m2
Eladó családi ház
Eladó családi ház

Cserszegtomaj

420 M Ft
4 + 1 szoba
338 m2
Eladó családi ház
Eladó családi ház

Gyenesdiás

215 M Ft
4 szoba
178 m2
Eladó családi ház
Eladó családi ház

Gyenesdiás

133 M Ft
5 + 1 szoba
200 m2
Eladó családi ház
Eladó családi ház

Gyenesdiás

133 M Ft
5 + 1 szoba
200 m2
Eladó családi ház
Eladó családi ház

Gyenesdiás

95 M Ft
4 szoba
140 m2
Eladó családi ház
Eladó családi ház

Gyenesdiás

159.9 M Ft
8 szoba
240 m2
Eladó családi ház
Eladó családi ház

Keszthely

146 M Ft
6 szoba
224 m2
Eladó családi ház
Eladó családi ház

Gyenesdiás

299 M Ft
5 szoba
210 m2
Eladó családi ház
Eladó családi ház

Gyenesdiás

125 M Ft
4 szoba
135 m2
Eladó családi ház
Eladó családi ház

Gyenesdiás

125 M Ft
4 szoba
135 m2
Eladó családi ház
Eladó családi ház

Gyenesdiás

108 M Ft
5 szoba
120 m2
Eladó családi ház
Eladó családi ház

Zalaszentgrót

49.9 M Ft
2 szoba
70 m2
Eladó családi ház
Eladó családi ház

Szentliszló

29.9 M Ft
2 + 2 szoba
170 m2
Eladó családi ház
Eladó családi ház

Gyenesdiás

230 M Ft
4 szoba
180 m2
Eladó családi ház
Eladó családi ház

Nagykanizsa

299 M Ft
7 szoba
1800 m2
Eladó családi ház
Eladó családi ház

Alsópáhok

64.9 M Ft
3 szoba
110 m2
Eladó családi ház
Eladó családi ház

Gyenesdiás

95 M Ft
4 szoba
140 m2
Eladó családi ház
Eladó családi ház

Zalaegerszeg

200 M Ft
7 szoba
355 m2
Eladó családi ház
Eladó családi ház

Cserszegtomaj

175 M Ft
3 szoba
140 m2
Eladó családi ház
Eladó családi ház

Hévíz

80 M Ft
5 + 3 szoba
275 m2
Eladó családi ház
Eladó családi ház

Gyenesdiás

199 M Ft
10 szoba
230 m2
Eladó családi ház
Eladó családi ház

Zalaszántó

19.9 M Ft
2 szoba
66 m2
Eladó családi ház
Eladó családi ház

Hévíz

120 M Ft
5 szoba
215 m2

Falusi CSOK ingatlanok

Eladó családi ház
Eladó családi ház

Petrivente, Kossuth Lajos utca

31.9 M Ft
3 szoba
127 m2
Eladó téglalakás
Eladó téglalakás

Rétság

44.9 M Ft
2 szoba
55 m2
Eladó családi ház
Eladó családi ház

Tiszatenyő

13.99 M Ft
2 szoba
63 m2
Eladó családi ház
Eladó családi ház

Nyáregyháza

124.9 M Ft
7 szoba
267 m2
Eladó családi ház
Eladó családi ház

Örkény

52.606 M Ft
3 szoba
109 m2
Eladó családi ház
Eladó családi ház

Tápiógyörgye

30 M Ft
3 szoba
65 m2
Eladó családi ház
Eladó családi ház

Szenna

34.9 M Ft
4 + 1 szoba
110 m2
Eladó családi ház
Eladó családi ház

Bag

16.9 M Ft
6 szoba
160 m2