City Pearl

Eladó családi ház
Gyál

+ 17 kép 1/20
249 900 000 Ft249.9 M Ft 876 842 Ft/m2
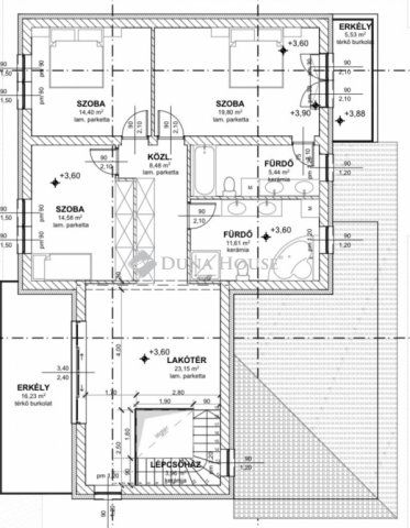
6 szoba
285 m2
építés éve:2025

Részletes adatok

Telekméret: 700 m2
Fűtés: Egyéb
Energetikai besorolás: Nem adta meg a hirdető

Az OTP Bank lakáshitel ajánlataFizetett hirdetés

+36 1 690
Hársmán Kamilla
Duna House - Szent Imre-kertváros

Érdekel az OTP Bank kedvezményes lakáshitel ajánlata? *

* A kérdésre „Igen” válasz bejelölése esetén, az „Üzenet küldése” gombra kattintva kijelentem, hogy az OTP Bank Nyrt. Adatkezelési tájékoztatójának tartalmát megismertem és tudomásul vettem.

Eladó családi ház leírása

Igazi luxus Gyálon!

Gyál egyik kedvelt részén kínálunk megvételre egy modern, tágas otthont, amely ideális választás nagycsaládosoknak és mindazoknak, akik a fényes, nagy tereket részesítik előnyben.

Telek mérete: 663 m²
Hasznos alapterület: nettó 222,3 m² (bruttó 285,78 m²)
Szintek száma: 2

Ez az önálló családi ház egy tökéletes választás Nappali+4 hálószobával rendelkezik, melyből kettő szülői hálóként lett tervezve saját fürdőszobával és gardróbbal, egy a földszinten egy pedig az emeleten.
További 2 fürdőszoba is a rendelkezésre áll egy a földszinten a vendégek számára egy pedig az emeleten a család többi részének.
Mind kivitelben mind a tervezéskor a legnagyobb kényelemre ügyelt a tulajdonos, hogy egy kivételes otthont tudjon építeni!

Műszaki tartalom:

    30-as Leier falazat 10 cm grafitos szigeteléssel

    lábazat 15 cm XPS szigeteléssel

    Belső falak 10 cm Leier téglából

    20 cm kőzetgyapot födémszigetelés

    Hőszivattyú mely  padlófűtéssel adja le a hőt

    3 rétegű, energiatakarékos nyílászárók

    Klíma a nappaliban, előkészítés igény esetén minden szoba

    Elektromos kapu

    napelem-előkészítés

    Beépített kamerarendszer és riasztó

A vételár tartalmazza:

    Melegburkolat 5.000 Ft/m² értékben

    Hidegburkolat 5.000 Ft/m² értékben

    Beltéri ajtó kilinccsel: 80.000 Ft/db

    Kád tartozékaival: 80.000 Ft/db

    Csaptelepek: 20.000 Ft/db

    Mosdók: 20.000 Ft/db

    Plusz vízkiállás: 50.000 Ft/db

    Villanykiállás: 30.000 Ft/db

    Kerti csap szerelve: 100.000 Ft/db

(A szaniterek és belső ajtók választhatók az aktuális készültségi foktól függően. Extra igények, módosítások előzetes egyeztetéssel kérhetők.)

Finanszírozás és átadás:

    3%-os hitelre is alkalmas

    Várható átadás: 2025. december 31.

    Teljes körű segítség: független hitelszakértő és megbízható ügyvédi háttér

Kivitelező:

A házat egy megbízható, tapasztalt kivitelező építi, aki számos referenciamunkával rendelkezik a környéken. A korábbi projektek személyesen is megtekinthetők, így az érdeklődők saját szemükkel győződhetnek meg a minőségről.

Hívjon a hét bármely napján, ha már látja magát ebben a csodás otthonban!

Hirdetés feltöltve: 2025. 10. 02. Utoljára módosítva: 2025. 11. 04.

Az ingatlan elhelyezkedése

Cím: Gyál

Eladó családi házak a környékről

Eladó családi ház
Eladó családi ház

Gyál

129.99 M Ft
5 szoba
135 m2
Eladó családi ház
Eladó családi ház

Gyál, Gyál út

169.9 M Ft
2 szoba
90 m2
Eladó családi ház
Eladó családi ház

Gyál

475 M Ft
10 szoba
620 m2
Eladó családi ház
Eladó családi ház

Kerepes

81.99 M Ft
5 szoba
102 m2
Eladó családi ház
Eladó családi ház

Gyál

99.9 M Ft
5 szoba
160 m2
Eladó családi ház
Eladó családi ház

Tahitótfalu

188 M Ft
7 szoba
280 m2
Eladó családi ház
Eladó családi ház

Gyál

475 M Ft
10 szoba
620 m2
Eladó családi ház
Eladó családi ház

Dunavarsány

69.9 M Ft
3 + 1 szoba
140 m2
Eladó családi ház
Eladó családi ház

Dunavarsány

46.9 M Ft
3 + 2 szoba
130 m2
Eladó családi ház
Eladó családi ház

Gyál

139 M Ft
5 + 1 szoba
164 m2
Eladó családi ház
Eladó családi ház

Sződ, Rátóti utca

149.99 M Ft
11 szoba
270 m2
Eladó családi ház
Eladó családi ház

Gyál, Árpád utca

89 M Ft
3 szoba
95 m2
Eladó családi ház
Eladó családi ház

Gyál

159.9 M Ft
5 szoba
158 m2
Eladó családi ház
Eladó családi ház

Budaörs, Odvshegy utca

268.9 M Ft
5 szoba
235 m2
Eladó családi ház
Eladó családi ház

Budakeszi, Budakeszi kertváros

229 M Ft
10 szoba
450 m2
Eladó családi ház
Eladó családi ház

Budakeszi, Makkosmária

100 M Ft
1 szoba
10 m2
Eladó családi ház
Eladó családi ház

Tápiószele

32.9 M Ft
4 szoba
200 m2
Eladó családi ház
Eladó családi ház

Gyál

130 M Ft
5 szoba
135 m2
Eladó családi ház
Eladó családi ház

Gyál

180 M Ft
7 szoba
350 m2
Eladó családi ház
Eladó családi ház

Gyál

159.9 M Ft
5 szoba
158 m2
Eladó családi ház
Eladó családi ház

Dunakeszi

250 M Ft
4 szoba
180 m2
Eladó családi ház
Eladó családi ház

Gyál

69.9 M Ft
4 szoba
117 m2
Eladó családi ház
Eladó családi ház

Gyál

159.9 M Ft
5 szoba
158 m2
Eladó családi ház
Eladó családi ház

Gyál, Gyál út

169.9 M Ft
2 szoba
90 m2

Falusi CSOK ingatlanok

Eladó családi ház
Eladó családi ház

Újléta

18.5 M Ft
2 szoba
63 m2
Eladó családi ház
Eladó családi ház

Gyékényes

29.99 M Ft
3 szoba
151 m2
Eladó téglalakás
Eladó téglalakás

Balatonszemes

125.2 M Ft
2 szoba
50 m2
Eladó családi ház
Eladó családi ház

Pusztamonostor

22 M Ft
3 szoba
86 m2
Eladó családi ház
Eladó családi ház

Mezőfalva

39 M Ft
3 szoba
77 m2
Eladó családi ház
Eladó családi ház

Nagyberény

24.9 M Ft
3 szoba
62 m2
Eladó téglalakás
Eladó téglalakás

Balatonszemes

244.5 M Ft
3 szoba
107 m2
Eladó családi ház
Eladó családi ház

Cece

23.5 M Ft
2 szoba
56 m2