City Pearl

Eladó családi ház
Gomba

+ 2 kép 1/5
127 000 000 Ft127 M Ft 920 290 Ft/m2
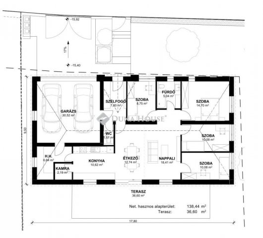
5 szoba
138 m²
építés éve:2026

Részletes adatok

Telekméret: 1000 m2
Fűtés: Egyéb
Energetikai besorolás: Nem adta meg a hirdető

Az OTP Bank lakáshitel ajánlataFizetett hirdetés

3629769712
Kovács Ildikó_
referens

Érdekel az OTP Bank kedvezményes lakáshitel ajánlata? *

* A kérdésre „Igen” válasz bejelölése esetén, az „Üzenet küldése” gombra kattintva kijelentem, hogy az OTP Bank Nyrt. Adatkezelési tájékoztatójának tartalmát megismertem és tudomásul vettem.

Eladó családi ház leírása

Eladásra kínálunk egy 2026-ban épülő, földszintes, 4 szoba + amerikai-konyhás nappalival rendelkező, napfényes, önálló családi házat, amely 2027 tavaszán kerül átadásra, 1000 nm-es telekkel!

Az otthon hőszivattyús fűtésrendszerrel, padlófűtéssel és elektromos törölközőszárító radiátorral a fürdőszobában rendelkezik.

A nappaliban split klíma került beépítésre.

Az udvarra belépve a szemet az utcafronti 3D kerítés, a térkövezett gyalogos és gépkocsi bejáró fogja meg. A gépkocsitárolásról szekcionált garázskapuval ellátott garázs gondoskodik, az elektromos nagykapu tovább növeli a kényelmet. Otthona környezete nemcsak szép, de biztonságos is, köszönhetően a megbízható kivitelezésnek és az elővigyázatosan megtervezett építési anyagoknak, mint a 30 cm vastag Porfix falak, a 15 cm vastag EPS hőszigetelés és a 30 cm vastag üveggyapot tetőhőszigetelés.

Az ingatlanban fehér műanyag 5 kamrás, 3 rétegű üvegezéssel ellátott ablakok garantálják a jó hőszigetelést és a fényáradatot. A belső terek kialakításához magas minőségű, bruttó 10.000 Ft/nm² értékű padló- és csempeburkolatok, valamint bruttó 80.000 Ft/db árú beltéri ajtók kerültek kiválasztásra.

Gomba település egy igazán csodálatos hely, ahol a nyugalom és a természet közelsége mellett a modern életvitel is helyet kap. Az itt épülő ingatlan lehetőséget kínál arra, hogy a város zajától távol, de mégis minden kényelmi szolgáltatáshoz közel élhessen. A kivételes panorámás kilátás, a szép környezet, valamint a kiemelkedő minőségű építkezés garantálja, hogy az új tulajdonosok életminőségben és komfortban egyaránt csak a legjobbat kapják. Gomba így nemcsak egy hely az otthonteremtéshez, hanem egy kapu a harmónikus és tartalmas élethez.

Hitelügyintézés, eladás és vétel teljes körű ügyintézése, ingyenes tanácsadás, értékbecslés, megbízható ügyvédi háttér biztosítása.

Az energetikai tanúsítvány készítése folyamatban van, amint rendelkezésre áll, úgy azzal a hirdetés frissítésre kerül.

Hívj, és nézzük meg együtt!!

Érd: Kovács Ildikó, tel: +36/20 317 5063, e-mail: ildiko.kovacs1@dh.hu

A megvásárláshoz hitelre van szüksége?

Segítünk!

Ügyfeleinket - együttműködő partnerünk - a Hitelcentrum Kft segíti a hitelügyintézés teljeskörű lebonyolításában. 12 bankkal állnak kapcsolatban, mely rugalmassá, kényelmessé, és gyorsabbá teszi hitelének ügyintézését, és biztosítja, hogy megismerhesse az Ön számára legkedvezőbb ajánlatot!

A szolgáltatás Vevőink számára ingyenes!

Ne tétovázzon, hívjon és nézzük meg együtt az ingatlant!

https://szabo-timea-orsolya.credipass.hu/

Referencia szám: HZ045641

Hirdetés feltöltve: 2026. 04. 08. Utoljára módosítva: 2026. 05. 19.

Az ingatlan elhelyezkedése

Cím: Gomba

Eladó családi házak a környékről

Budaörs
Eladó családi ház

Budaörs

400 M Ft
12 szoba
583 m²
Tápiószentmárton
Eladó családi ház

Tápiószentmárton

7.9 M Ft
2 + 1 szoba
86 m²
Budakeszi, Budakeszi kertváros
Eladó családi ház

Budakeszi

229 M Ft
10 szoba
450 m²
Tápiószele
Eladó családi ház

Tápiószele

11.9 M Ft
3 szoba
62 m²
Gomba
Eladó családi ház

Gomba

127 M Ft
5 szoba
142 m²
Tápiószele
Eladó családi ház

Tápiószele

37.9 M Ft
4 szoba
141 m²
Érd
Eladó családi ház

Érd

164.9 M Ft
5 szoba
192 m²
Budakeszi
Eladó családi ház

Budakeszi

130 M Ft
5 szoba
30 m²
Gomba
Eladó családi ház

Gomba

127 M Ft
5 szoba
142 m²
Gomba
Eladó családi ház

Gomba

147 M Ft
5 szoba
135 m²
Nagykáta
Eladó családi ház

Nagykáta

130 M Ft
3 szoba
203 m²
Gomba
Eladó családi ház

Gomba

49.9 M Ft
3 szoba
0 m²
Tápiógyörgye
Eladó családi ház

Tápiógyörgye

19.9 M Ft
3 szoba
65 m²
Dunakeszi
Eladó családi ház

Dunakeszi

250 M Ft
4 szoba
180 m²
Gomba
Eladó családi ház

Gomba

36.99 M Ft
2 szoba
70 m²
Gomba
Eladó családi ház

Gomba

127 M Ft
5 szoba
138 m²
Tápiószele
Eladó családi ház

Tápiószele

45 M Ft
6 szoba
360 m²
Gomba
Eladó családi ház

Gomba

127 M Ft
5 szoba
137 m²
Tápiószőlős
Eladó családi ház

Tápiószőlős

34.9 M Ft
5 szoba
210 m²
Gomba
Eladó családi ház

Gomba

48.5 M Ft
4 szoba
82 m²
Őrbottyán
Eladó családi ház

Őrbottyán

154 M Ft
4 + 1 szoba
115 m²
Gomba
Eladó családi ház

Gomba

49.9 M Ft
3 szoba
83 m²
Gomba
Eladó családi ház

Gomba

25 M Ft
1 szoba
64 m²
Gomba
Eladó családi ház

Gomba

127 M Ft
5 szoba
137 m²

Falusi CSOK ingatlanok

Hegyeshalom, Margaréta utca 12
Eladó téglalakás

Hegyeshalom

35.92 M Ft
1 szoba
31 m²
Balatonakali
Eladó ikerház

Balatonakali

550 M Ft
4 szoba
94 m²
Vép
Eladó családi ház

Vép

75.9 M Ft
5 szoba
150 m²
Verseg
Eladó családi ház

Verseg

69.9 M Ft
4 szoba
0 m²
Tihany
Eladó családi ház

Tihany

590 M Ft
8 szoba
340 m²
Szabadbattyán
Eladó családi ház

Szabadbattyán

139.9 M Ft
4 szoba
201 m²
Sződ
Eladó családi ház

Sződ

102.9 M Ft
4 szoba
92 m²
Pécsely
Eladó családi ház

Pécsely

85 M Ft
2 szoba
90 m²