Kedves Felhasználónk! Rendszerfrissítés miatt az oldalunk 2026. február 10-én 0 órától várhatóan 11 óráig nem lesz elérhető. Köszönjük megértésed!
Astora Márvány8

Eladó családi ház
Gödöllő

+ 17 kép 1/20
129 900 000 Ft129.9 M Ft 999 231 Ft/m2
3 szoba
130 m2
építés éve:1995

Részletes adatok

Állapot: Felújított
Telekméret: 500 m2
Fűtés: Gázkazán
Parkolás: Kocsibeálló
Energetikai besorolás: Nem adta meg a hirdető

Az OTP Bank lakáshitel ajánlataFizetett hirdetés

+36 70 490
Nagy Barbara
referens

Érdekel az OTP Bank kedvezményes lakáshitel ajánlata? *

* A kérdésre „Igen” válasz bejelölése esetén, az „Üzenet küldése” gombra kattintva kijelentem, hogy az OTP Bank Nyrt. Adatkezelési tájékoztatójának tartalmát megismertem és tudomásul vettem.

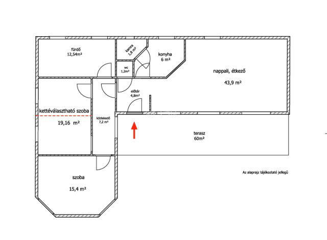
Eladó családi ház leírása

Eladásra kínálok Gödöllő kertvárosi részén egy önálló, felújított (2024.) családi házat.
Felosztása: amerikai konyhás nappali, 2 hálószoba, előtér, nagy méretű fürdőszoba mosdóval, különálló mosdó, spájz.
Mindezt 60 nm fedett terasz szegélyezi.

A házhoz 500 nm saját kert tartozik, az utcafront felől, előkerttel helyezkedik el. Az eredeti nagy méretű telek hátsó részén, egy nyaktaggal csatlakozó (ikresített) másik ház keül megépítésre, amely szintén önálló udvarral fog rendelkezni. és 4 méter széleskocsibejáró a megvételre kínált ház hátljánál fog húzódni, így biztosítva az intimitást.

Falazata 30-as téglából készült, amelyre 5cm dryvit került, az ablakok 3 rétegű favázas thermo üvegesek, elektromos redőnyökkel felszereltek, tetőszerkezete agyag cseréppel fedett, a födém szigetelve van.

Felújítása során prémium minőségű burkolatok, új nyílászárók, víz- és villanyvezetékek (+elosztódoboz) kerültek beépítésre. Az alap- és a szerelőbeton újra lett öntve, az aljzatot pedig 12cm vastag szigeteléssel, hőtükrös fóliával látták el. Falakat újra glettelték, festették és a helyiségek beépített gipszkarton állmennyezetet is kaptak LED világítással.

Fűtés: gázkazán
Melegvíz ellátás: villanybojler 120 l nagyságú.

Extrák:
- kamerarendszer
- riasztó
- 4 db klíma (2*6 és 2*3,5 kw)
- gondozásmentes alumínium kerítés, elektromos kapuval.
- locsolórendszer.

Mind autóval, mind gyalog kivló közlekedéssel bír.
Közelben bolt, iskola, óvoda, parkok, és minden, ami a mindennapi életvitelhez szükséges!

Birtokbavétel rövid határidővel!
Tekintsük meg együtt! ...TOVÁBBI, TÖBBEZRES INGATLAN KÍNÁLAT: www.gdn-ingatlan.hu - GDN azonosító: 391628

Hirdetés feltöltve: 2026. 01. 16. Utoljára módosítva: 2026. 01. 29.

3 szobás családi házak ára Gödöllőn

Ebből az összehasonlításból megtudhatod, hogyan viszonyul a lakás ára a környékbeli családi házak átlagos árához. Ez nem azt jelenti, hogy ennyivel olcsóbb vagy drágább, mint amennyit a lakás ér, hanem hogy ennyivel tér el a környékbeli átlagtól.

Ennek a m² ára
Gödöllő m² ár
999 e Ft
886 e Ft -13%
Ennek az ára
Gödöllő átlagár
129.9 M Ft m Ft
85.1 m Ft -53%

Az ingatlan elhelyezkedése

Cím: Gödöllő

Eladó családi házak a környékről

Eladó családi ház
Eladó családi ház

Dunakeszi

250 M Ft
4 szoba
180 m2
Eladó családi ház
Eladó családi ház

Gödöllő

279 M Ft
5 szoba
292 m2
Eladó családi ház
Eladó családi ház

Gödöllő

199 M Ft
14 szoba
516 m2
Eladó családi ház
Eladó családi ház

Nagykáta

130 M Ft
3 szoba
203 m2
Eladó családi ház
Eladó családi ház

Tápiószele

32.9 M Ft
4 szoba
200 m2
Eladó családi ház
Eladó családi ház

Érd

164.9 M Ft
5 szoba
192 m2
Eladó családi ház
Eladó családi ház

Budakeszi, Makkosmária

100 M Ft
1 szoba
10 m2
Eladó családi ház
Eladó családi ház

Kerepes

81.99 M Ft
5 szoba
102 m2
Eladó családi ház
Eladó családi ház

Gödöllő

279 M Ft
5 szoba
292 m2
Eladó családi ház
Eladó családi ház

Gödöllő

47 M Ft
4 szoba
70 m2
Eladó családi ház
Eladó családi ház

Tápiószentmárton

48 M Ft
5 szoba
180 m2
Eladó családi ház
Eladó családi ház

Tápiószele

11.9 M Ft
3 szoba
62 m2
Eladó családi ház
Eladó családi ház

Gödöllő

124.9 M Ft
5 szoba
235 m2
Eladó családi ház
Eladó családi ház

Tápiószele

37.9 M Ft
4 szoba
141 m2
Eladó családi ház
Eladó családi ház

Gödöllő

279 M Ft
5 szoba
292 m2
Eladó családi ház
Eladó családi ház

Remeteszőlős

399.9 M Ft
5 + 2 szoba
260 m2
Eladó családi ház
Eladó családi ház

Zebegény

69.9 M Ft
6 szoba
245 m2
Eladó családi ház
Eladó családi ház

Tápiószőlős

34.9 M Ft
5 szoba
210 m2
Eladó családi ház
Eladó családi ház

Gödöllő

199.9 M Ft
8 szoba
300 m2
Eladó családi ház
Eladó családi ház

Tápiószele

45 M Ft
6 szoba
360 m2
Eladó családi ház
Eladó családi ház

Gödöllő

124 M Ft
9 szoba
250 m2
Eladó családi ház
Eladó családi ház

Gödöllő

208 M Ft
8 szoba
341 m2
Eladó családi ház
Eladó családi ház

Kerepes

199 M Ft
6 szoba
360 m2
Eladó családi ház
Eladó családi ház

Budaörs

400 M Ft
12 szoba
583 m2

Falusi CSOK ingatlanok

Eladó családi ház
Eladó családi ház

Bakonyszentkirály

99.99 M Ft
5 szoba
126 m2
Eladó családi ház
Eladó családi ház

Bugac

18.5 M Ft
2 szoba
73 m2
Eladó családi ház
Eladó családi ház

Somogyszil

27.9 M Ft
3 szoba
140 m2
Eladó ikerház
Eladó ikerház

Balatonakali

370 M Ft
4 szoba
140 m2
Eladó családi ház
Eladó családi ház

Kaposgyarmat

695 M Ft
6 szoba
610 m2
Eladó panellakás
Eladó panellakás

Pétfürdő

49.9 M Ft
3 szoba
71 m2
Eladó családi ház
Eladó családi ház

Vajszló

21.49 M Ft
2 szoba
91 m2
Eladó családi ház
Eladó családi ház

Ivánc

13.5 M Ft
2 szoba
64 m2