BAM Living

Eladó családi ház
Gödöllő

+ 17 kép 1/20
184 000 000 Ft184 M Ft 408 889 Ft/m2
8 szoba
450 m2
építés éve:2002

Részletes adatok

Telekméret: 2631 m2
Fűtés: Gázkazán
Parkolás: Garázs
Energetikai besorolás: Nem adta meg a hirdető

Az OTP Bank lakáshitel ajánlataFizetett hirdetés

+36 30 960
Ludas Judit
referens

Érdekel az OTP Bank kedvezményes lakáshitel ajánlata? *

* A kérdésre „Igen” válasz bejelölése esetén, az „Üzenet küldése” gombra kattintva kijelentem, hogy az OTP Bank Nyrt. Adatkezelési tájékoztatójának tartalmát megismertem és tudomásul vettem.

Eladó családi ház leírása

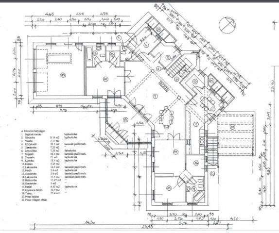
Gödöllő csendes, aszfaltozott utcájában, idilli környezetben, minőségi anyagokból megépített, IMPOZÁNS, 3 alternatív fűtési lehetőséggel rendelkező, TÖBB GENERÁCIÓS CSALÁDI HÁZ - 3 külön lakrésszel, télikerttel, két állásos garázzsal, boros pincével - ELADÓ!

Alapterület:
Földszint: 250 nm
Emelet : 100 nm
Pinceszint: 100 nm

Telekméret: 2 631 nm

Az ingatlanban hatalmas átriumos nappali, 8 szoba, 4 fürdőszoba, 3 konyha, télikert , külső kertkapcsolatos terasz, a pinceszinten mosókonyha, kazánház és tároló - háztartási helyiségek, a kertben boros pince szolgálja a lakók kényelmét.

A ház fűtése nagy teljesítményű vaillant gázkazánnal és/vagy szintén pémium minűségű faelgázosító kazánnal megoldott, a földszinten padlófűtéssel, az emeleten radiátoros hőleadással.
A fűtés helyiségenként külön szabályozható.
A hatalmas nappaliban kandalló, vagy cserépkályha bekötése is lehetséges, az ehhez szükséges impozáns kémény rendelkezésre áll.

Az ingatlan rendelkezik az önkormányzat által kiállított HATÓSÁGI igazolvánnyal a több lakóegységről, így kedvezményes díjjal igénybe vehető a gázszolgáltatás.

Az óriási, csodás növényzettel borított, már szépen beállt kertben jól esik a pihenés, valamint méreténél fogva számos további lehetőséget rejt magában: akár nagy méretű úszómedence, vagy egyéb építmény is létesíthető.
Beépíthetőség:25 %
Zöldterület mutató: 60%

Mind az ingatlan elhelyezkedése, mind pedig belső kialakítása több féle hasznosítási célra teszi alkalmassá:

A ház jelen formájában ideális akár 2-3 generáció együttélésére, de éppúgy jó választás szálláshely szolgáltatásban, vendéglátásban gondolkodók számára, vagy cégközpontnak, oktatási, - rendezvény helyszínnek.

Az eltelt évek során több generációnak is kényelmes otthonául szolgált és mai napig szolgál ez a ház, amely Gödöllő egyik legszebb városrészében, nyugodt, családi házas övezetben várja új tulajdonosát.

Kérem, hogy kérdéseivel és időpont egyeztetés céljából forduljon hozzám bizalommal.

ID:373086 ...TOVÁBBI, TÖBBEZRES INGATLAN KÍNÁLAT: www.gdn-ingatlan.hu - GDN azonosító: 390317

Hirdetés feltöltve: 2025. 12. 02.

Az ingatlan elhelyezkedése

Cím: Gödöllő

Eladó családi házak a környékről

Eladó családi ház
Eladó családi ház

Tahitótfalu

188 M Ft
7 szoba
280 m2
Eladó családi ház
Eladó családi ház

Tápiószele

37.9 M Ft
4 szoba
141 m2
Eladó családi ház
Eladó családi ház

Budaörs, Városközpont utca

119.5 M Ft
5 + 1 szoba
140 m2
Eladó családi ház
Eladó családi ház

Gödöllő, Haraszt, Táncsics Mihály út 74

159 M Ft
4 szoba
290 m2
Eladó családi ház
Eladó családi ház

Dunakeszi

250 M Ft
4 szoba
180 m2
Eladó családi ház
Eladó családi ház

Pécel, Reményik Sándor utca

296 M Ft
6 szoba
396 m2
Eladó családi ház
Eladó családi ház

Gödöllő

280 M Ft
7 szoba
336 m2
Eladó családi ház
Eladó családi ház

Gödöllő

79 M Ft
3 szoba
90 m2
Eladó családi ház
Eladó családi ház

Gödöllő

279 M Ft
5 szoba
292 m2
Eladó családi ház
Eladó családi ház

Kerepes

81.99 M Ft
5 szoba
102 m2
Eladó családi ház
Eladó családi ház

Gödöllő

124 M Ft
9 szoba
250 m2
Eladó családi ház
Eladó családi ház

Leányfalu

237 M Ft
9 szoba
800 m2
Eladó családi ház
Eladó családi ház

Remeteszőlős

399.9 M Ft
5 + 2 szoba
260 m2
Eladó családi ház
Eladó családi ház

Gödöllő

165 M Ft
8 szoba
275 m2
Eladó családi ház
Eladó családi ház

Tápiószentmárton

7.9 M Ft
2 + 1 szoba
86 m2
Eladó családi ház
Eladó családi ház

Gödöllő

55 M Ft
2 + 1 szoba
63 m2
Eladó családi ház
Eladó családi ház

Gödöllő

208 M Ft
8 szoba
341 m2
Eladó családi ház
Eladó családi ház

Tápiószentmárton

48 M Ft
5 szoba
180 m2
Eladó családi ház
Eladó családi ház

Budakeszi, Makkosmária

100 M Ft
1 szoba
10 m2
Eladó családi ház
Eladó családi ház

Dunavarsány

49.9 M Ft
3 + 2 szoba
130 m2
Eladó családi ház
Eladó családi ház

Dunavarsány

69.9 M Ft
3 + 1 szoba
140 m2
Eladó családi ház
Eladó családi ház

Gödöllő

279 M Ft
5 szoba
292 m2
Eladó családi ház
Eladó családi ház

Sződ, Rátóti utca

149.99 M Ft
11 szoba
270 m2
Eladó családi ház
Eladó családi ház

Gödöllő

329.85 M Ft
6 szoba
393 m2

Falusi CSOK ingatlanok

Eladó családi ház
Eladó családi ház

Mencshely

99 M Ft
3 szoba
126 m2
Eladó családi ház
Eladó családi ház

Somogygeszti

10.9 M Ft
2 szoba
115 m2
Eladó családi ház
Eladó családi ház

Törtel

25.9 M Ft
5 szoba
95 m2
Eladó családi ház
Eladó családi ház

Hernádnémeti

18.9 M Ft
2 szoba
62 m2
Eladó családi ház
Eladó családi ház

Szabadbattyán

136 M Ft
5 szoba
226 m2
Eladó családi ház
Eladó családi ház

Somogygeszti

38.6 M Ft
3 + 1 szoba
98 m2
Eladó családi ház
Eladó családi ház

Gersekarát, Dózsa György utca

6 M Ft
3 szoba
58 m2
Eladó családi ház
Eladó családi ház

Sükösd

18.5 M Ft
3 szoba
89 m2