BAM Living

Eladó családi ház
Gerjen

Figyelem!

Ez az ingatlan a 2019.07.01-től induló falusi CSOK által támogatott településen található

+ 15 kép 1/18
49 900 000 Ft49.9 M Ft 470 755 Ft/m2
3 szoba
106 m²
építés éve:1963

Részletes adatok

Telekméret: 754 m2
Fűtés: Egyéb
Energetikai besorolás: Nem adta meg a hirdető

Az OTP Bank lakáshitel ajánlataFizetett hirdetés

+36 70 421
Nagy Kata
HOUSE36 Ingatlanbázis Kft.

Érdekel az OTP Bank kedvezményes lakáshitel ajánlata? *

* A kérdésre „Igen” válasz bejelölése esetén, az „Üzenet küldése” gombra kattintva kijelentem, hogy az OTP Bank Nyrt. Adatkezelési tájékoztatójának tartalmát megismertem és tudomásul vettem.

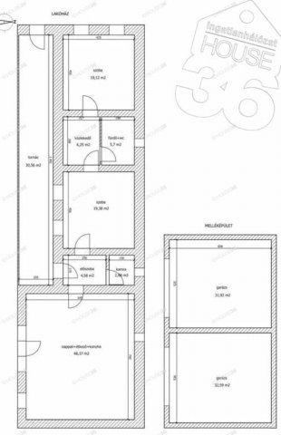
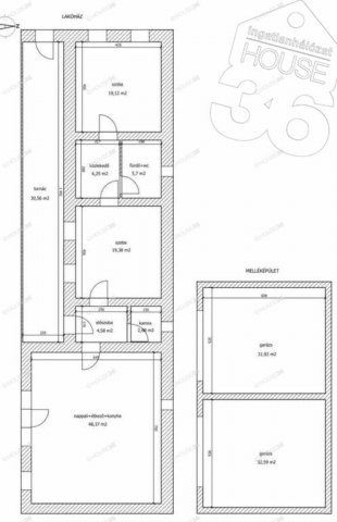
Eladó családi ház leírása

Az ingatlan vegyes falazatú, teljesen víz szigetelt ház, 2021-ben teljes körű felújításon esett át: új gipszkarton burkolat, korszerű nyílászárók – az otthon modern és energiatakarékos. A teljes lakótér 106,4 m2.

Az elrendezés kényelmes és praktikus:
∙ Tágas nappali kőburkolattal és kandallóval
∙ 2 további szoba meleg hangulatú hajópadlóval
∙ Fürdőszoba kőburkolattal

A fűtésről Baxi gázkazán gondoskodik, amelyet elektromos padlófűtés egészít ki. Nyáron a beépített légkondicionáló biztosítja a kellemes hőmérsékletet – télen és nyáron egyaránt kényelmes az élet ebben az otthonban.

Az ingatlan 754 m2-es telekrészen terül el, a teljes telek 1421 m²-es, két helyrajzi számon nyilvántartott dupla telek (a másik 667 m²). A telkek megosztása az eladás feltételei között egyeztethető.

Gerjen az elmúlt években jelentős fejlődésen ment át: új utak épültek, és átadták az új kalocsai Duna-hidat, amely komolyan felértékeli a térség közlekedési és gazdasági lehetőségeit. A közeli Paks (Paksi Atomerőmű, épülő Paks II.), valamint Szekszárd és Kalocsa gyors elérhetősége miatt a terület vonzereje folyamatosan nő.

A HOUSE36 kínálatában található összes ingatlannal kapcsolatban tudok felvilágosítást nyújtani!
További képekért és információért hívjon bizalommal!
Szolgáltatásaink Kereső ügyfeleink számára INGYENESEK! Amennyiben ELADÓ INGATLANA VAN, vagy FINANSZÍROZÁSI MEGOLDÁST KERES, hívjon, megtaláljuk a legjobb lehetőséget! HITELSPECIALISTÁNK MINDENBEN SEGÍT, irodánkban ez a szolgáltatás INGYENES!

Figyelem az adatlap megbízónktól kapott adatok alapján készült, pontosságáért felelősséget nem tudunk vállalni!
Az iroda legfrissebb, aktuális kínálatát a HOUSE36 saját weboldalán találja!

Hirdetés feltöltve: 2026. 03. 17. Utoljára módosítva: 2026. 04. 01.

Az ingatlan elhelyezkedése

Cím: Gerjen

Eladó ingatlanok a környékről

Fadd, Széchenyi utca
Eladó családi ház

Fadd

25.99 M Ft
4 szoba
200 m²
Szekszárd, Bakta, Alisca utca
Eladó panellakás

Szekszárd

60 M Ft
3 szoba
71 m²
Szekszárd, Bakta, Béri Balogh Ádám utca
Eladó panellakás

Szekszárd

32 M Ft
2 szoba
49 m²
Bölcske
Eladó családi ház

Bölcske

49.999 M Ft
2 szoba
120 m²
Szekszárd
Eladó téglalakás

Szekszárd

85 M Ft
3 szoba
95 m²
Szekszárd
Eladó telek

Szekszárd

19.9 M Ft
2571 m²
0 m²
Gerjen, Bocskai utca
Eladó családi ház

Gerjen

34.9 M Ft
3 szoba
111 m²
Dombóvár
Eladó családi ház

Dombóvár

9.9 M Ft
3 szoba
70 m²
Dunaföldvár
Eladó családi ház

Dunaföldvár

79.5 M Ft
4 szoba
151 m²
Szekszárd
Eladó téglalakás

Szekszárd

38.9 M Ft
2 szoba
53 m²
Bölcske, Havasi pincesor
Eladó mezogazdasagi ingatlan

Bölcske

9.9 M Ft
108 m²
0 m²
Bonyhád, István utca
Eladó családi ház

Bonyhád

120 M Ft
1 szoba
210 m²
Gerjen
Eladó családi ház

Gerjen

49.9 M Ft
3 szoba
106 m²
Szekszárd
Eladó panellakás

Szekszárd

29.9 M Ft
2 + 1 szoba
56 m²
Szekszárd
Eladó családi ház

Szekszárd

12.5 M Ft
1 szoba
41 m²
Tamási
Eladó családi ház

Tamási

41 M Ft
4 + 2 szoba
150 m²
Paks
Eladó családi ház

Paks

20 M Ft
3 szoba
88 m²
Paks
Eladó családi ház

Paks

39.9 M Ft
3 szoba
75 m²
Nagyszokoly
Eladó családi ház

Nagyszokoly

14.5 M Ft
3 szoba
80 m²
Szekszárd, Bakta, Béri Balogh Ádám utca
Eladó panellakás

Szekszárd

42 M Ft
3 szoba
60 m²
Nagymányok
Eladó telek

Nagymányok

4.5 M Ft
1202 m²
0 m²
Paks
Eladó családi ház

Paks

11.9 M Ft
1 szoba
45 m²
Gerjen
Eladó családi ház

Gerjen

59.9 M Ft
2 szoba
60 m²
Szekszárd, Bakta, Béri Balogh Ádám utca
Eladó panellakás

Szekszárd

32 M Ft
2 szoba
49 m²

Falusi CSOK ingatlanok

Újlengyel
Eladó családi ház

Újlengyel

110 M Ft
4 szoba
121 m²
Andornaktálya
Eladó családi ház

Andornaktálya

35.9 M Ft
2 szoba
60 m²
Gesztely
Eladó családi ház

Gesztely

34.9 M Ft
3 szoba
95 m²
Baks
Eladó családi ház

Baks

18.9 M Ft
3 szoba
118 m²
Kéthely
Eladó családi ház

Kéthely

141.425 M Ft
4 szoba
163 m²
Tornyiszentmiklós, Kossuth Lajos utca
Eladó családi ház

Tornyiszentmiklós

29.9 M Ft
3 szoba
110 m²
Bag
Eladó családi ház

Bag

16.9 M Ft
6 szoba
160 m²
Sződ
Eladó családi ház

Sződ

116 M Ft
5 szoba
136 m²

Falusi CSOK ingatlanok

Nagybaracska
Eladó családi ház

Nagybaracska

35 M Ft
3 szoba
110 m²
Cece
Eladó családi ház

Cece

69.8 M Ft
4 szoba
215 m²
Pusztakovácsi, Fő utca
Eladó családi ház

Pusztakovácsi

14.99 M Ft
2 szoba
2000 m²
Osztopán, Hunyadi János utca
Eladó családi ház

Osztopán

9.9 M Ft
1 szoba
50 m²
Bag
Eladó ikerház

Bag

93 M Ft
3 szoba
68 m²
Bag
Eladó családi ház

Bag

16.9 M Ft
6 szoba
160 m²
Badacsonytomaj
Eladó családi ház

Badacsonytomaj

285 M Ft
4 szoba
230 m²
Pécsvárad
Eladó családi ház

Pécsvárad

140 M Ft
4 + 1 szoba
119 m²