Eladó családi ház
Gárdony

+ 17 kép 1/20
35 000 000 Ft35 M Ft 357 143 Ft/m2
3 szoba
98 m2
építés éve:1950

Részletes adatok

Állapot: Felújítandó
Telekméret: 1452 m2
Fűtés: Egyéb
Energetikai besorolás: Nem adta meg a hirdető

Az OTP Bank lakáshitel ajánlataFizetett hirdetés

+36 20 487
Darnai Henrietta
referens

Érdekel az OTP Bank kedvezményes lakáshitel ajánlata? *

* A kérdésre „Igen” válasz bejelölése esetén, az „Üzenet küldése” gombra kattintva kijelentem, hogy az OTP Bank Nyrt. Adatkezelési tájékoztatójának tartalmát megismertem és tudomásul vettem.

Eladó családi ház leírása

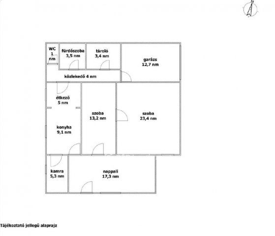
Fejér megye, Gárdony, Dinnyés településen 98 nm-es családi ház eladó. A felújítandó vagy bontandó lakóingatlan egy 1452-es telken helyezkedik el közel a vasútállomáshoz. A tehermentes házban nappali, 2 szoba, konyha, étkező, kamra, fürdőszoba, külön WC és tároló található, valamint tartozik hozzá 12,7 nm-es garázs, 8 nm-es pince és egy 23 nm-es melléképület. Az épület falazata vályog és részben tégla. A közművek közül a víz, villany és a csatorna bevezetve a házba, gáz nincsen. A fűtésről vegyes tüzelésű kazán gondoskodik. A vasútállomás, buszmegálló, bolt séta távolságra találhatóak. Az ingatlanban rengeteg lehetőség rejlik, több szoba kialakítható, ráfordítással egy hangulatos családi házat alakíthat ki a Velencei tó közelében. Teljes körű ügyintézésben segítjük ügyfeleinket díjtalanul: Falusi CSOK, CSOK igénylése, kedvezményes hitel mobil bankári szolgáltatással, adásvétel teljes lebonyolításával. Bővebb információkért, kérem keressen bizalommal, akár hétvégén is.

Hirdetés feltöltve: 2025. 10. 16.

3 szobás családi házak ára Gárdonyban

Ebből az összehasonlításból megtudhatod, hogyan viszonyul a lakás ára a környékbeli családi házak átlagos árához. Ez nem azt jelenti, hogy ennyivel olcsóbb vagy drágább, mint amennyit a lakás ér, hanem hogy ennyivel tér el a környékbeli átlagtól.

Ennek a m² ára
Gárdony m² ár
357 e Ft
774 e Ft 54%
Ennek az ára
Gárdony átlagár
35 M Ft m Ft
55.1 m Ft 37%

Az ingatlan elhelyezkedése

Cím: Gárdony

Eladó családi házak a környékről

Eladó családi ház
Eladó családi ház

Pusztaszabolcs

143.9 M Ft
4 szoba
149 m2
Eladó családi ház
Eladó családi ház

Pusztavám

22.9 M Ft
3 szoba
103 m2
Eladó családi ház
Eladó családi ház

Bakonycsernye

39 M Ft
3 szoba
350 m2
Eladó családi ház
Eladó családi ház

Gárdony, Számozott utca utca

65 M Ft
3 + 2 szoba
80 m2
Eladó családi ház
Eladó családi ház

Mór

110 M Ft
12 szoba
340 m2
Eladó családi ház
Eladó családi ház

Székesfehérvár

64.9 M Ft
5 szoba
144 m2
Eladó családi ház
Eladó családi ház

Gárdony, Vak Bottyán utca

139 M Ft
6 szoba
208 m2
Eladó családi ház
Eladó családi ház

Székesfehérvár

59 M Ft
3 szoba
100 m2
Eladó családi ház
Eladó családi ház

Gárdony, Álmos Vezér utca

89.5 M Ft
3 + 2 szoba
111 m2
Eladó családi ház
Eladó családi ház

Kápolnásnyék, Bem utca

108.675 M Ft
5 szoba
136 m2
Eladó családi ház
Eladó családi ház

Székesfehérvár

69.9 M Ft
3 szoba
95 m2
Eladó családi ház
Eladó családi ház

Gárdony

125 M Ft
4 szoba
116 m2
Eladó családi ház
Eladó családi ház

Gárdony

54 M Ft
4 szoba
85 m2
Eladó családi ház
Eladó családi ház

Gárdony

154.9 M Ft
7 szoba
196 m2
Eladó családi ház
Eladó családi ház

Gárdony

254.77 M Ft
4 szoba
275 m2
Eladó családi ház
Eladó családi ház

Gárdony, Gárdonyi Géza utca

59 M Ft
3 szoba
100 m2
Eladó családi ház
Eladó családi ház

Pusztaszabolcs, István utca

69.5 M Ft
4 szoba
149 m2
Eladó családi ház
Eladó családi ház

Baracska, Határ utca

74.9 M Ft
3 szoba
155 m2
Eladó családi ház
Eladó családi ház

Kápolnásnyék, Bem utca

119.175 M Ft
5 szoba
156 m2
Eladó családi ház
Eladó családi ház

Mezőfalva

48 M Ft
3 + 2 szoba
133 m2
Eladó családi ház
Eladó családi ház

Gárdony

115 M Ft
2 + 2 szoba
116 m2
Eladó családi ház
Eladó családi ház

Sárbogárd, Tinódy utca

19.9 M Ft
3 szoba
75 m2
Eladó családi ház
Eladó családi ház

Gárdony

47.5 M Ft
2 szoba
56 m2
Eladó családi ház
Eladó családi ház

Vál

86.912 M Ft
4 szoba
80 m2

Falusi CSOK ingatlanok

Eladó családi ház
Eladó családi ház

Rédics

49.9 M Ft
3 szoba
107 m2
Eladó családi ház
Eladó családi ház

Nagyhegyes

47.9 M Ft
2 szoba
72 m2
Eladó családi ház
Eladó családi ház

Balatonfenyves

199 M Ft
5 szoba
210 m2
Eladó családi ház
Eladó családi ház

Tápióság

29.9 M Ft
2 szoba
65 m2
Eladó családi ház
Eladó családi ház

Fonyód

495 M Ft
5 szoba
149 m2
Eladó családi ház
Eladó családi ház

Ceglédbercel

23 M Ft
2 + 1 szoba
80 m2
Eladó családi ház
Eladó családi ház

Ceglédbercel

45 M Ft
2 + 1 szoba
127 m2
Eladó családi ház
Eladó családi ház

Vaskút

76 M Ft
3 szoba
120 m2