Stay Family Park

Eladó családi ház
Felsőzsolca

+ 8 kép 1/11
30 400 000 Ft30.4 M Ft 394 805 Ft/m2
2 szoba
77 m2

Részletes adatok

Állapot: Felújítandó
Telekméret: 1479 m2
Fűtés: Egyéb
Energetikai besorolás: Nem adta meg a hirdető

Az OTP Bank lakáshitel ajánlataFizetett hirdetés

+36 70 411
Budai Viktória
referens

Érdekel az OTP Bank kedvezményes lakáshitel ajánlata? *

* A kérdésre „Igen” válasz bejelölése esetén, az „Üzenet küldése” gombra kattintva kijelentem, hogy az OTP Bank Nyrt. Adatkezelési tájékoztatójának tartalmát megismertem és tudomásul vettem.

Eladó családi ház leírása

Eladó családi ház Felsőzsolcán, Miskolc mellett!

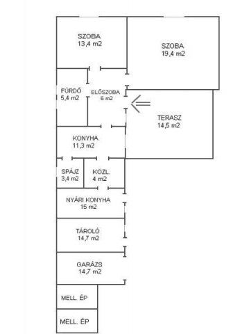
Felsőzsolca frekventált részén kínálunk megvásárlásra egy 77 m²-es, 2 szobás, jó elosztású családi házat. Az ingatlan felújítandó állapotban van, így új tulajdonosa teljes mértékben a saját igényei és stílusa szerint alakíthatja ki álmai otthonát.

Az elhelyezkedés kimagaslóan kedvező:

Buszmegálló 100 méterre

A közelben bölcsőde, óvoda, iskola

Több élelmiszerbolt és szolgáltatás is megtalálható a településen

Miskolc közelsége számtalan további lehetőséget biztosít munkához, tanuláshoz és szórakozáshoz

Az ingatlan építőanyaga: salak, tégla és szilikát. Tetőszerkezete jó állapotban van, cserépfedéssel és csapadékvíz-elvezető csatornával ellátva. A konyhából a terasz felé nagyobb nyílászáró beépítésével a térérzet jelentősen növelhető, így világosabb és tágasabb hatású helyiség alakítható ki. A terasz igény szerint beépíthető, üvegfallal vagy nagyméretű nyílászárókkal, így egy napfényes, otthonos nappali hozható létre.

Az ingatlan jól alakítható, alaprajza miatt ideális választás lehet családoknak és befektetőknek egyaránt. Összkomfortos, jelenleg 2 szoba, 2 konyhai helyiség és egy fürdőszoba, spájz található benne, a víz- és szennyvízhálózat pedig teljes mértékben be van kötve. A ház folytatásában tároló kapott helyet, amelyből pince nyílik a nyári konyha alá, valamint található egy garázs is. A melléképületek között állattartásra alkalmas helyiségek is rendelkezésre állnak, melyek szilikátból épültek, biztosítva a masszív és időtálló szerkezetet.

A közel 1500 m²-es kertben több gyümölcsfa is megtalálható, a telek nagysága pedig további lehetőségeket kínál építkezésre vagy bővítésre.

Amennyiben az ingatlan felkeltette figyelmét, hívjon bizalommal, hitelügyintézésben is készséggel állok rendelkezésére!

Hirdetés feltöltve: 2025. 10. 14. Utoljára módosítva: 2025. 11. 28.

2 szobás családi házak ára Felsőzsolcán

Ebből az összehasonlításból megtudhatod, hogyan viszonyul a lakás ára a környékbeli családi házak átlagos árához. Ez nem azt jelenti, hogy ennyivel olcsóbb vagy drágább, mint amennyit a lakás ér, hanem hogy ennyivel tér el a környékbeli átlagtól.

Ennek a m² ára
Felsőzsolca m² ár
395 e Ft
510 e Ft 23%
Ennek az ára
Felsőzsolca átlagár
30.4 M Ft m Ft
72.9 m Ft 58%

Az ingatlan elhelyezkedése

Cím: Felsőzsolca

Eladó családi házak a környékről

Eladó családi ház
Eladó családi ház

Felsőzsolca

74.99 M Ft
5 szoba
145 m2
Eladó családi ház
Eladó családi ház

Felsőzsolca

58.9 M Ft
3 + 3 szoba
108 m2
Eladó családi ház
Eladó családi ház

Felsőzsolca

85 M Ft
5 szoba
214 m2
Eladó családi ház
Eladó családi ház

Gönc

26 M Ft
3 szoba
130 m2
Eladó családi ház
Eladó családi ház

Felsőzsolca

85 M Ft
5 szoba
214 m2
Eladó családi ház
Eladó családi ház

Felsőzsolca

119 M Ft
7 szoba
316 m2
Eladó családi ház
Eladó családi ház

Tiszalúc

19.9 M Ft
4 szoba
180 m2
Eladó családi ház
Eladó családi ház

Felsőzsolca

77 M Ft
3 szoba
100 m2
Eladó családi ház
Eladó családi ház

Miskolc

149 M Ft
4 szoba
463 m2
Eladó családi ház
Eladó családi ház

Ózd, Ózd falu, 48-as út

39.9 M Ft
3 + 1 szoba
300 m2
Eladó családi ház
Eladó családi ház

Kurityán

15.8 M Ft
3 szoba
68 m2
Eladó családi ház
Eladó családi ház

Ózd

26.5 M Ft
3 szoba
100 m2
Eladó családi ház
Eladó családi ház

Felsőzsolca

84.99 M Ft
4 szoba
250 m2
Eladó családi ház
Eladó családi ház

Ónod, Nyéki utca

20.7 M Ft
2 + 1 szoba
90 m2
Eladó családi ház
Eladó családi ház

Felsőzsolca

58.9 M Ft
3 + 3 szoba
108 m2
Eladó családi ház
Eladó családi ház

Felsőzsolca

77 M Ft
3 szoba
100 m2
Eladó családi ház
Eladó családi ház

Szikszó

89.9 M Ft
3 szoba
100 m2
Eladó családi ház
Eladó családi ház

Ózd

15 M Ft
7 szoba
225 m2
Eladó családi ház
Eladó családi ház

Tiszalúc, Alkotmány utca

16.9 M Ft
4 szoba
137 m2
Eladó családi ház
Eladó családi ház

Felsőzsolca

58.9 M Ft
3 + 3 szoba
108 m2
Eladó családi ház
Eladó családi ház

Miskolc

25.9 M Ft
4 szoba
148 m2
Eladó családi ház
Eladó családi ház

Gönc

20.5 M Ft
2 szoba
80 m2
Eladó családi ház
Eladó családi ház

Ózd

14.7 M Ft
3 szoba
95 m2
Eladó családi ház
Eladó családi ház

Felsőzsolca

99.9 M Ft
3 + 1 szoba
145 m2

Falusi CSOK ingatlanok

Eladó családi ház
Eladó családi ház

Balogunyom, Petőfi Sándor utca

74.9 M Ft
4 szoba
242 m2
Eladó családi ház
Eladó családi ház

Hegyhátsál

39.9 M Ft
3 szoba
122 m2
Eladó családi ház
Eladó családi ház

Vitnyéd, Petőfi Sándor utca 3

16.71 M Ft
1 + 1 szoba
99 m2
Eladó családi ház
Eladó családi ház

Enese

72.025 M Ft
4 szoba
75 m2
Eladó családi ház
Eladó családi ház

Somogygeszti

38.6 M Ft
3 + 1 szoba
98 m2
Eladó családi ház
Eladó családi ház

Dunaszekcső

27.5 M Ft
3 szoba
128 m2
Eladó családi ház
Eladó családi ház

Tanakajd

17.9 M Ft
3 szoba
61 m2
Eladó családi ház
Eladó családi ház

Balatonfenyves

430 M Ft
4 szoba
274 m2