River Life

Eladó családi ház
Érd

+ 5 kép 1/8
120 000 000 Ft120 M Ft 1 142 857 Ft/m2
4 szoba
105 m²
építés éve:2026

Részletes adatok

Telekméret: 1086 m2
Fűtés: Egyéb
Parkolás: Kocsibeálló
Energetikai besorolás: A

Az OTP Bank lakáshitel ajánlataFizetett hirdetés

+36 30 887
Forster Tamás
referens

Érdekel az OTP Bank kedvezményes lakáshitel ajánlata? *

* A kérdésre „Igen” válasz bejelölése esetén, az „Üzenet küldése” gombra kattintva kijelentem, hogy az OTP Bank Nyrt. Adatkezelési tájékoztatójának tartalmát megismertem és tudomásul vettem.

Eladó családi ház leírása

Ha eddig minden háznál hiányzott valami… itt nem fog

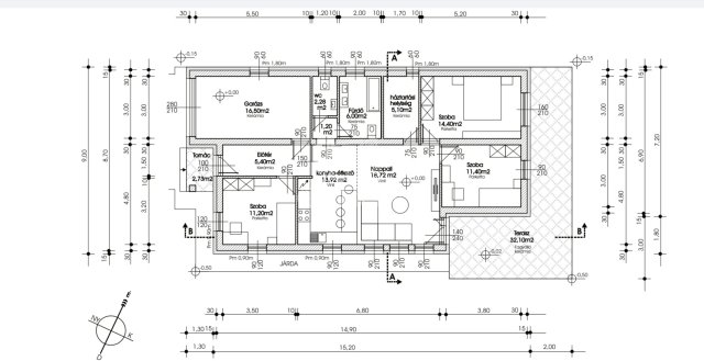
A 135 m²-es családi ház egy 1086 m²-es telken valósul meg, ahol a belső kialakítás és a kertkapcsolat egyaránt a kényelmes, hosszú távon is szerethető életet szolgálja. A keleti tájolásnak köszönhetően a nappali már reggel természetes fénnyel telik meg, a kertre néző kilátás pedig valódi nyugalmat ad a mindennapokhoz.

A 32 m²-es nappali–konyha–étkező a ház központja: tágas, jól berendezhető, közvetlen kapcsolattal a teraszhoz. A három külön nyíló szoba ideális családi elrendezést biztosít, míg a háztartási helyiség és a külön WC a praktikumot erősíti.
A fedett terasz és tornác nem csupán kiegészítő tér, valódi átmenet a belső és külső élettér között.

Műszaki tartalom, ami kiemeli a kategóriából
- korszerű hőszivattyús rendszer
- padló-, fal- és mennyezetfűtés – egyenletes, komfortos hőérzet
- energiatakarékos melegvíz-előállítás hőszivattyúval
- “A” energetikai besorolás
- 2,8 m belmagasság – tágas, levegős terek
- modern műanyag nyílászárók, 3 rétegű üvegezéssel
- időtálló tégla szerkezet, cseréptetővel
- esővízgyűjtő rendszer

A belső kialakításnál a hangsúly a személyre szabhatóságon van: a burkolatok, ajtók és részletek egy előre meghatározott értékhatárig választhatók, így az otthon valóban a leendő tulajdonos stílusára formálható.

Kényelmi extrák:
- saját garázs közvetlen kapcsolattal
- külön háztartási helyiség
- praktikus közlekedők, jól szeparált terek
- kertre néző, privát elhelyezkedés

Ami igazán megkülönbözteti:
A nagy méretű telek ritkaság ebben a kategóriában: itt valódi életteret kapsz, ahol a kert a mindennapok aktív része.

Várható átadás: 2026
A beruházást megbízható, több referenciával rendelkező kivitelező valósítja meg, kiemelt műszaki tartalommal és magas minőségű kivitelezéssel.

Az ingatlan jelenleg építés alatt áll, így a leendő tulajdonos még több ponton személyre szabhatja az otthonát.

A várható átadás ütemezése a kivitelezés előrehaladásától és az értékesítés ütemétől függ, így részletekért kérje személyes tájékoztatásunkat.

Ez az ingatlan ideális választás azok számára, akik új építésű, energiatakarékos, hosszú távon is értékálló otthont keresnek, nagy telekkel és jól átgondolt belső struktúrával. ...TOVÁBBI, TÖBBEZRES INGATLAN KÍNÁLAT: www.gdn-ingatlan.hu - GDN azonosító: 394298

Hirdetés feltöltve: 2026. 04. 01. Utoljára módosítva: 2026. 04. 02.

4 szobás családi házak ára Érden

Ebből az összehasonlításból megtudhatod, hogyan viszonyul a lakás ára a környékbeli családi házak átlagos árához. Ez nem azt jelenti, hogy ennyivel olcsóbb vagy drágább, mint amennyit a lakás ér, hanem hogy ennyivel tér el a környékbeli átlagtól.

Ennek a m² ára
Érd m² ár
1143 e Ft
1005 e Ft -14%
Ennek az ára
Érd átlagár
120 M Ft m Ft
143.4 m Ft 16%

Az ingatlan elhelyezkedése

Cím: Érd

Eladó családi házak a környékről

Budaörs
Eladó családi ház

Budaörs

400 M Ft
12 szoba
583 m²
Zebegény
Eladó családi ház

Zebegény

69.9 M Ft
6 szoba
245 m²
Őrbottyán
Eladó családi ház

Őrbottyán

154 M Ft
4 + 1 szoba
115 m²
Érd
Eladó családi ház

Érd

115 M Ft
122 m²
Érd
Eladó családi ház

Érd

129 M Ft
4 szoba
150 m²
Tápiószentmárton
Eladó családi ház

Tápiószentmárton

16.5 M Ft
3 szoba
50 m²
Kerepes
Eladó családi ház

Kerepes

199 M Ft
6 szoba
360 m²
Érd
Eladó családi ház

Érd

244 M Ft
5 szoba
175 m²
Érd
Eladó családi ház

Érd

189.7 M Ft
5 szoba
204 m²
Budakeszi
Eladó családi ház

Budakeszi

130 M Ft
5 szoba
30 m²
Érd
Eladó családi ház

Érd

85 M Ft
4 szoba
130 m²
Érd
Eladó családi ház

Érd

160 M Ft
7 szoba
250 m²
Budakeszi, Makkosmária
Eladó családi ház

Budakeszi

100 M Ft
1 szoba
10 m²
Tápiószele
Eladó családi ház

Tápiószele

37.9 M Ft
4 szoba
141 m²
Remeteszőlős
Eladó családi ház

Remeteszőlős

399.9 M Ft
5 + 2 szoba
260 m²
Tápiószele
Eladó családi ház

Tápiószele

11.9 M Ft
3 szoba
62 m²
Érd
Eladó családi ház

Érd

249.99 M Ft
6 szoba
210 m²
Érd
Eladó családi ház

Érd

110 M Ft
6 szoba
140 m²
Tápiógyörgye
Eladó családi ház

Tápiógyörgye

19.9 M Ft
3 szoba
65 m²
Tápiószentmárton
Eladó családi ház

Tápiószentmárton

48 M Ft
5 szoba
180 m²
Érd, Érdliget - Kutyavár, Liliom utca
Eladó családi ház

Érd

300 M Ft
3 szoba
184 m²
Budakeszi, Budakeszi kertváros
Eladó családi ház

Budakeszi

229 M Ft
10 szoba
450 m²
Érd, Parkváros, Visegrádi utca
Eladó családi ház

Érd

159.9 M Ft
5 szoba
165 m²
Érd, Érdliget - Kutyavár, Érd-liget
Eladó családi ház

Érd

230 M Ft
7 szoba
280 m²

Falusi CSOK ingatlanok

Tornyiszentmiklós
Eladó családi ház

Tornyiszentmiklós

29.9 M Ft
3 szoba
110 m²
Verseg
Eladó családi ház

Verseg

50 M Ft
2 szoba
92 m²
Somogyszentpál
Eladó családi ház

Somogyszentpál

25.3 M Ft
3 szoba
80 m²
Perőcsény
Eladó családi ház

Perőcsény

59 M Ft
3 szoba
128 m²
Szentgál
Eladó családi ház

Szentgál

29.9 M Ft
4 szoba
70 m²
Mályi
Eladó családi ház

Mályi

35 M Ft
3 szoba
115 m²
Kálmánháza
Eladó családi ház

Kálmánháza

65 M Ft
3 + 1 szoba
151 m²
Mesztegnyő
Eladó családi ház

Mesztegnyő

125 M Ft
3 szoba
450 m²