Astora Olive Club House

Eladó családi ház
Érd

+ 16 kép 1/19
149 999 000 Ft149.999 M Ft 837 983 Ft/m2
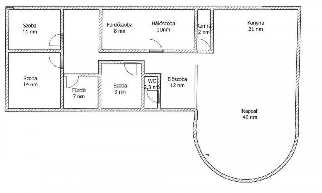
5 szoba
179 m2
építés éve:2004

Részletes adatok

Telekméret: 836 m2
Fűtés: Gázkazán
Energetikai besorolás: Nem adta meg a hirdető

Az OTP Bank lakáshitel ajánlataFizetett hirdetés

+36 70 237
Zatykó Krisztina
Budapest XI. kerület OTP Ingatlanpont

Érdekel az OTP Bank kedvezményes lakáshitel ajánlata? *

* A kérdésre „Igen” válasz bejelölése esetén, az „Üzenet küldése” gombra kattintva kijelentem, hogy az OTP Bank Nyrt. Adatkezelési tájékoztatójának tartalmát megismertem és tudomásul vettem.

Eladó családi ház leírása

Különleges otthon Érd Parkváros és Törökbálint határán, panorámás kilátás, medence, privát kert, kivételes adottságokkal!
CSOK+-ra alkalmas!
Eladó egy egyedi hangulatú, kivételes adottságokkal rendelkező, háromszintes, 179 nm-es, szigetelt családi ház, 836 nm-es telken, Érd Parkváros és Törökbálint határán.
A ház összesen 5 szobával rendelkezik, és olyan környezetben helyezkedik el, ahol a természet közelsége és a városi kényelem harmonikusan találkozik. Az utca frontja Törökbálintra néz, ahol már nincsenek lakóépületek! így biztosított a nyugalom és a zavartalan panoráma.

Főbb jellemzők:

Háromszintes kialakítás: az utcafronti szinten található a kétállásos garázs, fölötte pedig egy kb. 30 nm-es, napfényes terasz.
A fél szinten mosókonyha, dolgozószoba és külön nappali kapott helyet, ideális vendégeknek, munkához vagy pihenéshez.

Fő lakószint: tágas, fa kupolás nappali, étkező és konyha egy légtérben, mégis jól elkülönülő hálószobákkal. A természetes fény és a minőségi anyaghasználat különleges atmoszférát teremt. Két nagy terasz: az egyik a garázs fölött, az utca irányába néz, tökéletes reggeli kávézáshoz vagy naplementéhez. A másik a hátsó, kertre néző terasz, amely közvetlen kapcsolatban van a kültéri élettel. Privát kert és medence: a ház mögötti teraszról elérhető a gondozott, intim hangulatú kert, ahol egy épített, lépcsős, 6×3 méteres medence található, ideális helyszín a nyári pihenéshez.

További előnyök:
Kiváló elhelyezkedés, közel Törökbálint központjához, Érdhez és az M7-es autópályához. Csendes környék, természetközeli életérzés. Stílusos kialakítás, praktikus térszervezés, kiváló minőségű anyagok. Ez az otthon ideális választás azoknak, akik nem sablonos házat keresnek, hanem egy valóban egyedi, értékálló ingatlant különleges környezetben.

Ár: 149 990 000.- Forint

Az OTP Bankcsoport teljes körű ügyintézéssel áll az eladók és a vevők rendelkezésére! A kínálatunkból választott ingatlan finanszírozásához kedvezményes hitel konstrukciókat kínálunk. Az adásvételi szerződés megkötéséhez igény szerint megbízható ügyvédi közreműködést biztosítunk, és segítséget nyújtunk az adásvételhez kapcsolódó ügyek intézésében. További információért vagy megtekintéssel kapcsolatban hívjon a hét bármely napján

Referencia szám: M314111

Hirdetés feltöltve: 2025. 12. 22. Utoljára módosítva: 2026. 01. 13.

5 szobás családi házak ára Érden

Ebből az összehasonlításból megtudhatod, hogyan viszonyul a lakás ára a környékbeli családi házak átlagos árához. Ez nem azt jelenti, hogy ennyivel olcsóbb vagy drágább, mint amennyit a lakás ér, hanem hogy ennyivel tér el a környékbeli átlagtól.

Ennek a m² ára
Érd m² ár
838 e Ft
894 e Ft 6%
Ennek az ára
Érd átlagár
149.999 M Ft m Ft
169.3 m Ft 11%

Az ingatlan elhelyezkedése

Cím: Érd

Eladó családi házak a környékről

Eladó családi ház
Eladó családi ház

Érd

195 M Ft
5 szoba
150 m2
Eladó családi ház
Eladó családi ház

Remeteszőlős

399.9 M Ft
5 + 2 szoba
260 m2
Eladó családi ház
Eladó családi ház

Érd

120 M Ft
5 szoba
190 m2
Eladó családi ház
Eladó családi ház

Tápiószentmárton

48 M Ft
5 szoba
180 m2
Eladó családi ház
Eladó családi ház

Érd

164.9 M Ft
5 szoba
192 m2
Eladó családi ház
Eladó családi ház

Budaörs, Bányász utca

385 M Ft
6 szoba
300 m2
Eladó családi ház
Eladó családi ház

Érd

249.99 M Ft
6 szoba
210 m2
Eladó családi ház
Eladó családi ház

Érd

115 M Ft
122 m2
Eladó családi ház
Eladó családi ház

Érd, Érdliget - Kutyavár, Liliom utca

300 M Ft
3 szoba
184 m2
Eladó családi ház
Eladó családi ház

Érd, Érdliget - Kutyavár, Érd-liget

230 M Ft
7 szoba
280 m2
Eladó családi ház
Eladó családi ház

Budaörs, Városközpont utca

119.5 M Ft
5 + 1 szoba
140 m2
Eladó családi ház
Eladó családi ház

Tápiószele

37.9 M Ft
4 szoba
141 m2
Eladó családi ház
Eladó családi ház

Érd, Cserhalmi és Csobánci utca között utca

130 M Ft
5 + 2 szoba
200 m2
Eladó családi ház
Eladó családi ház

Érd

99.9 M Ft
4 szoba
98 m2
Eladó családi ház
Eladó családi ház

Veresegyház, Salamon utca

119.9 M Ft
4 szoba
160 m2
Eladó családi ház
Eladó családi ház

Érd

67 M Ft
3 + 1 szoba
100 m2
Eladó családi ház
Eladó családi ház

Érd

84.9 M Ft
4 szoba
172 m2
Eladó családi ház
Eladó családi ház

Érd

129 M Ft
4 szoba
150 m2
Eladó családi ház
Eladó családi ház

Tápiószele

11.9 M Ft
3 szoba
62 m2
Eladó családi ház
Eladó családi ház

Kerepes

81.99 M Ft
5 szoba
102 m2
Eladó családi ház
Eladó családi ház

Budakeszi, Makkosmária

100 M Ft
1 szoba
10 m2
Eladó családi ház
Eladó családi ház

Leányfalu

237 M Ft
9 szoba
800 m2
Eladó családi ház
Eladó családi ház

Tápiógyörgye

19.9 M Ft
3 szoba
65 m2
Eladó családi ház
Eladó családi ház

Érd

164.9 M Ft
5 szoba
192 m2

Falusi CSOK ingatlanok

Eladó családi ház
Eladó családi ház

Szabadbattyán

136 M Ft
5 szoba
226 m2
Eladó családi ház
Eladó családi ház

Bag

16.9 M Ft
6 szoba
160 m2
Eladó családi ház
Eladó családi ház

Törtel

32.9 M Ft
3 szoba
68 m2
Eladó családi ház
Eladó családi ház

Dombrád

8 M Ft
2 szoba
85 m2
Eladó családi ház
Eladó családi ház

Bár

89.5 M Ft
4 + 1 szoba
172 m2
Eladó családi ház
Eladó családi ház

Cece

23.5 M Ft
3 szoba
66 m2
Eladó családi ház
Eladó családi ház

Nagyhegyes

80 M Ft
2 szoba
94 m2
Eladó családi ház
Eladó családi ház

Somogyhárságy

188.65 M Ft
5 szoba
250 m2