Oasis Residence

Eladó családi ház
Érd

1/2
115 000 000 Ft115 M Ft 871 212 Ft/m2
5 szoba
132 m2

Részletes adatok

Telekméret: 1000 m2
Fűtés: Egyéb
Parkolás: Garázs
Energetikai besorolás: Nem adta meg a hirdető

Az OTP Bank lakáshitel ajánlataFizetett hirdetés

+36 20 220
Katona Anett
Családi Ingatlan

Érdekel az OTP Bank kedvezményes lakáshitel ajánlata? *

* A kérdésre „Igen” válasz bejelölése esetén, az „Üzenet küldése” gombra kattintva kijelentem, hogy az OTP Bank Nyrt. Adatkezelési tájékoztatójának tartalmát megismertem és tudomásul vettem.

Eladó családi ház leírása

3% KAMATOZÁSÚ TÁMOGATOTT HITEL ÉS CSOK PLUSZ IGÉNYELHETŐ!

MODERN, ÚJ ÉPÍTÉSŰ ÖNÁLLÓ CSALÁDI HÁZ GARÁZZSAL ÉRD PARKVÁROSBAN – TERMÉSZETKÖZELI KÖRNYEZET, A FUNDOKLIA-VÖLGY SZOMSZÉDSÁGÁBAN

Érd egyik legdinamikusabban fejlődő, családbarát városrészében kínálunk megvételre egy modern családi ház projektet.
A családi ház építése jelenleg még nem indult el, így a megadott alaprajz kiindulási tervként szolgál, amely a leendő tulajdonos igényei szerint módosítható.
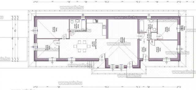
A nettó 132 m²-es, energiatakarékos otthon korszerű gépészettel, világos terekkel és praktikus kialakítással készül majd.

Főbb helyiségméretek:
• Konyha-étkező: 34,13 m²
• Nappali: 33,13 m²
• 3 hálószoba: 10,21 m² | 9,9 m² | 12,71 m²
• 2 fürdőszoba WC-vel: 5,47 m² és 3,63 m²
• Tároló: 5,02 m²
• Közlekedő: 3,01 m²
• Garázs: 15,01 m²
• Telekméret: 1000 m²

Műszaki tartalom:
A ház modern tégla falazattal, 15 cm dryvit szigeteléssel, hőszivattyús padlófűtéssel és hőszigetelt műanyag nyílászárókkal épül.
A burkolatok, belső színek és számos alaprajzi megoldás szabadon választható, így a leendő tulajdonos saját elképzeléseihez igazíthatja otthonát.
Tervezett átadás: 2026 ősz

Elhelyezkedés:
Az ingatlan Érd Parkváros zöldövezeti, csendes utcájában valósul meg, a természetvédelmi Fundoklia-völgy közvetlen szomszédságában.
A környék kiváló infrastruktúrával rendelkezik: iskola, óvoda, orvosi rendelő és bevásárlási lehetőségek autóval 10 percen belül elérhetők.

Ez a projekt remek lehetőség mindazok számára, akik egy modern, önálló családi házat szeretnének nagy telekkel, energiatakarékos megoldásokkal és gyönyörű természeti környezetben – ráadásul teljes mértékben személyre szabható kivitelben.

Hirdetés feltöltve: 2025. 12. 10. Utoljára módosítva: 2025. 12. 30.

5 szobás családi házak ára Érden

Ebből az összehasonlításból megtudhatod, hogyan viszonyul a lakás ára a környékbeli családi házak átlagos árához. Ez nem azt jelenti, hogy ennyivel olcsóbb vagy drágább, mint amennyit a lakás ér, hanem hogy ennyivel tér el a környékbeli átlagtól.

Ennek a m² ára
Érd m² ár
871 e Ft
881 e Ft 1%
Ennek az ára
Érd átlagár
115 M Ft m Ft
167.5 m Ft 31%

Az ingatlan elhelyezkedése

Cím: Érd

Eladó családi házak a környékről

Eladó családi ház
Eladó családi ház

Budakeszi

130 M Ft
5 szoba
30 m2
Eladó családi ház
Eladó családi ház

Érd

129 M Ft
5 szoba
175 m2
Eladó családi ház
Eladó családi ház

Tápiószele

32.9 M Ft
4 szoba
200 m2
Eladó családi ház
Eladó családi ház

Dunavarsány

49.9 M Ft
3 + 2 szoba
130 m2
Eladó családi ház
Eladó családi ház

Érd

225.5 M Ft
6 szoba
503 m2
Eladó családi ház
Eladó családi ház

Érd

224 M Ft
5 szoba
171 m2
Eladó családi ház
Eladó családi ház

Dunakeszi

250 M Ft
4 szoba
180 m2
Eladó családi ház
Eladó családi ház

Veresegyház, Salamon utca

119.9 M Ft
4 szoba
160 m2
Eladó családi ház
Eladó családi ház

Tahitótfalu

188 M Ft
7 szoba
280 m2
Eladó családi ház
Eladó családi ház

Érd

230 M Ft
5 szoba
175 m2
Eladó családi ház
Eladó családi ház

Kerepes

81.99 M Ft
5 szoba
102 m2
Eladó családi ház
Eladó családi ház

Budaörs, Bányász utca

385 M Ft
6 szoba
300 m2
Eladó családi ház
Eladó családi ház

Gyál, Gyál út

169.9 M Ft
2 szoba
90 m2
Eladó családi ház
Eladó családi ház

Érd, Érdliget - Kutyavár, Érd-liget

230 M Ft
7 szoba
280 m2
Eladó családi ház
Eladó családi ház

Érd, Cserhalmi és Csobánci utca között utca

98 M Ft
5 + 2 szoba
200 m2
Eladó családi ház
Eladó családi ház

Pécel, Reményik Sándor utca

296 M Ft
6 szoba
396 m2
Eladó családi ház
Eladó családi ház

Budakeszi, Makkosmária

100 M Ft
1 szoba
10 m2
Eladó családi ház
Eladó családi ház

Tápiógyörgye

19.9 M Ft
3 szoba
65 m2
Eladó családi ház
Eladó családi ház

Tápiószele

37.9 M Ft
4 szoba
141 m2
Eladó családi ház
Eladó családi ház

Dunavarsány

69.9 M Ft
3 + 1 szoba
140 m2
Eladó családi ház
Eladó családi ház

Érd

89.9 M Ft
4 szoba
130 m2
Eladó családi ház
Eladó családi ház

Érd

67 M Ft
3 szoba
81 m2
Eladó családi ház
Eladó családi ház

Érd

164.9 M Ft
5 szoba
192 m2
Eladó családi ház
Eladó családi ház

Budaörs, Odvshegy utca

268.9 M Ft
5 szoba
235 m2

Falusi CSOK ingatlanok

Eladó családi ház
Eladó családi ház

Tápióbicske

38 M Ft
3 szoba
50 m2
Eladó családi ház
Eladó családi ház

Vajszló

18 M Ft
2 szoba
91 m2
Eladó téglalakás
Eladó téglalakás

Újlengyel

72.99 M Ft
2 szoba
68 m2
Eladó családi ház
Eladó családi ház

Újkígyós

11.99 M Ft
2 szoba
77 m2
Eladó ikerház
Eladó ikerház

Seregélyes

39.9 M Ft
4 szoba
150 m2
Eladó családi ház
Eladó családi ház

Bábolna

74.9 M Ft
5 szoba
172 m2
Eladó családi ház
Eladó családi ház

Mezőzombor

13.8 M Ft
2 + 1 szoba
81 m2
Eladó családi ház
Eladó családi ház

Kesztölc

129.9 M Ft
8 szoba
210 m2