Aerogate Homes

Eladó családi ház
Érd

+ 17 kép 1/20
115 000 000 Ft115 M Ft 566 502 Ft/m2
6 szoba
203 m2
építés éve:1994

Részletes adatok

Állapot: Átlagos
Telekméret: 758 m2
Fűtés: Gázkazán
Energetikai besorolás: Nem adta meg a hirdető

Az OTP Bank lakáshitel ajánlataFizetett hirdetés

+36 20 393
Pásztor Gabriella
OTPip - Érd Bajcsy-Zsilinszky út 160 - OTP Ingatlanpont Iroda

Érdekel az OTP Bank kedvezményes lakáshitel ajánlata? *

* A kérdésre „Igen” válasz bejelölése esetén, az „Üzenet küldése” gombra kattintva kijelentem, hogy az OTP Bank Nyrt. Adatkezelési tájékoztatójának tartalmát megismertem és tudomásul vettem.

Eladó családi ház leírása

Érd Parkváros frekventált részén a Bajcsy-Zsilinszky úton, kiváló közlekedési adottságok mellett eladó egy összközműves, 758nm2-es telken elhelyezkedő 352 nm2 lakóterű (földszint+tetőtér) ingatlan. Az ingatlan számos tevékenység kialakítására alkalmas. A lakófunkció mellett kiváló lehetőséget biztosít kereskedelmi és szolgáltatói tevékenységre, illetve munkásszálló kialakítására is alkalmas. Az ingatlan előtt parkolási lehetőség biztosítva van, továbbá a telken belül több autó számára beton burkolatú beállási lehetőség is rendelkezésre áll.

Az ingatlan részlegesen felújított, a felújítás alkalmával új nyílászárók kerültek beépítésre, továbbá a ház fűtés rendszerének korszerüsítése is megtörtént. A fűtés új Ariston gázkazánnal üzemel, radiátor hőleadókkal, a melegvíz ellátást Ariston villanybojler szolgáltatja.

A terület övezeti besorolása VT-1, településközponti terület, misherinta telek 50%-ban beépíthető. A terület infrastruktúra szempontjából is kiváló, környezetében kereskedelmi , szolgáltató egységek is elérhetőek. Megközelítése személygépkocsival és tömegközlekedéssel is egyaránt elérhető. Az M7-es autópálya le-fel hajtója pár perc alatt elérhető.
Az ingatlanhoz Építészeti Telepítési Tanulmányterv készült Iroda és Rendelőépületre vonatkozóan, mely a vételár részét képezik.
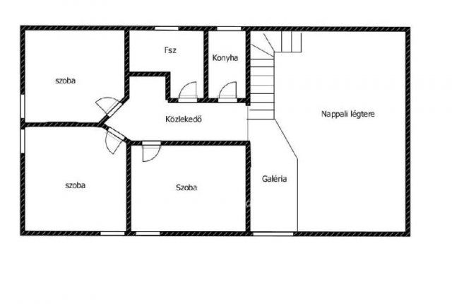
A földszinten előszoba, 3 szoba, konyha+étkező, 2 wc 2 tusoló, nappali található.
A tetőtérben 3 szoba, fürdő, teakonyha kapott helyet.
Az alagsorban több helyiségből álló műhely található.
Több generációs családoknak, befektetőknek, kereskedelmi és szolgáltatói tevékenységet folytató vállalkozásnak kitűnő lehetőség.

Hirdetés feltöltve: 2025. 08. 31. Utoljára módosítva: 2026. 01. 01.

Az ingatlan elhelyezkedése

Cím: Érd

Eladó családi házak a környékről

Eladó családi ház
Eladó családi ház

Leányfalu

237 M Ft
9 szoba
800 m2
Eladó családi ház
Eladó családi ház

Budakeszi, Makkosmária

100 M Ft
1 szoba
10 m2
Eladó családi ház
Eladó családi ház

Dunakeszi

250 M Ft
4 szoba
180 m2
Eladó családi ház
Eladó családi ház

Budaörs, Odvshegy utca

268.9 M Ft
5 szoba
235 m2
Eladó családi ház
Eladó családi ház

Érd

198 M Ft
5 szoba
216 m2
Eladó családi ház
Eladó családi ház

Dunavarsány

49.9 M Ft
3 + 2 szoba
130 m2
Eladó családi ház
Eladó családi ház

Érd

250 M Ft
6 szoba
210 m2
Eladó családi ház
Eladó családi ház

Kerepes

81.99 M Ft
5 szoba
102 m2
Eladó családi ház
Eladó családi ház

Érd

250 M Ft
6 szoba
207 m2
Eladó családi ház
Eladó családi ház

Érd

67 M Ft
3 + 1 szoba
100 m2
Eladó családi ház
Eladó családi ház

Tápiógyörgye

19.9 M Ft
3 szoba
65 m2
Eladó családi ház
Eladó családi ház

Budakeszi, Budakeszi kertváros

140 M Ft
2 szoba
55 m2
Eladó családi ház
Eladó családi ház

Veresegyház, Salamon utca

119.9 M Ft
4 szoba
160 m2
Eladó családi ház
Eladó családi ház

Érd, Érdliget - Kutyavár, 2030.ÉRDLIGET, KÖVIRÓZSA

649 M Ft
6 szoba
380 m2
Eladó családi ház
Eladó családi ház

Pécel, Reményik Sándor utca

296 M Ft
6 szoba
396 m2
Eladó családi ház
Eladó családi ház

Kerepes

199 M Ft
6 szoba
360 m2
Eladó családi ház
Eladó családi ház

Budakeszi

130 M Ft
5 szoba
30 m2
Eladó családi ház
Eladó családi ház

Érd

99.9 M Ft
4 szoba
98 m2
Eladó családi ház
Eladó családi ház

Remeteszőlős

399.9 M Ft
5 + 2 szoba
260 m2
Eladó családi ház
Eladó családi ház

Érd

95 M Ft
5 szoba
226 m2
Eladó családi ház
Eladó családi ház

Érd

129 M Ft
5 szoba
175 m2
Eladó családi ház
Eladó családi ház

Gyál, Gyál út

169.9 M Ft
2 szoba
90 m2
Eladó családi ház
Eladó családi ház

Budaörs, Városközpont utca

119.5 M Ft
5 + 1 szoba
140 m2
Eladó családi ház
Eladó családi ház

Érd

249.99 M Ft
6 szoba
210 m2

Falusi CSOK ingatlanok

Eladó családi ház
Eladó családi ház

Murony

19.9 M Ft
3 szoba
94 m2
Eladó családi ház
Eladó családi ház

Somogygeszti

38.6 M Ft
3 + 1 szoba
98 m2
Eladó családi ház
Eladó családi ház

Magyarszék

48.5 M Ft
3 + 1 szoba
86 m2
Eladó családi ház
Eladó családi ház

Hunya

10.99 M Ft
3 szoba
80 m2
Eladó családi ház
Eladó családi ház

Szentkirályszabadja

135.9 M Ft
4 szoba
150 m2
Eladó családi ház
Eladó családi ház

Balatonfenyves

430 M Ft
4 szoba
274 m2
Eladó családi ház
Eladó családi ház

Kétbodony

84.9 M Ft
5 szoba
151 m2
Eladó családi ház
Eladó családi ház

Lesenceistvánd

75 M Ft
2 szoba
90 m2