Aerogate Homes

Eladó családi ház
Eger

+ 14 kép 1/17
21 000 000 Ft21 M Ft 420 000 Ft/m2
3 szoba
50 m2
építés éve:1926

Részletes adatok

Állapot: Felújítandó
Telekméret: 443 m2
Fűtés: Gázkonvektor
Energetikai besorolás: Nem adta meg a hirdető

Az OTP Bank lakáshitel ajánlataFizetett hirdetés

+36 70 317
Bata Zoltán
referens

Érdekel az OTP Bank kedvezményes lakáshitel ajánlata? *

* A kérdésre „Igen” válasz bejelölése esetén, az „Üzenet küldése” gombra kattintva kijelentem, hogy az OTP Bank Nyrt. Adatkezelési tájékoztatójának tartalmát megismertem és tudomásul vettem.

Eladó családi ház leírása

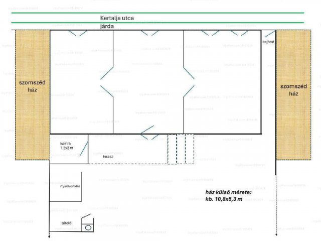
Heves megye, Eger, Ráchóstya városrészen, 50 nm-es családi ház, 443 m2-es telken eladó. A felújítandó ingatlan 1926-ban épült, kő alappal és tufa falazattal rendelkezik. A tetőszerkezete cserépborítású, életkorának megfelelő állapotú. A házat három lakó helyiség és egy kamra, továbbá az udvaron egy melléképület alkotja. A víz csak az udvarig került bevezetésre. Parkolni az épület előtt az utcán van lehetőség. Az ár alkuképes! Kérem, keressen, amennyiben felkeltette érdeklődését az ingatlan és személyesen is meggyőződne a leírtakról! Ingatlanirodánk ügyvédi háttérrel, CSOK, babaváró hitel, valamint kamatkedvezményes hitel ügyintézésével támogatja ügyfelei ingatlanvásárlását!

Hirdetés feltöltve: 2025. 11. 18.

3 szobás családi házak ára Egerben

Ebből az összehasonlításból megtudhatod, hogyan viszonyul a lakás ára a környékbeli családi házak átlagos árához. Ez nem azt jelenti, hogy ennyivel olcsóbb vagy drágább, mint amennyit a lakás ér, hanem hogy ennyivel tér el a környékbeli átlagtól.

Ennek a m² ára
Eger m² ár
420 e Ft
631 e Ft 33%
Ennek az ára
Eger átlagár
21 M Ft m Ft
70.5 m Ft 70%

Az ingatlan elhelyezkedése

Cím: Eger

Eladó családi házak a környékről

Eladó családi ház
Eladó családi ház

Eger

55.9 M Ft
2 szoba
105 m2
Eladó családi ház
Eladó családi ház

Eger

69 M Ft
3 szoba
120 m2
Eladó családi ház
Eladó családi ház

Pétervására

4.5 M Ft
3 szoba
85 m2
Eladó családi ház
Eladó családi ház

Ostoros

94.5 M Ft
3 szoba
96 m2
Eladó családi ház
Eladó családi ház

Bükkszék

69 M Ft
5 szoba
240 m2
Eladó családi ház
Eladó családi ház

Eger

109 M Ft
4 szoba
100 m2
Eladó családi ház
Eladó családi ház

Eger

58 M Ft
4 szoba
77 m2
Eladó családi ház
Eladó családi ház

Andornaktálya

42 M Ft
4 szoba
116 m2
Eladó családi ház
Eladó családi ház

Ostoros

94.5 M Ft
3 szoba
96 m2
Eladó családi ház
Eladó családi ház

Eger

79 M Ft
5 szoba
148 m2
Eladó családi ház
Eladó családi ház

Eger

440 M Ft
5 szoba
600 m2
Eladó családi ház
Eladó családi ház

Mátraderecske

74 M Ft
4 szoba
200 m2
Eladó családi ház
Eladó családi ház

Eger, Rác hóstya, Verőszala utca

9.2 M Ft
3 szoba
56 m2
Eladó családi ház
Eladó családi ház

Eger, Pallós utca

49.9 M Ft
5 szoba
200 m2
Eladó családi ház
Eladó családi ház

Andornaktálya

28.5 M Ft
2 szoba
60 m2
Eladó családi ház
Eladó családi ház

Eger, Felsőváros

159 M Ft
5 szoba
205 m2
Eladó családi ház
Eladó családi ház

Eger, Radnóti Miklós utca

169 M Ft
6 szoba
250 m2
Eladó családi ház
Eladó családi ház

Mátraszentimre

250 M Ft
8 szoba
300 m2
Eladó családi ház
Eladó családi ház

Eger

440 M Ft
5 szoba
600 m2
Eladó családi ház
Eladó családi ház

Eger

79 M Ft
6 + 2 szoba
260 m2
Eladó családi ház
Eladó családi ház

Ostoros

94.5 M Ft
3 szoba
96 m2
Eladó családi ház
Eladó családi ház

Recsk

21 M Ft
4 szoba
220 m2
Eladó családi ház
Eladó családi ház

Szilvásvárad

92 M Ft
4 + 1 szoba
220 m2
Eladó családi ház
Eladó családi ház

Eger

89.9 M Ft
4 szoba
149 m2

Falusi CSOK ingatlanok

Eladó családi ház
Eladó családi ház

Orci

59.9 M Ft
3 szoba
101 m2
Eladó családi ház
Eladó családi ház

Bag

16.9 M Ft
6 szoba
160 m2
Eladó családi ház
Eladó családi ház

Újszilvás

20.9 M Ft
3 szoba
66 m2
Eladó családi ház
Eladó családi ház

Tápiógyörgye

44.9 M Ft
3 szoba
105 m2
Eladó családi ház
Eladó családi ház

Balatonkenese

88 M Ft
4 szoba
80 m2
Eladó családi ház
Eladó családi ház

Jászkarajenő

19.9 M Ft
3 szoba
81 m2
Eladó családi ház
Eladó családi ház

Mezőfalva

39 M Ft
3 szoba
77 m2
Eladó családi ház
Eladó családi ház

Vilonya

71.9 M Ft
5 szoba
105 m2